Музей искусств в Далласе – реконструкция
© Nieto Sobejano Arquitectos
Проблема, стоящая сейчас перед руководством и попечительским советом DAM, типична: здание не отвечает требованиям наших дней, когда музей играет роль культурного и образовательного центра, где новые знания и впечатления порой предлагаются публике в развлекательном виде, а иногда ее даже приучают к визитам в храм искусств с помощью занятий йогой и подобных «сопутствующих» мероприятий.
Музей искусств в Далласе – реконструкция
© Nieto Sobejano Arquitectos
Объяснение этому частью заключается в сменившейся эпохе: открывшееся в 1984 здание (архитектор Эдвард Ларраби Барнс) уже тогда казалось слегка устаревшим по облику. Важную роль сыграла и изменившаяся городская среда: новый музей возник между пустырей и складов, а теперь вокруг него сложился Квартал искусств, появились парки, офисные и жилые здания.
Музей искусств в Далласе – реконструкция
© Nieto Sobejano Arquitectos
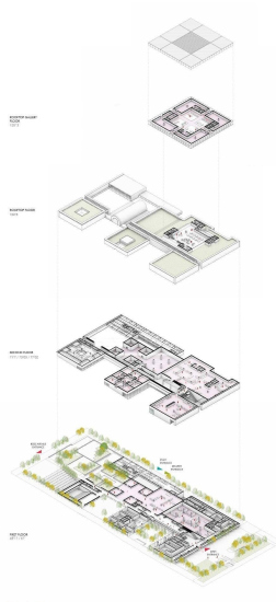
Поэтому задачей участников конкурса стало не только неизбежное расширение музея, но и превращение его в более открытый вовне; интерьеру требовалось придать цельности, что особенно важно с учетом многочисленных антресольных уровней. По замыслу Nieto Sobejano Arquitectos, предложивших самый сдержанный вариант из всех финалистов, большую роль будет играть солнечный свет. Медиафасады и прямоугольный объем нового выставочного зала (его поместят сверху) привлекут внимание издалека, для отдыха горожан предусмотрены озелененная кровля-терраса и ступени-трибуны – для любования парком или проведения концертов и кинопоказов на свежем воздухе.
Музей искусств в Далласе – реконструкция
© Nieto Sobejano Arquitectos
Проекты остальных финалистов можно посмотреть здесь.
Музей искусств в Далласе – реконструкция
© Nieto Sobejano Arquitectos
Музей искусств в Далласе – реконструкция
© Nieto Sobejano Arquitectos
Музей искусств в Далласе – реконструкция
© Nieto Sobejano Arquitectos
