Штаб-квартира компании AGUR в городе Англет
Фотография © Federico Pardos / предоставлена IDOM
Штаб-квартира компании AGUR в городе Англет
Фотография © Maïté-Pharisier / предоставлена IDOM
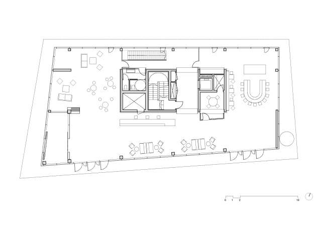
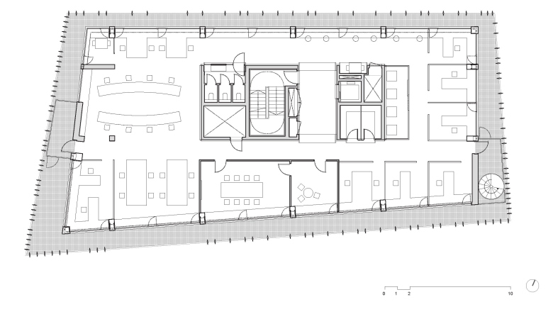
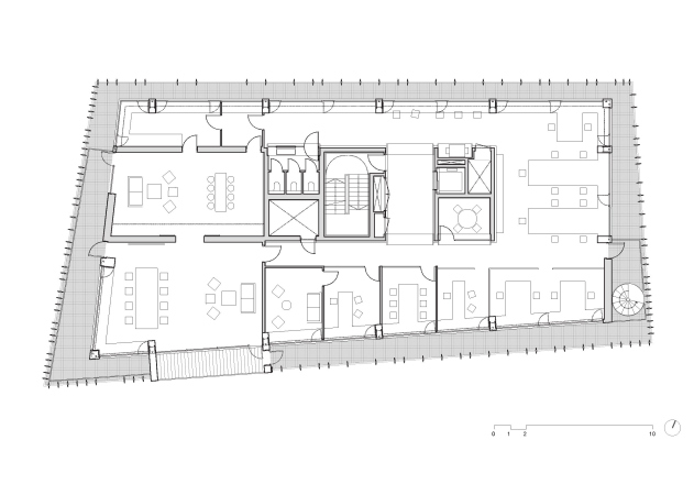
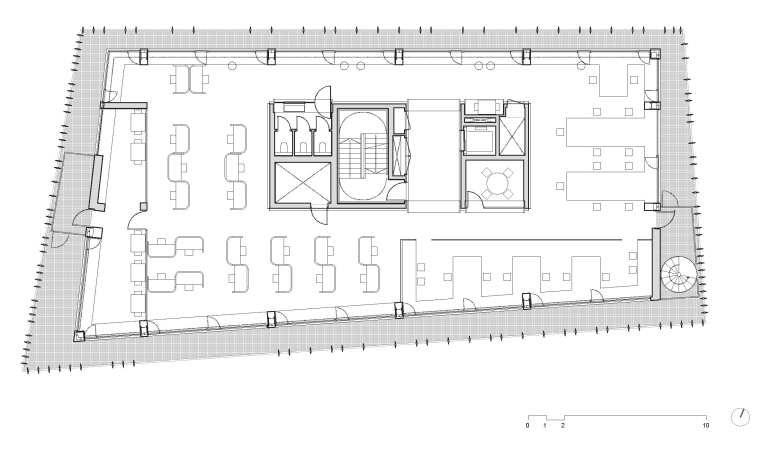
С функциональной точки зрения четырехэтажное здание представляет собой типичную офисную коробку с традиционным фронтом сплошного остекления, рабочими местами по периметру и техническим коммуникационным ядром в центре. Но архитекторы постарались извлечь из классической компоновки как можно больше. Свою концепцию они так и называют «окном в лес».
Штаб-квартира компании AGUR в городе Англет
Фотография © Maïté-Pharisier / предоставлена IDOM
Штаб-квартира компании AGUR в городе Англет
Фотография © Federico Pardos / предоставлена IDOM
Штаб-квартира компании AGUR в городе Англет
Фотография © Federico Pardos / предоставлена IDOM
Нижний этаж, где сосредоточены в основном общественные функции и оборудован специальный пункт контроля за работой сети распространения питьевой воды, полностью остеклен. Прозрачная оболочка пропускает взгляды, отражает подвижную поверхность воды в реке и образует единое целое с окружающим ландшафтом. Фасады расположенных выше рабочих этажей также остеклены, но снаружи закрыты тонкими вертикальными ламелями, выкрашенными в цвета древесной коры. Они не только маскируют довольно заметный объем постройки, сохраняя при этом проницаемость оболочки для взгляда, но и защищают интерьер от лишних солнечных лучей и перегрева, помогая существенно снизить затраты владельцев на электроэнергию. Наконец, на крыше устроена открытая терраса для отдыха и проведения различных мероприятий.
Штаб-квартира компании AGUR в городе Англет
Фотография © Maïté-Pharisier / предоставлена IDOM
Штаб-квартира компании AGUR в городе Англет
Фотография © Maïté-Pharisier / предоставлена IDOM
Внутренняя же организация пространства одновременно проста и символична. Закрытое центральное ядро архитекторы оформили деревянными панелями, создавая ощущение некого мощного «ствола», который выходит на террасу довольно протяженным волнистым возвышением. Сверху оно покрыто искусственной травой: на этих склонах можно удобно устроиться и полюбоваться идиллическими видами. Само здание таким образом становится почти природным объектом. «Крона» дерева устроена тоже не совсем обычно: расположенные по периметру остекления рабочие столы имеют одну высоту с подоконниками, как бы продолжая их, перегородки тоже стеклянные, а потолки оформлены деревянными рейками, направленными в сторону окон и продолжающимися далее с внешней стороны. В результате все преграды для взгляда исчезают, а окружающий здание лес легко «входит» в интерьер.
Штаб-квартира компании AGUR в городе Англет
Фотография © Federico Pardos / предоставлена IDOM
Штаб-квартира компании AGUR в городе Англет
Фотография © Federico Pardos / предоставлена IDOM
Штаб-квартира компании AGUR в городе Англет
Фотография © Federico Pardos / предоставлена IDOM
Штаб-квартира компании AGUR в городе Англет
Фотография © Maïté-Pharisier / предоставлена IDOM
Для заказчика было важно продемонстрировать свою заботу об окружающей среде, так что офис соответствует принципам «устойчивой» архитектуры. Особое внимание уделили энергосберегающим стратегиям, как пассивным, так и активным. По расчетам инженеров для полноценной работы зданию штаб-квартиры требуется менее 24 кВтч на квадратный метр площади. Так называемой первичной электроэнергии, то есть с учетом потерь на передачу, в среднем тратится в 2,5 раза больше, что позволяет рассчитать реальные потребности – чуть менее 60 кВтч/м2 в год. При этом действующий во Франции стандарт RT2012 ограничивает максимально возможное потребление первичной электроэнергии для офисных зданий, расположенных в этой климатической зоне, лимитом в 110 кВтч/м2 в год, так что экономия может превысить 45%.
Штаб-квартира компании AGUR в городе Англет
Фотография © Maïté-Pharisier / предоставлена IDOM
Штаб-квартира компании AGUR в городе Англет
© IDOM
Штаб-квартира компании AGUR в городе Англет
© IDOM
Штаб-квартира компании AGUR в городе Англет
© IDOM
Штаб-квартира компании AGUR в городе Англет
© IDOM
