«Яшобхуми» – Индийский международный конгресс- и выставочный центр
Фото © Aitor Ortiz
Индийский международный конгресс- и выставочный центр (IICC), также названный «Яшобхуми», то есть «Земля славы», уже стал самым крупным в Индии и всей Южной Азии, но должен, по замыслу властей, стать ключевым и в глобальным масштабе, а также символизировать «Новую Индию».
«Яшобхуми» – Индийский международный конгресс- и выставочный центр
Фото © Aitor Ortiz
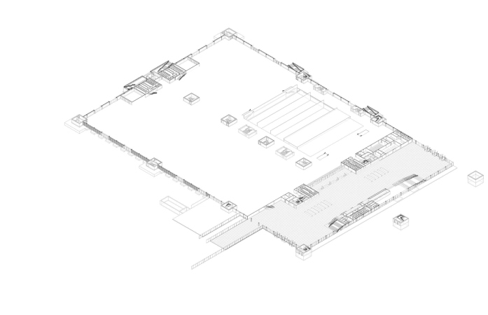
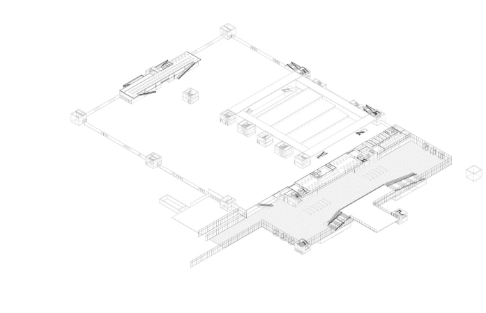
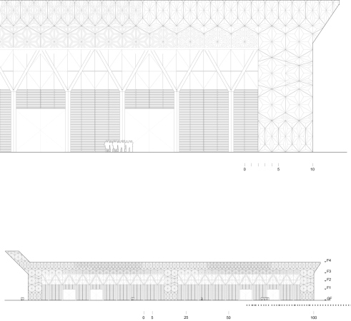
«Яшобхуми» расположен в районе Дварка на окраине Нью-Дели, рядом с Международным аэропортом имени Индиры Ганди. Конкурс на его проект провела в 2017 Корпорация по развитию промышленного коридора Дели – Мумбаи (DMICDC). Признанный лучшим проект IDOM основан на идее современного «индийского дворца». Архитекторы опирались на разнообразные мотивы традиционной и народной культуры Индии – прежде всего на орнамент. Так, оформление кровель, которые видны пассажирам заходящих на посадку самолетов, вдохновлены декоративными композициями ранголи, многое взято от знаменитого индийского текстильного искусства и так далее. На части сооружений устроены медиафасады в формате светодиодных экранов.
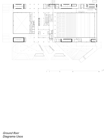
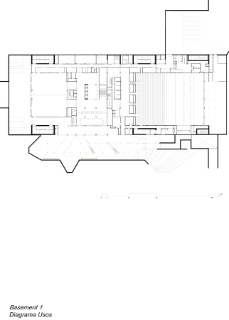
«Яшобхуми» – Индийский международный конгресс- и выставочный центр. Здание конгресс-центра
Фото © Aitor Ortiz
Достаточно компактный объем конгресс-центра – у него 12 этажей – представлял вызов для проектировщиков. Здесь собраны 13 трансформируемых залов, главный зал площадью 10 000 тыс. м2, а также аудитория на 6 000 человек. Ее можно разделить пополам акустической перегородкой, чтобы провести два независимых мероприятия; также предусмотрено 9 разных схем расположения сцены и зрительских мест. Выставочные павильоны можно также делить перегородками высотой 20 м, благодаря чему в каждом можно устраивать 4–6 выставок одновременно. Обслуживать все сооружения удобно благодаря подземному техническому коридору для перемещения сотрудников по периметру, вдоль которого размещены все сети.
