Forum Groningen
Фото: NL Architects&ABT © Marcel van der Burg
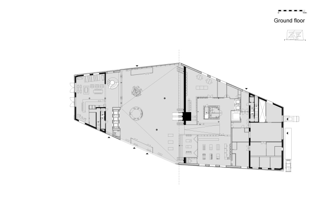
В результате на сложном участке среди старых и новых зданий в историческом центре Гронигена появилось 10-уровневое сооружение размером в 17 000 м2 с двумя новыми площадями рядом. Под одной из них, Ньиве-Маркт, спрятан паркинг для 1200 велосипедов, также проект включает подземный гараж на 380 машин. Сам Forum Groningen – это тоже своего рода общественное пространство, там очень много доступных всем разнообразных зон, а открыт он семь дней в неделю.
Forum Groningen
Фото: NL Architects&ABT © Marcel van der Burg
Дань окружению – облицовка фасада баварским камнем: вахенцельским доломитом. Впрочем, соседняя ратуша и высокая башня церкви Св. Мартина облицованы другой породой – типичным для Нидерландов бентхаймским песчаником, который добывают в приграничном немецком графстве, но его решили не использовать из-за вредного процесса обработки.
Forum Groningen
Фото: NL Architects&ABT © Marcel van der Burg
На фасадах камень сочетается с обширными прозрачными поверхностями, отмечающим расположение атриума. Трехслойное остекление надежно защищает интерьер от солнечного жара: всего 30% проникает внутрь, но и это количество улавливают наверху атриума и отправляют в хранилище; зимой это тепло идет на обогрев помещений.
Цельный объем здания и главное его пространство – высокий атриум, пересекаемый множеством лестниц и переходов, подчеркивают единство всех частей «Форума». Он посвящен разным занятиям и областям знаний, которые и определили программу. Три главные темы – текущие события и общество, технологии и визуальная популярная культура.
Forum Groningen
Фото: NL Architects&ABT © Marcel van der Burg
Отделы городской библиотеки, медиа-музей Storyworld («Мир историй»: комиксы, мультфильмы, видеоигры), пять кинозалов, два выставочных зала, многофункциональное пространство с плоским полом, лаборатории SmartLab и MediaLab, десятки зон для общения, чтения и учебы расположены согласно темам, а не своей типологии. В целом здание по замыслу авторов служит своего рода интернет-браузером или «Википедией»: по нему можно бродить и всегда находить гораздо больше, чем планировал изначально. На самом верху, на высоте в 45 м, устроена смотровая платформа; чуть ниже – терраса на крыше с кафе и ступенями-трибунами, поэтому там можно устраивать концерты или спектакли.
Особая гордость авторов проекта – BIM-модель «Форума», крупнейшая на тот момент в нидерландской практике, а также такая красивая, что чертежи даже приобрел коллекционер архитектурной графики.
Forum Groningen
Фото: NL Architects&ABT © Marcel van der Burg
Forum Groningen
Фото: NL Architects&ABT © Marcel van der Burg
Forum Groningen
Фото: NL Architects&ABT © Marcel van der Burg
Forum Groningen
Фото: NL Architects&ABT © Marcel van der Burg
Forum Groningen
Фото: NL Architects&ABT © Marcel van der Burg
Forum Groningen
Фото: NL Architects&ABT © Marcel van der Burg
Forum Groningen
Фото: NL Architects&ABT © Marcel van der Burg
Forum Groningen
Фото: NL Architects&ABT © Marcel van der Burg
Forum Groningen
Фото: NL Architects&ABT © Marcel van der Burg
Forum Groningen
Фото: NL Architects&ABT © Marcel van der Burg
Forum Groningen
Фото: NL Architects&ABT © Marcel van der Burg
Forum Groningen
Фото: NL Architects&ABT © Marcel van der Burg
Forum Groningen
Фото: NL Architects&ABT © Marcel van der Burg
Forum Groningen
Фото: NL Architects&ABT © Marcel van der Burg
Forum Groningen
Фото: NL Architects&ABT © Marcel van der Burg
Forum Groningen
Фото: NL Architects&ABT © Marcel van der Burg
Forum Groningen
Фото: NL Architects&ABT © Marcel van der Burg
Forum Groningen
Фото: NL Architects&ABT © Marcel van der Burg
Forum Groningen
Фото: NL Architects&ABT © Marcel van der Burg
Forum Groningen
Предоставлено NL Architects
Forum Groningen
Предоставлено NL Architects
Forum Groningen
Предоставлено NL Architects
Forum Groningen
Предоставлено NL Architects
Forum Groningen
Предоставлено NL Architects
Forum Groningen
Предоставлено NL Architects
Forum Groningen
Предоставлено NL Architects
Forum Groningen
Предоставлено NL Architects
Forum Groningen
Предоставлено NL Architects
Forum Groningen
Предоставлено NL Architects
Forum Groningen
Предоставлено NL Architects
Forum Groningen
Предоставлено NL Architects
Forum Groningen
Предоставлено NL Architects
Forum Groningen
Предоставлено NL Architects
Forum Groningen
Предоставлено NL Architects
Forum Groningen
Предоставлено NL Architects
