RSS
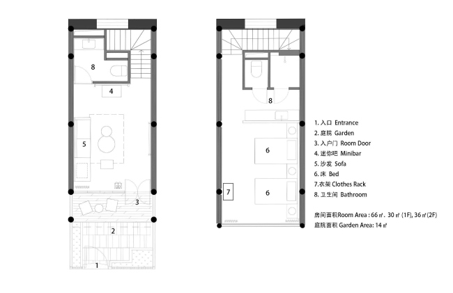
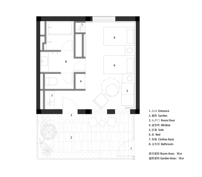
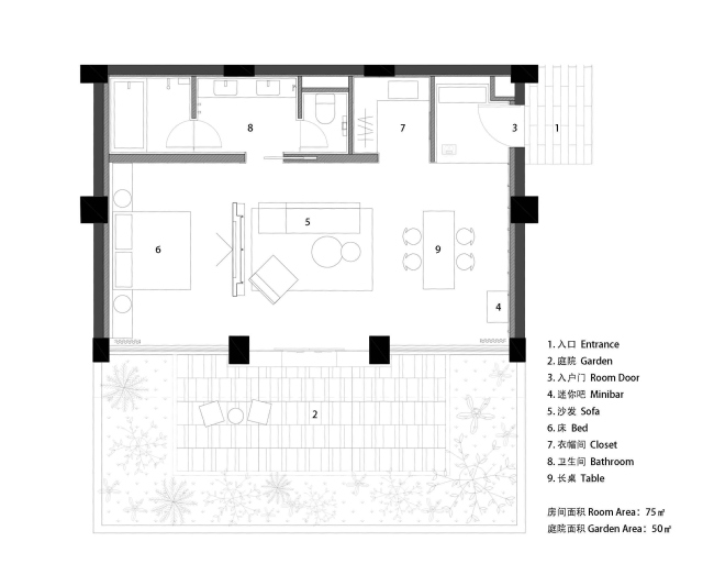
Отель Jiangnan House в районе Гуанлин городского округа Янчжоу
Фотография © XIA ZHI Pictures / предоставлена B.L.U.E. Architecture Studio

Отель Jiangnan House


/ Jiangnan House Yangzhou Guangling

информация:

B.L.U.E. Architecture Studio / Китай
Отель Jiangnan House в районе Гуанлин городского округа Янчжоу
Фотография © XIA ZHI Pictures / предоставлена B.L.U.E. Architecture Studio

Архи.ру об этом объекте:

26.12.2025

Анна Старостина. Кинотрансформация

B.L.U.E. Architecture Studio трансформировало фрагмент исторической застройки города Янчжоу под гостиницу: ее вестибюль устроили в старом кинотеатре.

читать дальше
Отель Jiangnan House в районе Гуанлин городского округа Янчжоу
Фотография © XIA ZHI Pictures / предоставлена B.L.U.E. Architecture Studio
Отель Jiangnan House в районе Гуанлин городского округа Янчжоу
Фотография © XIA ZHI Pictures / предоставлена B.L.U.E. Architecture Studio
Отель Jiangnan House в районе Гуанлин городского округа Янчжоу
Фотография © XIA ZHI Pictures / предоставлена B.L.U.E. Architecture Studio
Отель Jiangnan House в районе Гуанлин городского округа Янчжоу
Фотография © XIA ZHI Pictures / предоставлена B.L.U.E. Architecture Studio
Отель Jiangnan House в районе Гуанлин городского округа Янчжоу
Фотография © XIA ZHI Pictures / предоставлена B.L.U.E. Architecture Studio
Отель Jiangnan House в районе Гуанлин городского округа Янчжоу
Фотография © XIA ZHI Pictures / предоставлена B.L.U.E. Architecture Studio
Отель Jiangnan House в районе Гуанлин городского округа Янчжоу
Фотография © XIA ZHI Pictures / предоставлена B.L.U.E. Architecture Studio
Отель Jiangnan House в районе Гуанлин городского округа Янчжоу
Фотография © XIA ZHI Pictures / предоставлена B.L.U.E. Architecture Studio
Отель Jiangnan House в районе Гуанлин городского округа Янчжоу
Фотография © XIA ZHI Pictures / предоставлена B.L.U.E. Architecture Studio
Отель Jiangnan House в районе Гуанлин городского округа Янчжоу
Фотография © XIA ZHI Pictures / предоставлена B.L.U.E. Architecture Studio
Отель Jiangnan House в районе Гуанлин городского округа Янчжоу
Фотография © XIA ZHI Pictures / предоставлена B.L.U.E. Architecture Studio
Отель Jiangnan House в районе Гуанлин городского округа Янчжоу
Фотография © XIA ZHI Pictures / предоставлена B.L.U.E. Architecture Studio
Отель Jiangnan House в районе Гуанлин городского округа Янчжоу
Фотография © XIA ZHI Pictures / предоставлена B.L.U.E. Architecture Studio
Отель Jiangnan House в районе Гуанлин городского округа Янчжоу
Фотография © XIA ZHI Pictures / предоставлена B.L.U.E. Architecture Studio
Отель Jiangnan House в районе Гуанлин городского округа Янчжоу
Фотография © XIA ZHI Pictures / предоставлена B.L.U.E. Architecture Studio
Отель Jiangnan House в районе Гуанлин городского округа Янчжоу
Фотография © XIA ZHI Pictures / предоставлена B.L.U.E. Architecture Studio
Отель Jiangnan House в районе Гуанлин городского округа Янчжоу
Фотография © XIA ZHI Pictures / предоставлена B.L.U.E. Architecture Studio
Отель Jiangnan House в районе Гуанлин городского округа Янчжоу
Фотография © XIA ZHI Pictures / предоставлена B.L.U.E. Architecture Studio
Отель Jiangnan House в районе Гуанлин городского округа Янчжоу
Фотография © XIA ZHI Pictures / предоставлена B.L.U.E. Architecture Studio
Отель Jiangnan House в районе Гуанлин городского округа Янчжоу
Фотография © XIA ZHI Pictures / предоставлена B.L.U.E. Architecture Studio
Отель Jiangnan House в районе Гуанлин городского округа Янчжоу
Фотография © XIA ZHI Pictures / предоставлена B.L.U.E. Architecture Studio
Отель Jiangnan House в районе Гуанлин городского округа Янчжоу
Фотография © XIA ZHI Pictures / предоставлена B.L.U.E. Architecture Studio
Отель Jiangnan House в районе Гуанлин городского округа Янчжоу
Фотография © XIA ZHI Pictures / предоставлена B.L.U.E. Architecture Studio
Отель Jiangnan House в районе Гуанлин городского округа Янчжоу
Фотография © XIA ZHI Pictures / предоставлена B.L.U.E. Architecture Studio
Отель Jiangnan House в районе Гуанлин городского округа Янчжоу
Фотография © XIA ZHI Pictures / предоставлена B.L.U.E. Architecture Studio
Отель Jiangnan House в районе Гуанлин городского округа Янчжоу
Фотография © XIA ZHI Pictures / предоставлена B.L.U.E. Architecture Studio
Отель Jiangnan House в районе Гуанлин городского округа Янчжоу
Фотография © XIA ZHI Pictures / предоставлена B.L.U.E. Architecture Studio
Отель Jiangnan House в районе Гуанлин городского округа Янчжоу
Фотография © XIA ZHI Pictures / предоставлена B.L.U.E. Architecture Studio
Отель Jiangnan House в районе Гуанлин городского округа Янчжоу
Фотография © XIA ZHI Pictures / предоставлена B.L.U.E. Architecture Studio
Отель Jiangnan House в районе Гуанлин городского округа Янчжоу
Фотография © XIA ZHI Pictures / предоставлена B.L.U.E. Architecture Studio
Отель Jiangnan House в районе Гуанлин городского округа Янчжоу
Фотография © XIA ZHI Pictures / предоставлена B.L.U.E. Architecture Studio
Отель Jiangnan House в районе Гуанлин городского округа Янчжоу
Фотография © XIA ZHI Pictures / предоставлена B.L.U.E. Architecture Studio
Отель Jiangnan House в районе Гуанлин городского округа Янчжоу
Фотография © XIA ZHI Pictures / предоставлена B.L.U.E. Architecture Studio
Отель Jiangnan House в районе Гуанлин городского округа Янчжоу
Фотография © XIA ZHI Pictures / предоставлена B.L.U.E. Architecture Studio
Отель Jiangnan House в районе Гуанлин городского округа Янчжоу
Фотография © XIA ZHI Pictures / предоставлена B.L.U.E. Architecture Studio
Отель Jiangnan House в районе Гуанлин городского округа Янчжоу
Фотография © XIA ZHI Pictures / предоставлена B.L.U.E. Architecture Studio
Отель Jiangnan House в районе Гуанлин городского округа Янчжоу
Фотография © XIA ZHI Pictures / предоставлена B.L.U.E. Architecture Studio
Отель Jiangnan House в районе Гуанлин городского округа Янчжоу
Фотография © XIA ZHI Pictures / предоставлена B.L.U.E. Architecture Studio
Отель Jiangnan House в районе Гуанлин городского округа Янчжоу
Фотография © XIA ZHI Pictures / предоставлена B.L.U.E. Architecture Studio
Отель Jiangnan House в районе Гуанлин городского округа Янчжоу
Фотография © XIA ZHI Pictures / предоставлена B.L.U.E. Architecture Studio
Отель Jiangnan House в районе Гуанлин городского округа Янчжоу
Фотография © XIA ZHI Pictures / предоставлена B.L.U.E. Architecture Studio
Отель Jiangnan House в районе Гуанлин городского округа Янчжоу
© B.L.U.E. Architecture Studio
Отель Jiangnan House в районе Гуанлин городского округа Янчжоу
© B.L.U.E. Architecture Studio
Отель Jiangnan House в районе Гуанлин городского округа Янчжоу
© B.L.U.E. Architecture Studio
Отель Jiangnan House в районе Гуанлин городского округа Янчжоу
© B.L.U.E. Architecture Studio
Отель Jiangnan House в районе Гуанлин городского округа Янчжоу
© B.L.U.E. Architecture Studio
Отель Jiangnan House в районе Гуанлин городского округа Янчжоу
© B.L.U.E. Architecture Studio
Отель Jiangnan House в районе Гуанлин городского округа Янчжоу
© B.L.U.E. Architecture Studio
Отель Jiangnan House в районе Гуанлин городского округа Янчжоу
© B.L.U.E. Architecture Studio
Отель Jiangnan House в районе Гуанлин городского округа Янчжоу
© B.L.U.E. Architecture Studio
Отель Jiangnan House в районе Гуанлин городского округа Янчжоу
© B.L.U.E. Architecture Studio
Отель Jiangnan House в районе Гуанлин городского округа Янчжоу
© B.L.U.E. Architecture Studio
Отель Jiangnan House в районе Гуанлин городского округа Янчжоу – состояние до реконструкции
Фотография © B.L.U.E. Architecture Studio
Отель Jiangnan House в районе Гуанлин городского округа Янчжоу – состояние до реконструкции
Фотография © B.L.U.E. Architecture Studio
Отель Jiangnan House в районе Гуанлин городского округа Янчжоу – состояние до реконструкции
Фотография © B.L.U.E. Architecture Studio
Отель Jiangnan House в районе Гуанлин городского округа Янчжоу – состояние до реконструкции
Фотография © B.L.U.E. Architecture Studio
Отель Jiangnan House в районе Гуанлин городского округа Янчжоу – состояние до реконструкции
Фотография © B.L.U.E. Architecture Studio
Отель Jiangnan House в районе Гуанлин городского округа Янчжоу – состояние до реконструкции
Фотография © B.L.U.E. Architecture Studio
Отель Jiangnan House в районе Гуанлин городского округа Янчжоу – состояние до реконструкции
Фотография © B.L.U.E. Architecture Studio
Отель Jiangnan House в районе Гуанлин городского округа Янчжоу – в процессе строительства
Фотография © B.L.U.E. Architecture Studio
Отель Jiangnan House в районе Гуанлин городского округа Янчжоу – в процессе строительства
Фотография © B.L.U.E. Architecture Studio
Отель Jiangnan House в районе Гуанлин городского округа Янчжоу – в процессе строительства
Фотография © B.L.U.E. Architecture Studio
Отель Jiangnan House в районе Гуанлин городского округа Янчжоу – в процессе строительства
Фотография © B.L.U.E. Architecture Studio
Отель Jiangnan House в районе Гуанлин городского округа Янчжоу – в процессе строительства
Фотография © B.L.U.E. Architecture Studio
Отель Jiangnan House в районе Гуанлин городского округа Янчжоу – в процессе строительства
Фотография © B.L.U.E. Architecture Studio
Отель Jiangnan House в районе Гуанлин городского округа Янчжоу – в процессе строительства
Фотография © B.L.U.E. Architecture Studio

Избранные архитекторы:

  • Питер Айзенман
  • Заха Хадид
  • Жан Нувель
  • Уильям Олсоп
  • Ренцо Пьяно
  • Тадао Андо
  • Алехандро Аравена
  • Николас Гримшо
  • Даниэль Либескинд

Проект из каталога (случайный выбор)

Избранные постройки:

  • Музей Гуггенхайм-Эрмитаж
  • Музей современного искусства в Форт-Уэрте
  • Филармония Люксембурга
  • Vulcania – Европейский центр вулканологии
  • Международный аэропорт Пекина – Терминал 3
  • Новый музей – реконструкция
  • Флоридский политехнический университет – Корпус наук, инноваций и технологий
  • Юридический факультет Кембриджского университета
  • Посольство Нидерландов

Зарубежные новости