|
B.L.U.E. Architecture Studio трансформировало фрагмент исторической застройки города Янчжоу под гостиницу: ее вестибюль устроили в старом кинотеатре.
Квартал разновременной смешанной застройки в старой части района Гуанлин (около 600 тыс. жителей) в городском округе Янчжоу подвергся смелой реконструкции, целью которой было не только устройство здесь гостиницы, но и создание образца для дальнейшей трансформации центра Гуанлина. Главным объектом стал кинотеатр «Субэй», построенный в 1949 на главной и самой протяженной улице всего района (она тоже называется Гуанлин), вместе с прилегающими к нему постройками. Он был первым и главным кинозалом в Янчжоу, но к 2004-му потерял популярность и закрылся. Авторами новой страницы в истории здания, важного для нескольких поколений горожан, стало бюро B.L.U.E. Architecture Studio, основанное в Пекине японцами Сухэем Аоямой и Йоко Фудзии.
     
Японский дух отчетливо различим в новом образе оформленного ими отеля Jiangnan House с его деревянной отделкой, вниманием к фактурам и ничем не нарушаемым плоскостям. Перед архитекторами стояла задача собрать воедино здания, построенные из разных материалов (дерево, кирпич, бетон) в разное время и имеющие разную историческую ценность, а также дополнить плотную низкоэтажную застройку новыми объемами и связать все богатым ландшафтным решением. При этом общий дух необходимо было сохранить. В результате часть объектов и их фрагментов тщательно реставрировали, часть реконструировали, часть серьезно перестроили, а часть возвели полностью с нуля.
   
Фасад кинотеатра практически полностью восстановлен, включая вывеску с красной звездой, скульптуры рабочих, крестьян и солдат и даже киноафиши справа и слева от входа. Эффектную деревянную кровлю тоже удалось сохранить. Но главный зал теперь превратился в вестибюль отеля. Из уважения к прошлому внутри оставили экран (кинопоказы тут тоже планируется устраивать) и активно использовали в оформлении афиши, кадры и образы знаковых героев картин, когда-то демонстрировавшихся именно здесь. Для создания тематических гравюр на стенах привлекли местных художников.
    
В центре нового вестибюля устроен зеленый «коридор» как напоминание о традиционных садах. Он также помогает создать комфортную, расслабленную атмосферу и продемонстрировать связь внешнего и внутреннего пространств. В отделке использована древесина вяза и шпон: в сочетании с каменным полом они отсылают к архитектуре старого города.
   
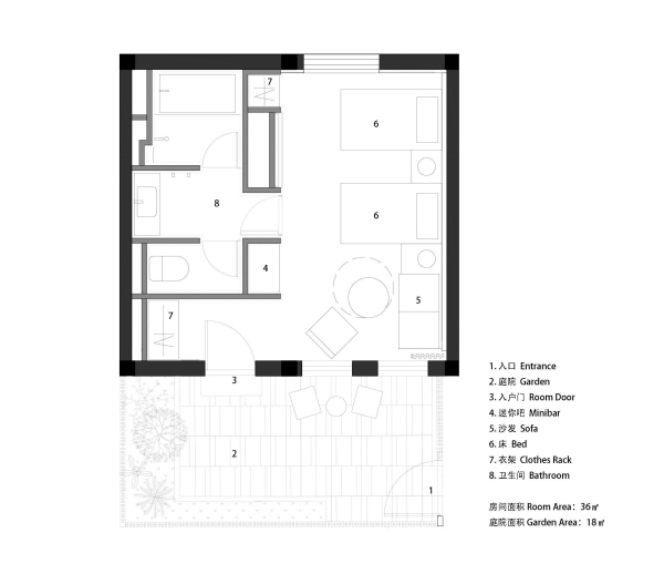
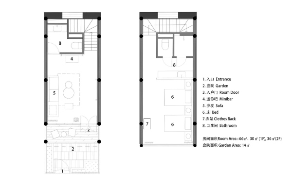
В решении новых объемов также ясно демонстрируется уважение к традиционной застройке и ремесленным традициям. В одном из них разместили: внизу – залы ресторана, а номера – в верхней части, а в другом – баню с термальным источником и сауну.
   
Сами же номера (всего их 40), часть из которых устроены в исторических корпусах, получили минималистичную отделку из натуральных материалов с сохранением всех ценных элементов и местного колорита, в которую органично, почти незаметно интегрированы необходимые удобства. Вместе все корпуса напоминают систему павильонов в традиционном китайском саду и соединены укромными зелеными зонами, переходами и разнообразными полуоткрытыми пространствами. Отель Jiangnan House в районе Гуанлин городского округа ЯнчжоуФотография © XIA ZHI Pictures / предоставлена B.L.U.E. Architecture Studio
Отель Jiangnan House в районе Гуанлин городского округа ЯнчжоуФотография © XIA ZHI Pictures / предоставлена B.L.U.E. Architecture Studio
Отель Jiangnan House в районе Гуанлин городского округа ЯнчжоуФотография © XIA ZHI Pictures / предоставлена B.L.U.E. Architecture Studio
Отель Jiangnan House в районе Гуанлин городского округа ЯнчжоуФотография © XIA ZHI Pictures / предоставлена B.L.U.E. Architecture StudioОтель Jiangnan House в районе Гуанлин городского округа ЯнчжоуФотография © XIA ZHI Pictures / предоставлена B.L.U.E. Architecture StudioОтель Jiangnan House в районе Гуанлин городского округа ЯнчжоуФотография © XIA ZHI Pictures / предоставлена B.L.U.E. Architecture Studio
Отель Jiangnan House в районе Гуанлин городского округа ЯнчжоуФотография © XIA ZHI Pictures / предоставлена B.L.U.E. Architecture StudioОтель Jiangnan House в районе Гуанлин городского округа ЯнчжоуФотография © XIA ZHI Pictures / предоставлена B.L.U.E. Architecture StudioОтель Jiangnan House в районе Гуанлин городского округа ЯнчжоуФотография © XIA ZHI Pictures / предоставлена B.L.U.E. Architecture Studio
Отель Jiangnan House в районе Гуанлин городского округа ЯнчжоуФотография © XIA ZHI Pictures / предоставлена B.L.U.E. Architecture Studio
Отель Jiangnan House в районе Гуанлин городского округа ЯнчжоуФотография © XIA ZHI Pictures / предоставлена B.L.U.E. Architecture Studio
Отель Jiangnan House в районе Гуанлин городского округа ЯнчжоуФотография © XIA ZHI Pictures / предоставлена B.L.U.E. Architecture Studio
Отель Jiangnan House в районе Гуанлин городского округа ЯнчжоуФотография © XIA ZHI Pictures / предоставлена B.L.U.E. Architecture Studio
Отель Jiangnan House в районе Гуанлин городского округа ЯнчжоуФотография © XIA ZHI Pictures / предоставлена B.L.U.E. Architecture Studio
Отель Jiangnan House в районе Гуанлин городского округа ЯнчжоуФотография © XIA ZHI Pictures / предоставлена B.L.U.E. Architecture StudioОтель Jiangnan House в районе Гуанлин городского округа ЯнчжоуФотография © XIA ZHI Pictures / предоставлена B.L.U.E. Architecture StudioОтель Jiangnan House в районе Гуанлин городского округа ЯнчжоуФотография © XIA ZHI Pictures / предоставлена B.L.U.E. Architecture StudioОтель Jiangnan House в районе Гуанлин городского округа ЯнчжоуФотография © XIA ZHI Pictures / предоставлена B.L.U.E. Architecture Studio
Отель Jiangnan House в районе Гуанлин городского округа ЯнчжоуФотография © XIA ZHI Pictures / предоставлена B.L.U.E. Architecture Studio
Отель Jiangnan House в районе Гуанлин городского округа ЯнчжоуФотография © XIA ZHI Pictures / предоставлена B.L.U.E. Architecture Studio
Отель Jiangnan House в районе Гуанлин городского округа ЯнчжоуФотография © XIA ZHI Pictures / предоставлена B.L.U.E. Architecture StudioОтель Jiangnan House в районе Гуанлин городского округа ЯнчжоуФотография © XIA ZHI Pictures / предоставлена B.L.U.E. Architecture StudioОтель Jiangnan House в районе Гуанлин городского округа ЯнчжоуФотография © XIA ZHI Pictures / предоставлена B.L.U.E. Architecture StudioОтель Jiangnan House в районе Гуанлин городского округа ЯнчжоуФотография © XIA ZHI Pictures / предоставлена B.L.U.E. Architecture StudioОтель Jiangnan House в районе Гуанлин городского округа ЯнчжоуФотография © XIA ZHI Pictures / предоставлена B.L.U.E. Architecture Studio
Отель Jiangnan House в районе Гуанлин городского округа ЯнчжоуФотография © XIA ZHI Pictures / предоставлена B.L.U.E. Architecture StudioОтель Jiangnan House в районе Гуанлин городского округа ЯнчжоуФотография © XIA ZHI Pictures / предоставлена B.L.U.E. Architecture StudioОтель Jiangnan House в районе Гуанлин городского округа ЯнчжоуФотография © XIA ZHI Pictures / предоставлена B.L.U.E. Architecture StudioОтель Jiangnan House в районе Гуанлин городского округа ЯнчжоуФотография © XIA ZHI Pictures / предоставлена B.L.U.E. Architecture StudioОтель Jiangnan House в районе Гуанлин городского округа ЯнчжоуФотография © XIA ZHI Pictures / предоставлена B.L.U.E. Architecture StudioОтель Jiangnan House в районе Гуанлин городского округа ЯнчжоуФотография © XIA ZHI Pictures / предоставлена B.L.U.E. Architecture StudioОтель Jiangnan House в районе Гуанлин городского округа ЯнчжоуФотография © XIA ZHI Pictures / предоставлена B.L.U.E. Architecture StudioОтель Jiangnan House в районе Гуанлин городского округа ЯнчжоуФотография © XIA ZHI Pictures / предоставлена B.L.U.E. Architecture Studio
Отель Jiangnan House в районе Гуанлин городского округа ЯнчжоуФотография © XIA ZHI Pictures / предоставлена B.L.U.E. Architecture Studio
Отель Jiangnan House в районе Гуанлин городского округа ЯнчжоуФотография © XIA ZHI Pictures / предоставлена B.L.U.E. Architecture StudioОтель Jiangnan House в районе Гуанлин городского округа ЯнчжоуФотография © XIA ZHI Pictures / предоставлена B.L.U.E. Architecture StudioОтель Jiangnan House в районе Гуанлин городского округа ЯнчжоуФотография © XIA ZHI Pictures / предоставлена B.L.U.E. Architecture StudioОтель Jiangnan House в районе Гуанлин городского округа ЯнчжоуФотография © XIA ZHI Pictures / предоставлена B.L.U.E. Architecture StudioОтель Jiangnan House в районе Гуанлин городского округа ЯнчжоуФотография © XIA ZHI Pictures / предоставлена B.L.U.E. Architecture StudioОтель Jiangnan House в районе Гуанлин городского округа ЯнчжоуФотография © XIA ZHI Pictures / предоставлена B.L.U.E. Architecture StudioОтель Jiangnan House в районе Гуанлин городского округа ЯнчжоуФотография © XIA ZHI Pictures / предоставлена B.L.U.E. Architecture StudioОтель Jiangnan House в районе Гуанлин городского округа ЯнчжоуФотография © XIA ZHI Pictures / предоставлена B.L.U.E. Architecture StudioОтель Jiangnan House в районе Гуанлин городского округа ЯнчжоуФотография © XIA ZHI Pictures / предоставлена B.L.U.E. Architecture StudioОтель Jiangnan House в районе Гуанлин городского округа Янчжоу© B.L.U.E. Architecture Studio
Отель Jiangnan House в районе Гуанлин городского округа Янчжоу© B.L.U.E. Architecture Studio
Отель Jiangnan House в районе Гуанлин городского округа Янчжоу© B.L.U.E. Architecture StudioОтель Jiangnan House в районе Гуанлин городского округа Янчжоу© B.L.U.E. Architecture StudioОтель Jiangnan House в районе Гуанлин городского округа Янчжоу© B.L.U.E. Architecture StudioОтель Jiangnan House в районе Гуанлин городского округа Янчжоу© B.L.U.E. Architecture StudioОтель Jiangnan House в районе Гуанлин городского округа Янчжоу© B.L.U.E. Architecture StudioОтель Jiangnan House в районе Гуанлин городского округа Янчжоу© B.L.U.E. Architecture StudioОтель Jiangnan House в районе Гуанлин городского округа Янчжоу© B.L.U.E. Architecture StudioОтель Jiangnan House в районе Гуанлин городского округа Янчжоу© B.L.U.E. Architecture StudioОтель Jiangnan House в районе Гуанлин городского округа Янчжоу© B.L.U.E. Architecture StudioОтель Jiangnan House в районе Гуанлин городского округа Янчжоу – состояние до реконструкцииФотография © B.L.U.E. Architecture StudioОтель Jiangnan House в районе Гуанлин городского округа Янчжоу – состояние до реконструкцииФотография © B.L.U.E. Architecture StudioОтель Jiangnan House в районе Гуанлин городского округа Янчжоу – состояние до реконструкцииФотография © B.L.U.E. Architecture StudioОтель Jiangnan House в районе Гуанлин городского округа Янчжоу – состояние до реконструкцииФотография © B.L.U.E. Architecture StudioОтель Jiangnan House в районе Гуанлин городского округа Янчжоу – состояние до реконструкцииФотография © B.L.U.E. Architecture StudioОтель Jiangnan House в районе Гуанлин городского округа Янчжоу – состояние до реконструкцииФотография © B.L.U.E. Architecture StudioОтель Jiangnan House в районе Гуанлин городского округа Янчжоу – состояние до реконструкцииФотография © B.L.U.E. Architecture StudioОтель Jiangnan House в районе Гуанлин городского округа Янчжоу – в процессе строительстваФотография © B.L.U.E. Architecture StudioОтель Jiangnan House в районе Гуанлин городского округа Янчжоу – в процессе строительстваФотография © B.L.U.E. Architecture StudioОтель Jiangnan House в районе Гуанлин городского округа Янчжоу – в процессе строительстваФотография © B.L.U.E. Architecture StudioОтель Jiangnan House в районе Гуанлин городского округа Янчжоу – в процессе строительстваФотография © B.L.U.E. Architecture StudioОтель Jiangnan House в районе Гуанлин городского округа Янчжоу – в процессе строительстваФотография © B.L.U.E. Architecture StudioОтель Jiangnan House в районе Гуанлин городского округа Янчжоу – в процессе строительстваФотография © B.L.U.E. Architecture StudioОтель Jiangnan House в районе Гуанлин городского округа Янчжоу – в процессе строительстваФотография © B.L.U.E. Architecture Studio
|