Описание предоставлено архитекторами
Вилла располагается на острове Бали, на крутом рельефе. Учитывая небольшой бюджет и квалификацию местных рабочих, архитектор в качестве основных материалов использовал бетон, штукатурку и стеклоблоки. В процессе работы над зданием заказчик понял, что дом для него слишком большой и решил переделать его в бутик-отель. Так сформировался финальный план на шесть изолированных номеров.
Вилла Крабс
Фотография © ILYA GRINBERG
Вилла Крабс
Фотография © ILYA GRINBERG
Всю геометрию виллы определяют три криволинейные стены, которые формируют два подобных морским раковинам трехэтажных крыла. В доме есть всего одна прямая стена, к которой примыкают кровати и инсталляции. На каждом этаже располагается по две спальни с «завитком» душевой комнаты и просторной террасой, обращенной к океану.
Вилла Крабс. Мастерплан
© ILYA GRINBERG
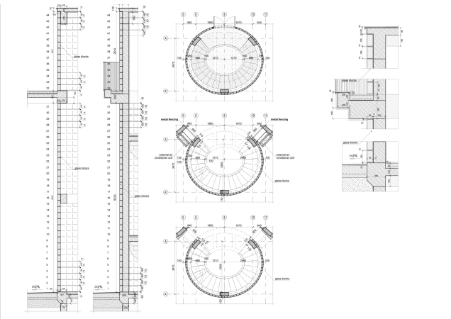
Этажи связывает винтовая лестница, скрытая в цилиндре из стеклоблоков. Она выходит на крышу: по сути, открытую гостиную с видом на океан. В расщелине между «раковинами» помещается еще одна лестница, ведущая к бассейну.
Вилла Крабс
Фотография © ILYA GRINBERG
Поскольку бюджет был очень ограничен, отделка стен и потолка не предполагалась. Конструктивные балки спроектированы с учетом того, что они видны в интерьере и становятся частью декора.



