Проект школы – очень звучный, идеи всесторонне прогрессивны: современные образовательные методики, никакого отбора по способностям – возьмут тех, кто первый подаст заявление, – и 15% приемных детей, в том числе с особыми потребностями, чьи семьи [большие семьи так называемых профессиональных родителей, – прим. ред.] будут жить в коттеджном поселке, построенном рядом со зданием школы: «впервые в России школьная программа будет включать элементы инклюзии и социальной адаптации». Коротко говоря, согласно замыслу «Точка будущего» должна давать лучшее самым несчастным: современное образование, основанное на индивидуальном подходе и высокой степени адаптивности, сиротам не самого благополучного региона РФ.
Идею прогрессивной школы с интеграцией детей-сирот, как известно, высказала в 2011 году Тина Канделаки, она же стала инициатором проекта, чье развитие именно в Иркутске объясняется социальной ситуацией в области. В 2017 году в Иркутской области сирот было больше, чем в других регионах РФ, сейчас статистика улучшается, но не очень быстро. Проект «был заявлен» в 2013 году, тогда же началась разработка программы. По словам Тины Канделаки, «Для России этот проект – как проектирование штаб-квартиры Google для Америки».
Основное образование в «Точке будущего» предполагается бесплатным, даже семьи в коттеджах, как подчеркивают организаторы, не будут платить аренду, а только «коммуналку». Все это – без государственного финансирования, так как школа – полностью частный благотворительный проект: как строительство, так и поддержку последующего функционирования комплекса взял на себя фонд «Новый дом» уроженца Иркутской области Альберта Авдоляна. Строительство здания обошлось в 6 млрд рублей. Первый учебный год в «Точке будущего» начался 1 сентября 2020, заявления собраны в апреле. Школа поддерживает полный цикл обучения от детского сада до старших классов и при всей прогрессивности программы соответствует нормативам РФ, как образовательным, так и строительным. Через три года, к 2023, общее количество учеников планируется довести до 1022 человек, около 150 из них должны быть приемными детьми. Коттеджи – на 20 семей.
Образовательный комплекс «Точка будущего»
Фотография: «Точка будущего»
Программа обучения, также как и подготовки педагогов, разработана Центром разработки образовательных систем «Умная школа», глава центра Марк Сатран также участвовал в подготовке ТЗ архитектурного конкурса, написанного им совместно с КБ «Стрелка».
Марк Сартан, руководитель Центра разработки образовательных систем «Умная школа»:
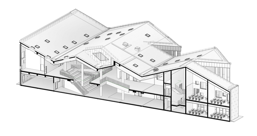
«При разработке архитектурного проекта мы ставили перед собой задачу сделать само здание образовательным инструментом. Для коллег из датского архитектурного бюро CEBRA это был вдохновляющий вызов. В ходе совместных воркшопов они мгновенно откликались на запросы, вместе с нами прорабатывали ежедневные образовательные сценарии в проектируемом пространстве и соответственно корректировали инженерные и планировочные решения.
Самым трудным было уложить архитектурные и образовательные идеи в прокрустово ложе российских норм. В предельно зарегулированном детском саду пришлось в угоду внешним требованиям выгородить отдельные групповые ячейки и соединить их коридорами, что противоречит всем современным трендам. В остальных корпусах удалось сохранить многосвязность и общественные пространства, насыщенные образовательными функциями, скорректировав их согласно нормативам.
Здание должно было воплощать идею единства, основополагающую для благотворительного социального проекта, помогать ребенку делать выбор, вдохновлять его на действия, отражать его взросление, учить ответственно распоряжаться пространством и своим образованием. Архитекторы предложили круг отдельных зданий под объединяющим укрытием, где ребенок, взрослея, переходит из одного корпуса в другой, а каждодневный маршрут может выбирать из множества вариантов. Получилось полное отражение образовательной идеи в архитектурно-пространственном решении».
Самым трудным было уложить архитектурные и образовательные идеи в прокрустово ложе российских норм. В предельно зарегулированном детском саду пришлось в угоду внешним требованиям выгородить отдельные групповые ячейки и соединить их коридорами, что противоречит всем современным трендам. В остальных корпусах удалось сохранить многосвязность и общественные пространства, насыщенные образовательными функциями, скорректировав их согласно нормативам.
Здание должно было воплощать идею единства, основополагающую для благотворительного социального проекта, помогать ребенку делать выбор, вдохновлять его на действия, отражать его взросление, учить ответственно распоряжаться пространством и своим образованием. Архитекторы предложили круг отдельных зданий под объединяющим укрытием, где ребенок, взрослея, переходит из одного корпуса в другой, а каждодневный маршрут может выбирать из множества вариантов. Получилось полное отражение образовательной идеи в архитектурно-пространственном решении».
Датская архитектурная компания CEBRA, возглавившая победивший консорциум, специализируется, в числе прочего, на современных школьных зданиях, соответствующих новым образовательным концепциям, или даже, по словам самих датчан, на создании пространств, которые могут «обучать сами по себе».
Образовательный комплекс «Точка будущего»
Фотография: «Точка будущего»
Предложенная концепция, согласно ее авторскому описанию, не была подчинена ни заданной программе, ни тем более какой-то одной образовательной парадигме, – а скорее стремилась следовать за «энергетикой обучения как такового». Главная идея – гибкость и разнообразие, причем между множеством разных функций возникает «гравитационное» притяжение, «как между звездами в галактике», способствующее росту и развитию.
Все это хорошо описано в ролике
конкурсной концепции с сайта Cebra:
Карстен Примдел, партнер-основатель Cebra, глава консорциума, победившего в конкурсе
«Программа конкурса была нацелена на поиск нового типа школы, основанной на знаниях и логике современных исследований в области педагогики.
Мы добились этого с помощью узнаваемой архитектуры с сильной идентичностью образа. Несколько объемов со шипцовыми кровлями сгруппированы в кольцо, срезанное снаружи по кругу: как будто несколько отдельных зданий соединены общей кровлей. Большие выносы карнизов, защищающих от солнца и дождя, позволят использовать внешнее пространство в разное время года. Кроме того образовательная программа учебных помещений, согласно нашему замыслу, должна находить продолжение в пространстве центра кольца, в зеленом дворе-патио: он должен стать активным, живым и насыщенным. Уравновешивающие активность центра спокойные созерцательные пространства классов, напротив, сгруппированы по внешнему контуру, используя красоты окружающих пейзажей.
Мы считаем архитектуру саму по себе инструментом обучения, она способна стимулировать наши способности учиться. Рекомендую познакомиться с WISE, электронной книгой, выпущенной исследовательским подразделением CEBRA, и с нашей сенсорно-ориентированной технологией проектирования умных школ под названием Common Sense [Здравый Смысл]».
Мы добились этого с помощью узнаваемой архитектуры с сильной идентичностью образа. Несколько объемов со шипцовыми кровлями сгруппированы в кольцо, срезанное снаружи по кругу: как будто несколько отдельных зданий соединены общей кровлей. Большие выносы карнизов, защищающих от солнца и дождя, позволят использовать внешнее пространство в разное время года. Кроме того образовательная программа учебных помещений, согласно нашему замыслу, должна находить продолжение в пространстве центра кольца, в зеленом дворе-патио: он должен стать активным, живым и насыщенным. Уравновешивающие активность центра спокойные созерцательные пространства классов, напротив, сгруппированы по внешнему контуру, используя красоты окружающих пейзажей.
Мы считаем архитектуру саму по себе инструментом обучения, она способна стимулировать наши способности учиться. Рекомендую познакомиться с WISE, электронной книгой, выпущенной исследовательским подразделением CEBRA, и с нашей сенсорно-ориентированной технологией проектирования умных школ под названием Common Sense [Здравый Смысл]».
Образовательный комплекс «Точка будущего»
Фотография: «Точка будущего»
Резюмируя слова Карстена Примдаля из CEBRA, можно сказать, что школа, во-первых, развивается изнутри наружу, аккумулируя энергетику обучения, выплескивая детскую активность во двор в поисках катализатора учебного процесса, и замирает перед красотой окружающих ландшафтов. А полюбоваться есть чем: участок расположен у южной границы города, у Чергутеевского залива, за аэропортом и за округом Солнечным, который считается самым престижным в городе, но в отличие даже от Солнечного, здесь, еще немного южнее, преобладают не пятиэтажки, а коттеджные поселки. Так что окружение – каменные дома со скатными кровлями, с которыми зигзагообразный силуэт школы заметно перекликается, вписываясь, таким образом, в контекст.
Образовательный комплекс «Точка будущего»
Фотография: «Точка будущего»
Образовательный комплекс «Точка будущего»
Фотография: «Точка будущего»
Упомянутые Примдалем выносы карнизов поддержаны тонкими колоннами – в сущности это портики, и у них две задачи: защитить окна от прямых солнечных лучей, чтобы не понадобились дополнительные жалюзи и шторы, и развить максимум активности в этом пространстве, промежуточном между «внутри» и «снаружи», защищенном от дождя, но открытом свежему воздуху. Большинство из нас знает по опыту детства, какая это важная вещь школьный двор, даже в любом типовом проекте, чему мы там только не учились. А здесь возникает еще и переходное звено, которое, кроме того, перекликается с идеями классики истории образования, потому что как учили великие философы античности, стоики и перипатетики? Прогуливаясь на свежем воздухе в тени портика.
Образовательный комплекс «Точка будущего»
Фотография: «Точка будущего»
Образовательный комплекс «Точка будущего»
Фотография: «Точка будущего»
Образовательный комплекс «Точка будущего»
Фотография: «Точка будущего»
Образовательный комплекс «Точка будущего»
Фотография: «Точка будущего»
Образовательный комплекс «Точка будущего»
Фотография: «Точка будущего»
Образовательный комплекс «Точка будущего»
Фотография: «Точка будущего»
Образовательный комплекс «Точка будущего»
Фотография: «Точка будущего»
Пространств под колоннами здесь видимо-невидимо, по внешнему и внутреннему контуру, отчего школа похожа на античный город, собравшийся в кольцо, – или же на европейский колледж, выстроенный вокруг двора с галереями (тут вспоминаем уже не Аристотеля, а Гарри Поттера). К слову, в отличие от Сколтеха Херцога и де Мерона, где шахматное чередование прямоугольных объемов и таких же двориков заключено в строгую циркульную границу, здесь все контуры очень асимметричны, оставляя «воздух» и акцентируя сходство с мини-городом. Я спросила архитекторов CEBRA о сходстве с проектом Herzog & de Meuron – они ответили, что проекты «звездных» швейцарцев достойны восхищения, но концепция CEBRA опирается на собственные поиски, начатые еще в работах 2006-2008 годов, и кроме того, сходство заканчивается на круглом плане и щипцовых кровлях, в остальном же всё иначе.
«Проект – колоссальной сложности и масштаба, для России беспрецедентный. Если сравнивать с Москвой, это школа уровня Хорошколы и Летово, но «Точка будущего» крупнее и находится очень далеко от столицы, в Иркутске. Поэтому я считаю очень правильным, что к работе были привлечены наши коллеги из датского CEBRA, бюро с опытом исследований в области архитектуры, развивающей новые тенденции в области образования, в портфолио которого уже были реализованные проекты современных школ. Мы часто созванивались, обсуждали концепцию; главная идея принадлежит датчанам, но должен сказать, и нам удалось что-то добавить. Эта работа очень нас обогатила, дала полезный опыт в области проектирования школьных зданий.
Образ здания построен на двух основных темах: поскольку важной отправной точкой проекта было создать место, в котором детям-сиротам будет комфортно учиться, то круг – это своего рода стена, которая должна работать на эффект защищенности. Для таких детей очень важно чувствовать себя в безопасности. Вторая идея – дом, отсюда контур скатных кровель; важно, чтобы дети воспринимали школу как второй дом.
В основу пространственной модели легли две ключевые особенности новой модели образования: оно должно воспитывать в людях ответственность, прежде всего за себя, самостоятельность и способность к самообразованию. Человек учится всю жизнь, в современном обществе это все более актуально, все время надо осваивать что-то новое, все больше требуются кроссплатформенные знания. Многофункциональность и гибкость – основа современного мира, и мы закладывали это в программу современной школы. У нас даже окна разные, где-то маленькие, где-то большие. Детей сразу учат жить, работать, учиться, взаимодействовать в сложных пространствах. Значительная часть обучения происходит не по традиционной модели «учитель и дети за партами», а иначе, к примеру в игровой форме; дети учатся сами и учат друг друга, даже на переменах.
Мы ценим этот проект, и приложили много усилий к тому, чтобы при дальнейшей разработке и вынужденном сокращении бережно отнестись и к заложенной в его основу образовательной концепции и к идеям наших коллег-датчан».
Образ здания построен на двух основных темах: поскольку важной отправной точкой проекта было создать место, в котором детям-сиротам будет комфортно учиться, то круг – это своего рода стена, которая должна работать на эффект защищенности. Для таких детей очень важно чувствовать себя в безопасности. Вторая идея – дом, отсюда контур скатных кровель; важно, чтобы дети воспринимали школу как второй дом.
В основу пространственной модели легли две ключевые особенности новой модели образования: оно должно воспитывать в людях ответственность, прежде всего за себя, самостоятельность и способность к самообразованию. Человек учится всю жизнь, в современном обществе это все более актуально, все время надо осваивать что-то новое, все больше требуются кроссплатформенные знания. Многофункциональность и гибкость – основа современного мира, и мы закладывали это в программу современной школы. У нас даже окна разные, где-то маленькие, где-то большие. Детей сразу учат жить, работать, учиться, взаимодействовать в сложных пространствах. Значительная часть обучения происходит не по традиционной модели «учитель и дети за партами», а иначе, к примеру в игровой форме; дети учатся сами и учат друг друга, даже на переменах.
Мы ценим этот проект, и приложили много усилий к тому, чтобы при дальнейшей разработке и вынужденном сокращении бережно отнестись и к заложенной в его основу образовательной концепции и к идеям наших коллег-датчан».
Образовательный комплекс «Точка будущего»
Фотография: «Точка будущего»
Образовательный комплекс «Точка будущего»
Фотография: «Точка будущего»
Образовательный комплекс «Точка будущего»
Фотография: «Точка будущего»
Образовательный комплекс «Точка будущего»
Фотография: «Точка будущего»
Переработка концепции, созданной совместно CEBRA и UNK project, была вызвана прежде всего финансовым кризисом: курс рубля упал и здание, по словам архитекторов, пришлось удешевить приблизительно на 20%, причем основная сложность состояла в том, что нельзя было просто пожертвовать какой-то частью, но к оптимизации бюджета следовало подойти всесторонне, сохранив все существенное. Где-то пришлось заменить материалы. Отдельное внимание уделили «снеговым карманам» в пазухах щипцовых кровель. UNK project провели весь проект от стадии П до завершения и интерьеров, взяли на себя функции генпроектировщика.
«Все это было очень непросто, – поясняет Юлий Борисов. – Помимо сокращения бюджета надо было соблюсти все нормативы, в том числе по сейсмоопасности до 8 баллов. Школа должна быть супер-безопасна. Нам помог опыт и наличие в бюро разных подразделений, от инженерного до интерьерного».
«В целом наши российские коллеги были максимально лояльны к исходному проекту, – говорит Карстен Примдаль. – Возможно, если сравнивать окончательный результат с конкурсной концепцией, некоторые проектные решения и какие-то эстетические тонкости CEBRA реализовали бы иначе. Но в целом я считаю результат удачным; при ближайшем рассмотрении, я бы сказал, решение колонн и окон верхнего света, цвета, текстуры и итоговые материалы могут вызвать вопросы. Вижу, что программа пространственной организации поддерживает принципы обучения, построенного на активной деятельности, но мне сложно оценить программу на детализированном уровне, поскольку я не так близко знаком с итоговым проектом и идеями, положенными, в конечном счете, в его основу.
Образовательный комплекс «Точка будущего»
Фотография: «Точка будущего»
Одна из проблем заключалась в том, что требовалось совместить два типа школ: новую и традиционную, подчиненную устаревшим нормативам; необходимо было следовать коду, который сам по себе подразумевал неэффективное использование пространства. Уверен, что нормативы требуют пересмотра и обновления, это сделало бы строительство более экономичным и позволило бы сократить текущие расходы на поддержание здания, а следовательно, выгадать больше средств на собственно обучение», – подчеркивает архитектор.
Интерьеры школы, как уже прозвучало, построены на идее гибкости и сочетания разных пространств, от традиционных классов до разнообразных холлов и атриумов с множеством скамеек, что рассчитано на общение и разнообразное времяпрепровождение. Строгость и некоторую сухость первоначального проекта, почти полностью белого и монохромного, оживили вкраплениями позитивных салатового, оранжевого, насыщенного желтого.
Юлия Тряскина, UNK project:
«Интерьеры в концепции CEBRA были минималистичны и даже аскетичны, построены на нейтральности и отсутствии цвета, что не типично для России. То, что мы добавили, построено на одной из идей комплекса – что интерьер растет вместе с ребенком, и масштаб, и эмоциональное восприятие. В пространствах для малышей мы добавили фактур, с которыми они могли бы взаимодействовать. Мы постепенно увеличивали масштаб интерьера соответственно возрасту ребенка. Добавили чуть-чуть цвета, пятна-акценты и росписи. Но это лишь акценты, в целом мы следовали концепции, что-то подчеркнули, оживили, усилили».
Действительно, вкрапления – именно акценты, на деревянных скамейках амфитеатра, в рамках разноразмерных окон и мебели. Общий тон стен – раздвигающий пространство белый, его подчеркивают линейные светильники на потолке, они дополняют окна верхнего света.
Внутри есть бассейн и спортзал, и оборудованные учебные кабинеты.
Ирина Белянова, президент благотворительного фонда «Новый дом»:
«В феврале мы получили разрешение на ввод в эксплуатацию образовательного комплекса. Здание «Точки будущего» – это шесть корпусов, расположенных по кругу и объединенных одной общей крышей. Оно не только современное и комфортное, но и надежное, ведь речь идет о детях.
В классах и группах детского сада большие и малые окна расположены на разных высотах, чтобы свет равномерно попадал в кабинеты в любое время дня. В комплексе практически нет коридоров – большие холлы, переходы, открытые пространства. Все для того, чтобы дети общались, занимались, отдыхали.
За основу был взят проект датской компании, а российские специалисты адаптировали его с учетом местных особенностей. Например, учли высокую сейсмическую активность региона и усилили конструкции. В Иркутске низкие температуры зимой и высокие летом, поэтому здание дополнительно утеплили.
Очень хотелось, чтобы комплекс отражал и местный колорит. Мы же живем в лесном регионе. Поэтому деревянные скамейки из скандинавских стран заменили на лавочки из сибирского дерева. Долго искали иркутских мастеров, которые сделают для малышей тематические детские площадки. В итоге получились уникальные игровые комплексы, которые выполняют еще и образовательную функцию. Вокруг здания уже начали разбивать большой пейзажный парк. Он будет состоять преимущественно из местных растений».
В классах и группах детского сада большие и малые окна расположены на разных высотах, чтобы свет равномерно попадал в кабинеты в любое время дня. В комплексе практически нет коридоров – большие холлы, переходы, открытые пространства. Все для того, чтобы дети общались, занимались, отдыхали.
За основу был взят проект датской компании, а российские специалисты адаптировали его с учетом местных особенностей. Например, учли высокую сейсмическую активность региона и усилили конструкции. В Иркутске низкие температуры зимой и высокие летом, поэтому здание дополнительно утеплили.
Очень хотелось, чтобы комплекс отражал и местный колорит. Мы же живем в лесном регионе. Поэтому деревянные скамейки из скандинавских стран заменили на лавочки из сибирского дерева. Долго искали иркутских мастеров, которые сделают для малышей тематические детские площадки. В итоге получились уникальные игровые комплексы, которые выполняют еще и образовательную функцию. Вокруг здания уже начали разбивать большой пейзажный парк. Он будет состоять преимущественно из местных растений».
Словом, иркутская школа – очень прогрессивное, масштабное образовательное начинание. Нацелена в будущее лучшими методиками, им вторят архитектурные решения, бережно пронесенные от концепции к реализации несмотря на сложности финансового кризиса. Так и вспоминается Царскосельский лицей, вся его история, и не так важно, что там был коридор, а здесь от коридоров избавляются. Прошло двести лет, методики поменялись, но не изменилась надежда на то, что правильное, новое обучение даст лучшего человека: вырастут дети, выучатся, и будут способствовать лучшему миру. Все же удивительная вещь эти идеи просвещения. Надежда должна быть.




