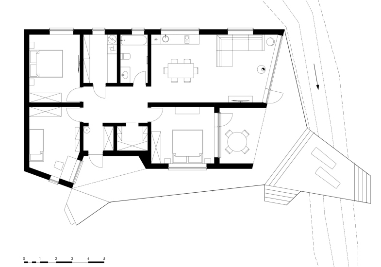
Заказчику достался небольшой участок с перепадом высот, ручьем и выходом к лесу. Реагируя на все эти особенности дом, который задумывался как шале, постепенно превратился в дорогой сердцу «космолет» – именно так хозяева его теперь называют. Чтобы разобраться в непростой на первый взгляд геометрии, следует держать в голове объем традиционного двускатного дома.
Дом в Апрелевке
Фотография © Наталья Меликова \ предоставлено Diagonal
Дом в Апрелевке
Фотография © Наталья Меликова \ предоставлено Diagonal
Прямоугольную в плане схему барна «ломает» детская и гостиная. В детской стена отклоняется от перпендикуляра, чтобы развернуть главное окно в сторону леса. Получается что-то вроде эркера, в котором умещается рабочий стол. Панорамное окно гостиной, по сути прозрачная стена, тоже располагается под углом, поворачиваясь, как головка подсолнуха, к лучшему виду. Под второй половинкой ската располагается ниша крытой веранды.
Дом в Апрелевке
Фотография © Наталья Меликова \ предоставлено Diagonal
Дом в Апрелевке
Фотография © Наталья Меликова \ предоставлено Diagonal
Окончательно усаживает дом в ландшафте двухуровневая терраса. Она берет начало у парковочной площадки, минует детскую комнату, разливается пошире у веранды и окна гостиной, а затем превращается в мост, в перекинутый через ручей и уводящий в лес. Это место для жизни и разных занятий: совместных завтраков, солнечных ванн, игр и отдыха.
Если к лесу дом обращается большими окнами, а стены обшиты светлым планкеном из сосны, то соседей и проезжающие машины он встречает холодным металлом и почти глухими фасадами, которые не дают и намека на открытую и дружелюбную структуру с противоположной стороны.
Дом в Апрелевке
Фотография © Наталья Меликова \ предоставлено Diagonal
Дом в Апрелевке
Фотография © Наталья Меликова \ предоставлено Diagonal
Дом в Апрелевке
Фотография © Наталья Меликова \ предоставлено Diagonal
