Домик для внучки – любопытная типология, следующая ступень за собственной комнатой или домиком на дереве. Он появился рядом с большим коттеджем в Ленинградской области, в котором живет три поколения одной семьи, как педагогический эксперимент – чтобы подросток учился самостоятельно жить и распоряжаться своим имуществом.
Дом для внучки
Фотография © Сорокин Иван / предоставлена ADK-studio
Дом для внучки
Фотография © Сорокин Иван / предоставлена ADK-studio
Одной из важных задач было вписать постройку в рельеф и не слишком изменить привычный пейзаж. «Посадить» дом на свободный участок на склоне помог облегченный свайный фундамент, а конфигурация относительно «взрослого» сделала его присутствие органичным: существующая дорожка перетекает в галерею у входной зоны, отмеченной круглым «иллюминатором», которая в свою очередь продолжается приватным балконом. Открытая «палуба» террасы стала частью общей площадки перед двумя домами. Часть объема скрадывает холм, деревья и подлесок.
Дом для внучки
Фотография © Сорокин Иван / предоставлена ADK-studio
Дом для внучки
Фотография © Сорокин Иван / предоставлена ADK-studio
Из простого, можно сказать, архетипичного объема с двускатной кровлей архитекторы «вырезают» галерею и балкон. Сочетание разных геометрических фигур – прямоугольников стен и дверей, квадратов окошек, круга «иллюминатора» – сообщает что-то ностальгическое об игре в кубики, не делая при этом дом детским. Деревянные рейки облицовки подхватывают ритмы и колористику высоких стволов сосен, еще больше укореняя новую постройку в пространстве.
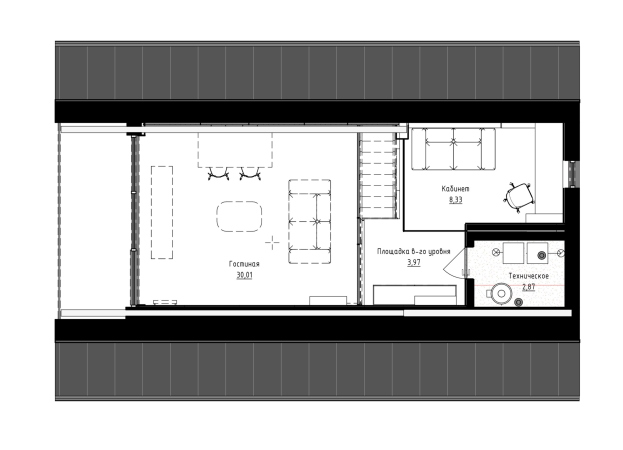
Поскольку к участку невозможно было подогнать кран, от CLT-панелей отказались в пользу деревянного каркаса. Жилая площадь дома – 62 м², еще 41 добавляют террасы. На первом уровне располагается двусветная кухня-гостиная с панорамным окном и спальня с санузлом. В антресоли устроили кабинет с консольным столом и техническое помещение, в котором спрятали все инженерное оборудование. Дом рассчитан на круглогодичное проживание и полностью автономен: благодаря геотермальному котлу полы всегда теплые, для воздухообмена смонтирована приточно-вытяжная вентиляция, в санузле установлен септик.
В отделке помещений используется всего три материала: фанера для стен и встроенной мебели, крупноформатный керамогранит и черный металл. Такое пространство будет расти вместе с хозяйкой, которая сможет наполнять его в соответствии со своими предпочтениями – нейтральный фон выдерживает любые цветовые и пластические акценты, он уместен как для подростка, так и взрослой девушки.
