Однако Volkov plaza – возможно, идеальный пример средового контекстуального модернизма. Ничего он не нарушает, никаких панорам, поскольку спрятан хоть на виду, но очень хорошо. Здание примыкает к Г-образному объему бывшей советской гостиницы «Ярославль», построенной в 1941 году на месте снесенной в 1933 году церкви Власия XVII века. Теперь гостиница служит бизнес-центром. Ее подход к среде – постконструктивистский стилизаторский, встроиться в исторический контекст ей помогают тосканские колонны и массивные балкончики. Впрочем, после того, как Ярославль основательно разрушили артиллерией в 1918 году, когда большевики подавляли здесь одно из самых мощных «белогвардейских восстаний», похожих зданий в самом центре города построили очень много, он состоит из них если не наполовину, то наверное на треть.
Общественный центр Volkov Plaza
Фотография © Антон Севастьянов
Справа, к северу от БЦ – густо заросший деревьями Власьевский сад, напоминание об исчезнувшей церкви, с памятником Федору Волкову, главе легендарной труппы XVIII века, со стороны площади.
Общественный центр Volkov Plaza
Фотография © Антон Севастьянов
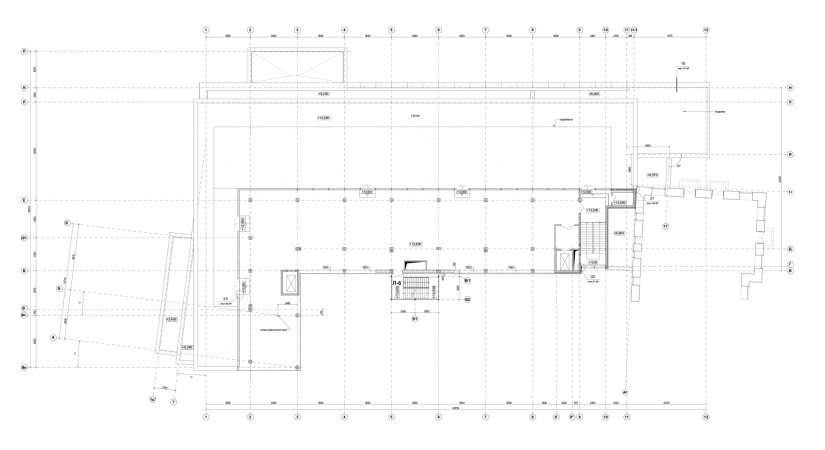
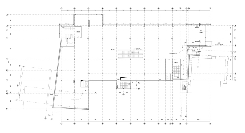
Узкий и длинный Volkov plaza втиснулся между сквером и бизнес-центром, частично углубившись к югу во двор последнего и еще чуть больше заступив туда пятном одноярусной подземной парковки.
Объем общественного центра устроен достаточно сложно. Во-первых, он отступает от красной линии улицы где-то на 7 метров, но и сюда выходит только небольшой «нос», высотой в два этажа, но со стеклянным витражом, в некоторых ракурсах отражающим Знаменскую башню, в глубокой тонкой рамке (отделка – темно-серый фибробетон).
Общественный центр Volkov Plaza. В стекле витража отражается Знаменская башня Земляного города
Фотография © Антон Севастьянов
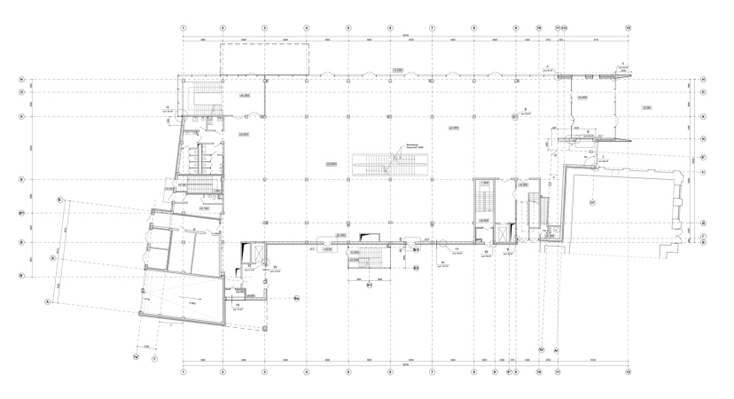
Дальше здание повышается постепенно: третий этаж фитнес-центра вырастает только там, где заканчивается толщина корпуса бывшей гостиницы, то есть еще через 9 метров. Третий этаж отступает от правого края, от сквера, оставляя перед собой обустренную террасу с растениями. Четвертый этаж, если считать от улицы, начинается там же, но от северного края он отступает еще сильнее – перед ним, теперь уже на крыше фитнес-центра, появляется еще одна, тоже обустроенная микросадом, терраса.
Фасад со стороны сквера. Общественный центр Volkov Plaza
© DK architects
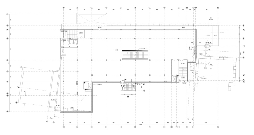
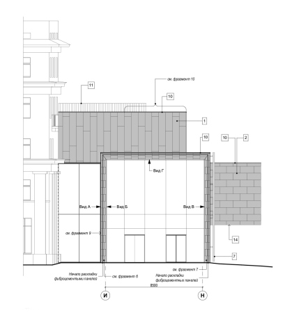
Так что если посмотреть с тыльного юго-западного угла, то заворачивающий во двор «хвост» здания похож на группу поставленных друг на друга, причем со сдвигом, ящиков или контейнеров – этот распространенный прием современной архитектуры помогает подчеркнуть многосооставность здания и «скульптурность» его объема – как поворотами плоскостей, так и различием фактур; особенно хороша офисная часть из матового стекла.
Общественный центр Volkov Plaza
Фотография © Антон Севастьянов
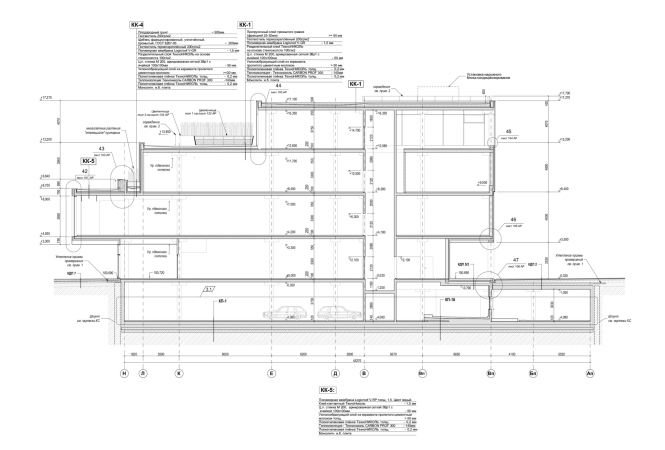
Ступенчатое устройство, которое архитекторы определяют как «террасированность», становится удачным вариантом хорошо известного приема последних десятилетий – попытки спрятать здание, особенно его верхние этажи, сделав их стеклянными и отодвинув от края. Только нередко этот прием выглядит как поза страуса, – а в данном случае получилось, здание по-настоящему удалось «спрятать», а говоря точнее, деликатно встроить в окружение. Как следствие, мы видим, насколько надо отступать и как оперировать объемами, если хочешь действительно тонко вписать новую постройку в исторический центр.
В целом здание развивается именно в глубине – а к улице лишь тянется длинным «носом». На торцевом западном фасаде начинаются скосы стен, обозначающие поворот объема во двор и его «расслаивание» на этажи. К Власьевскому саду обращена консоль ресторана, энергичный и далеко, больше 4 метров, вынесенный к деревьям параллелепипед с отличным видом на деревья, светящийся в темноте, как оранжевый глаз.
По длинному восточному фасаду вдоль Власьевского сада здание как будто «собирает себя» к улице, становится более цельным. Стена двух этажей, которые только и выходят в сквер – стеклянная, она открывают отличные виды в сад и лишь слегка прикрыта тонкими ламелями, чей ритм немного варьируется, откликаясь на сгущения деревьев.
Стекло за вертикальными ламелями – тоже «классический» прием, но не такой остросовременный, как этажи, сгруппированные под разными углами во дворе, а отсылающий нас к послевоенному модернизму, чуть освеженному асимметрией. Так что здание не только можно признать примером хорошей контекстуальной архитектуры – «без дураков» ниоткуда не заметной, ничто не затесняющей, хотя по-своему, если рассмотреть внимательно, яркой и интересной – оно еще и продолжает историю ярославского модернизма, явления не то чтобы очень масштабного, но заметного.
