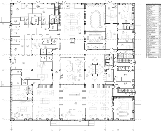
Бизнес Терминал, 3500 м2
Nefa architects
Бизнес терминал для официальных лиц и делегаций находится немного в стороне от основного здания аэропорта. На этом месте археологи обнаружили курган с золотом сарматов. Архитекторы из Nefa architects, вдохновившись этим сюжетом, также как и историческим фактом присутствия на ростовских землях колоний древних греков, превратили здание терминала в периптер – впрочем, очень обобщенный, бетонный и с усложненным ритмом пилонады, чередованием толстых и тонких опор, открытыми углами, разрывом со стороны летного поля, а по бокам даже со сбитым ритмом, напоминающим о штрих-коде.В то же время лаконичные очертания периптера не несут ни кровли, ни фронтона и воспринимаются мегалитически, как подобие Стонхенджа, особенно в косом солнце. Как будто древние окружили свой курган не колоннадой даже, а какими-то ритуальными столбами. Пилонада почти квадратным конктуром, примерно 60 х 70 м, окружает стеклянный объем, который выбрасывает вперед, за линию столбов, длинный приветственный козырек, а внутри скрывает не только крытые залы и переговорные, но и пышный, уже достаточно разросшийся сад – здание устроено по принципу античного атриумного дома, хотя и без имплювия.
Бизнес Терминал Платов
Фотография © Илья Иванов / предоставлена ′nefa′architects′
Интерьеры закрытых помещений решены, как и внешний контур, бруталистски: преобладает цвет и фактура бетона, стены покрыты тонкими вертикальными полосами. Между тем на входе посетителей VIP-зала встречают столбы муранского стекла янтарного оттенка, улавливающие дневной свет и с внутренней подсветкой для вечернего времени, – прямо-таки символы концентированного солнечного тепла.
Бизнес Терминал Платов
Фотография © Илья Иванов / предоставлена ′nefa′architects′
Золотом отливают и светильники, цвета латуни, столь любимой в архитектуре оттепели и позднее, сплетенные в проницаемый объемный узор и снабженные множеством точечных лапочек очень теплого света. Они делают ретромодернисткую направленность архитектуры терминала особенно ясно читаемой: разглядывая его, можно вспомнить и о вашингтонском Кеннеди-центре, и о московском Дворце Съездов, а может быть и о музее Ленина Леонида Павлова. Впрочем, есть одно очевидное отличие, помимо качества бетона, тонкости деталей и полного отсутствия мрамора – здесь совершенно нет красных ковров. Сочетание оттенков бетона с золотистыми вкраплениями, повторенное и в серо-желтых цветах мебели, не выходит за рамки ассоциаций со степной пылью и техническим бетоном аэропорта, оживленной солнечными бликами и воспоминанием о золоте сарматов.
Подробнее о проекте >
Здание, о котором говорилось выше – единственное отдельностоящее художественное дополнение к аэропорту «Платов», и оно, надо признать, образно в некотором роде противостоит основному объему. Далее речь пойдет об интерьерах так называемых «залов повышенной комфортности», пространств, встроенных в объем главного здания, но получивших авторское оформление благодаря задаче подчеркнуть исключительность атмосферы, предоставляемой привилегированным путешественникам.
Зал повышенной комфортности, 400 м2
Nefa architects
Для этого зала архитекторы выбрали неожиданный ракурс: образно говоря, спустились на уровень земли и взглянули на небо из-под цветов. Из нового масштаба, при котором непонятно – то ли цветы стали большими, то ли люди – маленькими, родился визуальный ряд с со стебельками колонн и лентой лепестков.Найти материал для ленты оказалось непросто. Архитекторы испробовали покраску стекла и негорючую бумагу, затем обратились к металлу – под воздействием температуры он окисляется, после чего на поверхности остаются красивые переливчатые следы. Дальнейшие исследования привели к титану, который после обработки проявил себя ярче всего. Пол покрыт плитами из бетона-терраццо, его вкрапления напоминают разбросанные по земле камушки.
В интерьере много вертикалей, поддерживающих графичность и прозрачность образа: ножки бара и стоек информации, черные кофейные столики, составленные из реек кресла на подиуме. Ориентироваться в пространстве помогают традиционные пиктограммы, а также напольные линии, фрезерованные в бетоне.
Подробнее о проекте >
Бизнес-зал «Солнце», 420 м2
Vox architects
Главный мотив пространства – южное тепло. Стойка ресепшн уподоблена шару заходящего солнца. Он заключен в капсулу из натянутых металлический нитей, «лучей», которые генерируют разные по интенсивности световые рефлексы. Окна в помещении выходят на запад, поэтому на закате арт-объект сливается с настоящим солнцем, которое наполняет зал естественным контрастным светом.«Солнце» окружено криволинейными стенами и перегородками. Пространства плавно перетекают друг в друга и словно река ведут посетителя от одной функциональной зоны к другой, постепенно замедляясь и «разливаясь» в основном зале отдыха. Здесь фактуры напоминают об аграрных богатствах региона: пробка, обработанная стружечная плита, общая теплая цветовая гамма. Все закрытые помещения – санузлы, душ – намеренно холодные, с металлическими фактурами, плавные формы и отражающие поверхности которых символизируют воды Дона. Мебель и логика пространства дают возможность как уединиться, так и провести время в компании.
Подробнее о проекте >
Бизнес-зал «Горизонт», 280 м2
Vox architects
В основе этой концепции – бесконечный степной горизонт. По периметру тянется черный металлический профиль – рассветный горизонт, из-за которого только-только начинает проступать голубое сияние: в профиле спрятан линейный источник света.Ниже линии – утяжеляющая отделка, «земля», верхнюю же часть архитекторы постарались сделать как можно более эфемерной: этому способствует и отсутствие у зала потолка, и прозрачные перегородки, разделяющие его на функциональные зоны. Перегородки разные по высоте, пропорциям и цвету, но все они заключены в тонкие металлические рамы, вторящие графике «горизонта». Прозрачные слои и тонкие линии накладываются друг на друга, над всем главенствует зеркальное синее солнце, которое увеличивает глубину пространства.
Подробнее о проекте >
