Павильон-гостиная «Точка на Карте». Фотография
© Дмитрий Цыренщиков
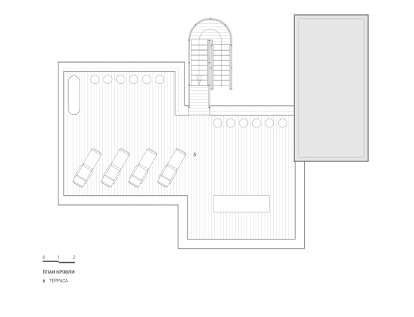
В этом году в «Точке» появился павильон, который взял на себя роль лобби или общественного пространства, где люди могут встретиться и побыть наедине с собой: в трех просторных комнатах располагаются гостиная, бар, библиотека, площадка для мероприятий, уютные уголки для настольных игр и созерцания природы. Плоскую кровлю предлагают использовать как смотровую площадку, место для солнечных ванн и отдыха в открытом летнем баре.
Павильон-гостиная «Точка на Карте». Фотография
© Дмитрий Цыренщиков
Гостиная расположилась у самого берега Ладожского озера, обратив к нему панорамные окна. Структурное остекление растворяет нижнюю часть павильона в окружении, верхняя часть облицована панелями из сосны, которые перекликаются с ритмом деревьев и высокой травы. Архитектура чуть более сложная, чем у предыдущих объектов: композиция здания складывается из трех разных по высоте и размеру модулей, на их строгом фоне лестница со смотровым «балкончиком», ведущая на крышу, кажется ажурным, почти декоративным элементом.
Интерьер под стать тихой красоте северной природы: для отделки выбрали нейтральные поверхности и минималистичные предметы мебели. Акцент смещен на атмосферу, пространство и происходящие в нем события.
Архитекторы из бюро Rhizome определяют павильон как «виллу, архитектурная типология которой всегда была особой формой эскапизма». Но «элитарности и закрытому духу стеклянной виллы XX века противопоставляют идеи общедоступности и равенства».
Павильон участвует в премии ArchDaily и Стрелка, проголосовать за него можно здесь.
