Футляр для наследия

Национальный центр Виктора Астафьева построен по проекту бюро А2 в родном селе писателя Овсянка. Три «оболочки» здания – деревянная, оштукатуренная и стеклянная – связывают его с контекстом, а расположение между двумя главными улицами формирует общественные площади. Несущий каркас, хорошо просматриваемый через витражи, отсылает к образам железной дороги. Здание построено рядом с домом-музеем писателя и напоминает большое «облако», в котором хранится память об Астафьеве и его наследии.

mainImg
Архитектор:
Борис Шаталов
Мастерская:
А2 http://www.proa2.ru/
Проект:
Национальный центр В. П. Астафьева
Россия, Овсянка, ул. Щетинкина, 30

Авторский коллектив:
Руководитель авторского коллектива – Борис Шаталов; архитекторы – Иван Денисов, Любовь Бочарова, Антон Кулаковский, Артем Элли; инженеры – Дмитрий Соломатин, Ольга Тимофеева, Владимир Якубчук; исследователь-консультант – Ольга Успенская

12.2021 — 12.2022 / 2.2023 — 4.2024

Экспозиция: Proektmarketing+1

Заказчик: Краевое государственное бюджетное учреждение культуры «Красноярский краевой краеведческий музей»
Описание предоставлено архитекторами

В 2021 году администрация Красноярского края приняла решение о создании Национального центра на базе существующего мемориального комплекса Виктора Астафьева. Он задумывался как главный объект притяжения Овсянки и включил в себя литературно-этнографическую экспозицию «Во глубине России». Бюро А2 получило право на проектирование после победы в конкурсе.

В год 100-летнего юбилея писателя, 1 мая 2024 года, национальный центр открылся. Это многофункциональное пространство отражает наследие Астафьева в контексте русской культуры и национального самосознания.
Национальный центр В. П. Астафьева
© Алекс Чампакхам / предоставлена А2
Здание расположено между двумя главными продольными осями села – улицами Щетинкина и Набережной, в непосредственной близости от дома-музея писателя и музея повести «Последний поклон». По своему положению в застройке оно формирует два общественных пространства: аванплощадь с юга и арьерплощадь с севера. Эти площади предназначены для выставок, праздников и фестивалей, а также служат основными входными зонами.
Национальный центр В. П. Астафьева
© Алекс Чампакхам / предоставлена А2
Национальный центр В. П. Астафьева
© Алекс Чампакхам / предоставлена А2
Национальный центр В. П. Астафьева
© Алекс Чампакхам / предоставлена А2
Архитектурный образ основан на сочетании трех «оболочек», каждая из которых несет свой смысл. Деревянная, стилизованная под сельскую застройку, вписывает объект в окружающую среду. Каменная, оштукатуренная, символизирует подклет русской избы и большую печь, служит основанием здания. Стеклянная – образ Енисея: она объединяет все элементы в единый силуэт, растворяет здание в панорамах села и визуально расширяет прилегающие пространства, приглашая войти внутрь и прикоснуться к истории жизни и творчества писателя.
Национальный центр В. П. Астафьева. Концепция
© А2
Национальный центр В. П. Астафьева
© Алекс Чампакхам / предоставлена А2
Национальный центр В. П. Астафьева
© Алекс Чампакхам / предоставлена А2
Национальный центр В. П. Астафьева
© Алекс Чампакхам / предоставлена А2
Национальный центр В. П. Астафьева
© Алекс Чампакхам / предоставлена А2
Национальный центр В. П. Астафьева
© Алекс Чампакхам / предоставлена А2
Через стеклянные витражи вестибюля просматривается несущий каркас здания, выполненный из нарочито грубых стальных и бетонных элементов. Он отсылает одновременно к теплушкам времен Великой Отечественной войны и к образу первого железнодорожного моста через Енисей.
Национальный центр В. П. Астафьева
© Алекс Чампакхам / предоставлена А2
Национальный центр В. П. Астафьева
© Алекс Чампакхам / предоставлена А2
В информационной зоне размещен большой портрет Астафьева с подсветкой, который «выводит» его образ наружу, в пространство села. А в самой высокой точке здания зажигается «Астафьевский маяк» – символический световой ориентир, призванный стать визуальным и нравственным символом для жителей и гостей Овсянки.
 
Национальный центр В. П. Астафьева
© Алекс Чампакхам / предоставлена А2
Национальный центр В. П. Астафьева
© Алекс Чампакхам / предоставлена А2
Национальный центр В. П. Астафьева
© Алекс Чампакхам / предоставлена А2
Национальный центр В. П. Астафьева
© Алекс Чампакхам / предоставлена А2
  • zooming
    1 / 5
    Национальный центр В. П. Астафьева. Разрез 1-1
    © А2
  • zooming
    2 / 5
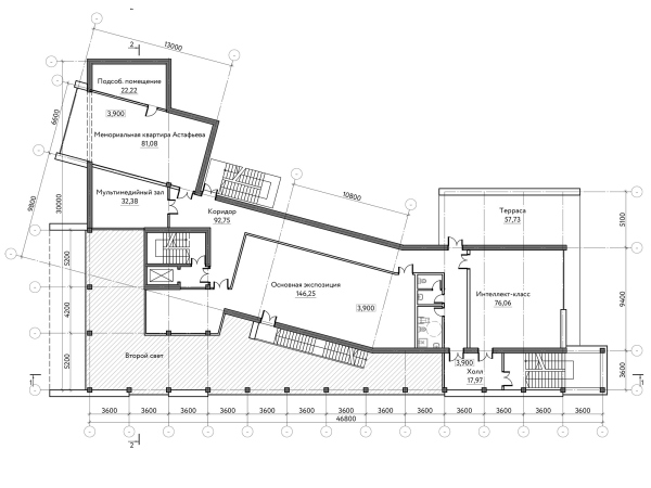
    Национальный центр В. П. Астафьева. План 1 этажа
    © А2
  • zooming
    3 / 5
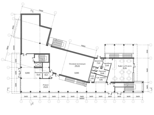
    Национальный центр В. П. Астафьева. План на отметке +3.9
    © А2
  • zooming
    4 / 5
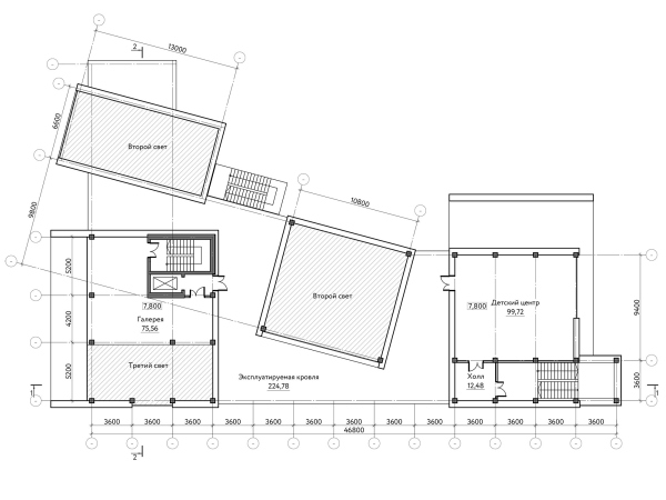
    Национальный центр В. П. Астафьева. План на отметке +7.8
    © А2
  • zooming
    5 / 5
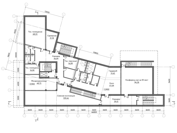
    Национальный центр В. П. Астафьева. План подземного этажа на отметке -3.9
    © А2
Архитектор:
Борис Шаталов
Мастерская:
А2 http://www.proa2.ru/
Проект:
Национальный центр В. П. Астафьева
Россия, Овсянка, ул. Щетинкина, 30

Авторский коллектив:
Руководитель авторского коллектива – Борис Шаталов; архитекторы – Иван Денисов, Любовь Бочарова, Антон Кулаковский, Артем Элли; инженеры – Дмитрий Соломатин, Ольга Тимофеева, Владимир Якубчук; исследователь-консультант – Ольга Успенская

12.2021 — 12.2022 / 2.2023 — 4.2024

Экспозиция: Proektmarketing+1

Заказчик: Краевое государственное бюджетное учреждение культуры «Красноярский краевой краеведческий музей»

02 Октября 2025

Похожие статьи
Всматриваясь вдаль
Гордость за свой город и стремление передать его genius loci во всех своих проектах – вот настоящее кредо каждого питерского архитектора. И бюро ZIMA уверенно следует негласному принципу, без скидок на размеры и функцию, создавая интерьер небольшого магазина модной одежды LESEL так же, как если бы они делали парадную залу.
Школа со слониками
Девелопер «МетроПолис» выступил в несвойственной роли проектировщика при разработке для постконструктивистского детского сада со слониками в московском Щукино концепции реставрации и приспособления под современную школу. Историческое здание дополнит протяженный объем из легковозводимых деревоклееных конструкций. «Пристройку-забор»украсят панно с изображением памятников 1920-1930-х и зеленая кровля. Большим навесом, предназначенным для ожидающих родителей, смогут воспользоваться и посетители городского сквера «Юность».
Гипербола в кирпиче
Апарт-комплекс «Маки» – третья очередь комплекса «Инские холмы» в Новосибирске. Проектная артель 2ПБ создала в ней акцент за счет контраста материалов и форм: в кирпичном объеме, тяготеющем к кубу, сделаны два округлых стеклянных «выреза», в которых отражается город. Специально для проекта разработан кирпич особого цвета и формовки. Рельефная кладка в сочетании с фибробетоном, моллированным стеклом и гранитом делают архитектуру «осязаемой». Также пространство на уровне улицы усложнено рельефом.
Теплый берег
Проектная группа 8 и Институт развития городов и сел Башкортостана во взаимодействии с жителями района на окраине Уфы благоустроили территорию вокруг пруда. Зонировние учитывает интересы рыбаков, любителей наблюдать за птицами, владельцев собак и, конечно, детей и спортсменов. Малые архитектурные формы раскрывают природный потенциал территории, одновременно делая ее более безопасной.
Приближение таинства
Бюро Ивана Землякова ziarch спроектировало для Новой Москвы небольшой храм для венчаний и крещений, который также включает приходское кафе в духе «Антипы». Автор ясно разделяет мирскую и храмовую части, опираясь на аналоги из архангельских деревень. Постройка дополнит основной храм, перекликаясь с ним схожими материалами в отделке.
Жизнерадостный декаданс
Ресторан «Машенька», созданный бюро ARCHPOINT, представляет еще один взгляд на интерьерный дизайн, вдохновленный русскими традициями и народными промыслами. Правда, в нем не так много прямых цитат, а больше вольных фантазий в духе «Алисы в стране чудес», благодаря чему гости могут развлечься разгадыванием визуальных шарад.
Легкая степень брутализма
Особенные люди собираются в особенных местах. Например, в кофейне St.Riders Coffee, спроектированной бюро Marat Mazur interior design специально для сообщества райдеров и любителей экстрима, с использованием материалов и деталей, достаточно брутальных, чтобы будущие посетители почувствовали себя в своей стихии.
Текстильный подход
Бюро 5:00 am создало для фабрики «Крестецкая строчка» и бренда Alexandra Georgieva московский шоу-рум, продолжив эксперименты со стилизацией под классические жилые интерьеры XIX века, в которых благодаря переосмыслению культуры быта и прикладной эстетики актуальные тренды сочетаются с народными традициями, атмосферностью и тактильностью.
Еловый храм
Бюро Ивана Землякова ziarch для живописного участка на берегу Волги недалеко от Твери предложило храм, которые наследует традициям местного деревянного зодчества, но и развивает их. Четверик поднят на бетонный подклет, вытянутая восьмискатная щипцовая кровля покрыта лемехом, а украшением фасада служат маленькие оконца. Сочетание материалов, форм и приемов роднит храм с окружающим лесным пейзажем.
Сезонные настроения
Бюро «Уголок» разработало интерьер одного из филиалов ресторана «М2 Органик клуб», специализирующегося на экологически чистой продукции и органической кулинарии, проиллюстрировав при помощи дизайна каждое из четырех времен года.
Фахверк в формате барнхауса
В проекте загородного дома Frame Wood от AGE architects тектоника мощного фахверкового каркаса освобождена от стереотипов и заключена в лаконичный силуэт барнхауса. Конструкция по-прежнему – главное средство выразительности, но она становится более вариативной, а дом приобретает не характерную для фахверка легкость.
Цветы жизни
Архитектурная мастерская «Константин Щербин и партнеры» разработала мастер-план кампуса Университета имени Лесгафта, который, вероятно, расположится во Всеволожске. Планировочная структура с четким ядром и системой осей напоминает цветочную поляну, в центре которой – учебные корпуса, а ближе к периферии – жилой городок, спортивные объекты и медицинский кластер. В мастер-план заложен зеленый и водный каркас, а также транспортная схема, предполагающая приоритет пешеходов и велосипедистов.
«Призрак» в разноцветном доспехе
Новый формат ресторанов – «призрачная кухня», появившийся не так давно на волне все возрастающей с ковидных времен привычки заказывать ресторанную еду на дом, требовал не менее нового и эффектного дизайна. Именно такое неформальное и жизнерадостное дизайнерское лицо разработало бюро VEA Kollektiv для бренда Why Not Sushi.
Корочка льда
В рамках конкурса «Неочевидное. Арктика» петербургское бюро GRAD предложило для города-спутника Мурманска социальный хаб с видами на Кольский залив. Здание состоит из нескольких модулей, которые группируются вокруг атриума и соединяются мостами. У каждого модуля своя функциональная программа, что на фасаде проявлено различными типами облицовки из перфорированных металлических панелей. В проекте используются prefab-технологии
В ритме Неглинной
Citizenstudio бережно осовременили недостроенный трехэтажный корпус на Неглинной, принадлежащий МФЮА. Ограниченные логикой существующего объема, архитекторы, тем не менее, смогли реализовать достаточно тонкую игру со стилевыми реминисценциями самых разных исторических периодов и максимально деликатно вписаться в контекст центра Москвы.
Искушающая нежность
Бюро «Синица» умеет совершать большие и маленькие чудеса, создавая для магазинов не просто интерьеры, а целую философию. Магия дизайна привносит в пространство новую атмосферу и эстетику, а брендам – дает ключ к пониманию своей миссии.
Между сосен
Публикуем новый кампус Физмат школы Новосибирского государственного университета (НГУ), построенный по проекту AI Studio в Академгородке. Это весьма удачная попытка вписаться в глобальный контекст современного образования, перенеся центр тяжести с фасадов на качество обучающей среды.
Ячейка и кривуля
Детский сад, построенный по проекту BuroMoscow в столичном ЖК Грин парк, удачно балансирует между языком модернизма и эстетикой сделанного цветными карандашами рисунка. Кубический объем с регулярной фасадной сеткой отсылает к сортеру – развивающей игрушке, помогающей в числе прочего почувствовать форму. Роль объемных фигурок для сортировки играют залы, которые выбиваются из общей матрицы и делают элегантные фасады чуть менее серьезными. Яркий цвет этих залов сообщает нежный рефлекс помещениям холлов и групповых комнат, преимущественно белых. Среди других находок: отсутствие забора, встроенные в фасад скамейки и кадки для цветов, деревянные створки на панорамных окнах.
Зов традиции
Проект современной юрты в Ботаническом саду Алматы казахстанское бюро Cogarts готовило, что называется, для души. Однако в процессе работы подвернулся подходящий конкурс, который способствовал кристаллизации идей. Юрта стала местом для проведения небольших культурных событий и принесла бюро несколько архитектурных премий.
Путь к истокам
Бюро SEEU подошло к проекту реконструкции популярного в Калининграде ресторана «Соль» как к исследованию истории края и поиску в нем ключей к построению гармонии между европейской и азиатской дизайнерской традицией и философией.
Скорлупа под антаблементом
Архитектор Егор Рыбин спроектировал ТРЦ для коттеджного поселка «Боярское» в 30 км от Нижнего Новгорода, прочитав его как парковый павильон. Кирпичные экседры считываются как фрагменты ротонды, а прорастающее сквозь центральную арку дерево символично напоминает о главенстве пейзажа.
Против ветра
Общественно-деловой центр «Графит» построен по проекту бюро FUTURA-ARCHITECTS в новом жилом районе, который развивается за южной границей Санкт-Петербурга, недалеко от Финского залива. Авторы отрефлексировали близость холодного Балтийского моря, придав зданию динамику преодоления и скругленные, словно от ветра и воды, края.
Игра противоположностей
На месте снесенной пожарной части в Ижевске построен жилой комплекс «Монблан». Авторы проекта из бюро «АП-Групп» собрали композицию из двух объемов, соединив классическую сетку одного с деконструктивистской свободой ломаных форм другого.
Вне стресса
DA bureau продолжает ломать стереотипы и задавать новые тренды. В новом медицинском центре, практикующем биохакинг, они материализовали дизайн, который раньше, если где-то и встречался, то в мультфильмах о воображаемых мирах, светлых и настолько умиротворяющих, что не понятно, где проходит граница между сном и анимированной реальностью.
Вторая жизнь гидроузла
Департамент технического заказчика предложил превратить монументальные руины советского гидроузла в Подольске в кластер экстремальных развлечений. Бетонные скелеты плотин в нем становятся объектами скалолазания, страйкбольными декорациями и скейтпарком.
Форма радости
Архитекторы бюро MARAT MAZUR interior design получили необычный заказ – разработать дизайн киоска для продажи мороженого My Gelato в одном из торговых центров, который был бы эффектным, образным, удобным и, самое главное, необычным. И им это удалось.
Орел или решка
Бюро .dpt создало интерьер бара Nightcall в компактном пространстве флигеля усадьбы Закревского-Савина, построенного в XVIII веке. Но вместо исторических аллюзий они попытались преодолеть законы геометрии и ухитрились совместить в одном объеме два очень разных по дизайну пространства: одно спокойное и солидное, второе – ироничное и богемное.
От пещеры до звезды
Концепция бюро Ad Hoc победила в закрытом конкурсе на культурно-рекреационный комплекс для норвежского острова. Ненавязчивыми архитектурными решениями авторы проявили силу места: водопад стал частью входной группы, естественная терраса – платформой для смотровой площадки, закат и звездное небо – украшением интерьеров.
Горный страж
В рамках международного конкурса Артем Агекян разработал проект автономного горного убежища, которое предполагается разместить на высоте около 3000 метров в итальянских Альпах. Форма бивуака учитывает розу ветров и опасность камнепада, градиент цвета делает его одновременно заметным и энергоэффективным.
Карельский разлом
Отель в Карелии, спроектированный архитектурным бюро Chado, вырастает из ландшафта в образе гигантского валуна, расколотого надвое. В центре этой композиции рождается драматичное общественное пространство, напоминающее древнее убежище. Материалом, связывающим рукотворное с природным, становится монолитный бетон, приближенный по оттенку к местным породам.
Технологии и материалы
Фальцевая кровля Rooflong как инженерная система
Современная архитектура предъявляет к кровельным системам значительно более высокие требования, чем это было еще несколько лет назад. Речь идет не только о защите здания от внешних воздействий, но и о сложной геометрии, долговечности, интеграции инженерных элементов и точной реализации архитектурной идеи. Так, фальцевая кровля все чаще рассматривается не как отдельный материал, а как часть комплексной оболочки здания.
Эффективные фасады из полимеров
К современным фасадам предъявляются множество требований: они должны быть одновременно легкими и прочными, гибкими и удобными в монтаже, эстетичными и пригодными для повторного использования. Полимерные композитные системы успешно справляются со всеми этими задачами, выходя далеко за рамки традиционной светотехники и стандартных форм. Эффективность выражается в снижении нагрузки на каркас, в простоте монтажа, в возможности создавать сложнейшие скульптурные оболочки. Разберем, как это работает на практике.
По второму кругу
​В Осаке разбирают «Большое кольцо» – гигантскую деревянную конструкцию, построенную по проекту Со Фудзимото для ЭКСПО-2025. Когда демонтаж завершится, древесину от «Кольца» передадут новым владельцам. Стройматериалы пойдут на восстановление домов, пострадавших от стихийных бедствий, и на строительство новых сооружений.
Архитектура потоков: узкие места в проектах логистических...
Проектирование логистических объектов – это не столько про объём, сколько про систему управляемых переходов между зонами. Значительное время работы техники теряется на ожидания, причём основные потери концентрируются не в стеллажном хранении, а в проёмах, стыках температурных контуров и зонах пересечения потоков. Разбираемся, почему реальная производительность склада определяется не характеристиками автоматизации, а временем открытия проёма, и как этот параметр закладывается в проект.
Стекло AIG в проекте Центрального телеграфа
В отреставрированном Центральном телеграфе на Тверской использованы три типа остекления AIG: для исторического фасада, кровли атриума и внутренних ограждений. Основные требования – нейтральность цветопередачи, солнцезащита без затемнения и сохранение визуальной легкости исторического объема.
Три цвета MODFORMAT на фасаде
Жилой комплекс «ЦЕНТР» в Бресте – первый в портфеле «Полесьежилстрой» проект, где фасады полностью выполнены из клинкера удлиненного формата. Квартал из пяти корпусов распродан почти на 100%, строительство продолжается. Разбираемся, что именно сработало: архитектурное решение, выбор материала или их удачное сочетание.
От модерниста – экологисту
Швейцарский архитектор Барбара Бузер получила премию Джейн Дрю 2026 года. Ежегодную премию представительницам слабого пола вручает журнал Architects′ Journal – за профессиональные достижения и «укрепление женского авторитета в профессии».
Зеленые полимеры: эволюция фасадной теплоизоляции
Современная «зеленая архитектура» – это не только про озеленение крыш и солнечные батареи. В первую очередь, это про технологии, снижающие углеродный след здания. Ключевую роль здесь играют теплоизоляционные материалы (ТИМ), позволяющие радикально сократить потребление энергии. Пенополистирол, PIR и другие материалы, которые принято называть «зелеными полимерами» за их вклад в энергоэффективность, сегодня превратились в стандарт индустрии.
Пищевые производства: логистика и температура
Будучи одними из самых сложных объектов с точки зрения внутренней организации, пищевые производства требуют не просто размещения холодильных камер и цехов, а создания системы «климатических островов» внутри здания. Главная сложность возникает в зонах проемов в условиях интенсивного движения техники и персонала. Разбираем инженерные нюансы подбора оборудования, позволяющие обеспечить герметичность без потери энергоэффективности и удобства логистики.
Тепло и форма
Энергоэффективность сегодня – не враг архитектурной выразительности. Полимерные утеплители – ЭППС, ПИР, ППУ – берут на себя нагрузку, усадку и влагу, освобождая фасад от массивных наслоений. Какой материал выбрать для фундамента, фасада и кровли, чтобы сохранить и тепло, и чистоту линий – разбираем в обзоре.
Угольная пыль вместо цемента
Ученые Пермского Политеха и УрФУ создали экологичный бетон с повышенной водостойкостью. В составе материала – тонкомолотые горелые породы, отравляющие экологию угледобывающих регионов.
Материал с характером
За последние годы продажи металлических фасадных кассет в России выросли почти на 40 % – в сегментах бизнес и премиум всё активнее спрос на материалы, которые дают архитектору свободу работать с выразительной формой, не в ущерб безопасности и сроку службы фасада. Металлокассеты стали одним из главных ответов на этот запрос. Смотрим актуальные приёмы их применения на реализованных объектах от компании «Алкотек».
Архитектура воздухообмена
В зданиях большого объема – от спортивных комплексов до производственных корпусов – формирование комфортного микроклимата связано с особыми инженерными задачами. Одной из ключевых становится организация циркуляции воздуха, позволяющая устранить температурное расслоение и обеспечить равномерные условия по всей высоте пространства.
Инновационное остекление для идеального микроклимата:...
В современной архитектуре стеклопакет приобрел множество полезных функций, став полноценным инструментом управления микроклиматом здания. Так, энергосберегающие стеклопакеты эффективно удерживают тепло в помещении, солнцезащитные – предотвращают перегрев, а электрообогреваемые сами становятся источником тепла. Разбираемся в многообразии современных стеклоизделий на примере продукции Российской Стекольной Компании.
Опоры из грибницы
В США придумали новую альтернатива бетону – живой материал на основе мицелия и бактерий. Такой материал способен самовосстанавливаться и годится для применения в конструктивных компонентах зданий.
«Сухой» монтаж: КНАУФ в BelExpo
Минский BelExpo возвели на год раньше плана. Ключевую роль сыграли технологии КНАУФ: в основе конструкций – каркасно-обшивное перекрытие, собранное как конструктор и перекрывающее 6 метров без тяжелой техники, а также системы «потолок под потолком» с плитами КНАУФ-Акустика.
Полы, выращенные бактериями
Нидерландско-американская исследовательская команда представила напольную плитку на основе «биоцемента». Привычный цемент, выполняющий роль вяжущего вещества, авторы заменили на выработанный бактериями известняк. При производстве плитки Mimmik в среду попадает на 60% меньше выбросов – по сравнению с традиционной.
Живой металл
Анодированный алюминий занимает все более заметное место в архитектурных проектах – от жилых комплексов до аэропортов. Его выбирают за выразительный внешний вид и стабильные эксплуатационные характеристики. В России с архитектурным анодированием системно работает завод полного цикла «25 микрон». В статье на примере его технологий и решений разберем, как устроен процесс анодирования и какие свойства делают этот материал востребованным.
Обновленный шоу-рум LUCIDO: рабочая среда для архитектора
Бутик Итальянской Плитки LUCIDO, расположенный в особняке на Пречистенке, завершил реконструкцию. Задача обновления – усилить функциональность пространства как инструмента для профессиональной работы с материалом. В новой экспозиции сделан акцент на навигацию, сценарии освещения и демонстрацию крупных форматов в условиях, приближенных к реальному интерьеру.
Стальное зеркало терруара
Архитектурная мастерская «АКАНТ» превратила здание винодельни в Краснодарском крае в оптическую иллюзию при помощи полированной нержавеющей стали «СуперЗеркало» от компании «Орнамита». Материал позволяет играть со светом и восприятием объемов, снижать теплопоглощение и создавать объекты-магниты, привлекающие яркой образностью, оставаясь при этом практичным и ремонтопригодным решением.
Сейчас на главной
Переплетение перспектив
В середине апреля в Центральном доме архитектора Москвы прошел очередной Всероссийский архитектурный молодежный фестиваль «Перспектива 2026». Темой этого года стало «Переплетение». Конкурсная программа включала смотр-конкурс среди студентов и молодых архитекторов, а также конкурс на разработку архитектурной концепции многофункционального центра «Город Талантов» в Кемерово. Показываем победителей.
Блоки и коробки
Дом по проекту Studioninedots в новом районе Амстердама раскладывает жизнь семьи с двумя детьми по «коробочкам».
Звенья одной цепи
Бюро ulab разработало проект жилого комплекса, для которого выделен участок на границе с лесным массивом и экотропой «Уфимское ожерелье». Чтобы придать застройке индивидуальности, архитекторы использовали знакомые всем горожанам образы: башни силуэтом и материалом облицовки соотносятся со скальными массивами, а урбан-виллы – с яркими деревянными домиками. Не оставлено без внимания и соседство с советским кинотеатром «Салют» – доминанта комплекса подчеркивает его осевое расположение и использует паттерн фасада как основу для формообразования.
Стоечно-балочное гостеприимство
Отель Author’s Room по проекту B.L.U.E. Architecture Studio в агломерации Гуанчжоу соединяет для постояльцев отдых на природе с флером интеллектуальности от видного китайского издательства.
DELO’вой подход
Компания DELO успешно ведет дела во многих архитектурно-дизайнерских областях. Для того чтобы наилучшим образом представить все свои DELO’вые ипостаси, она создала специальное пространство, в котором торговая, маркетинговая и рабочая функции объединены в единый, очень органичный и привлекательный формат.
Тянись, нить
Как вырастить постиндустриальную городскую ткань из места с богатой историей? Примером может служить реставрация производственного корпуса шерстоткацкой фабрики в Москве. Здание удалось сохранить среди новых жилых домов. Сейчас его приспосабливают – частью под креативные офисы, частью под магазины и рестораны.
IAD Awards 2026
В этом году среди призеров премии International Architecture & Design Awards целая россыпь российских проектов, преимущественно от московских бюро. Рассказываем подробнее об обладателях платиновых наград и показываем всех финалистов из номинации «Архитектура».
Иван Кычкин: «Наш подход строится на балансе между...
За последнее время на архитектурном горизонте России все чаще появляются новые и интересные бюро из Республики Саха. Большинство из них активно участвуют в программах благоустройства, но не ограничиваются ими, развивая новые направления на стыке архитектуры, дизайна и арт-практик. Одним из таких бюро является мультидисциплинарная студия GRD:, о специфике которой мы поговорили с ее руководителем Иваном Кычкиным.
Северный ветер
Региональные бренды все чаще обзаводятся своими шоу-румами в лучших московских торговых центрах, и это дает возможность не только познакомиться с новыми именами в фэшн-дизайне, но и увидеть яркие произведения интерьерного дизайна от успешных бюро, достигших успеха в своих родных городах и уверенно завоевывающих столичный рынок.
Волна и камень: обзор проектов 20-26 апреля
Новые проекты прошедшей недели – все они, к слову, московские – позволяют говорить об интересе к бионическим формам. Пока что в достаточно простом их проявлении: вас ждем много волнообразных фасадов, изогнутых контуров, а также стилизованные «воронки» бутонов и даже прямые «цитаты» в виде огромных драгоценных камней. Часто подобные приемы кажутся беспочвенно заимствованными, редко – устойчивыми и экологичными.
В ожидании китайской Алисы
Бюро PIG DESIGN по заказу компании NEOBIO, развивающей в Китае сеть оригинальных игровых центров, создало магическое пространство, насыщенное таким огромным количеством удивительных с визуальной и функциональной точки зрения открытий, что его можно использовать в качестве методического пособия для подготовки архитекторов и дизайнеров.
Фасады «металлик»
Небоскреб Wasl по проекту архитекторов UNS и конструкторов Werner Sobek получил фасады из керамических элементов, не только выделяющие его в ландшафте Дубая, но и помогающие затенять и охлаждать его.
Высший уровень
На верхних этажах самого высокого небоскреба Москва-Сити создано уникальное трехуровневое деловое пространство «F-375». Проект разработан студией VOX Architects, не только создавшей авторский дизайн, но и вместе с командой инженеров и конструкторов сумевшей разрешить огромное количество сложнейших задач, чтобы обеспечить беспрецедентный уровень комфорта и технической оснащенности.
Восточный подход для Запада
В Олимпийском парке королевы Елизаветы II в Восточном Лондоне открыт филиал Музея Виктории и Альберта – V&A East. Реализация его здания по проекту дублинцев O’Donnell+Tuomey заняла более 10 лет.
Белые террасы в зеленом предгорье
Бюро «Архивиста» спроектировало гостиничный комплекс для участка на Черноморском побережье между Сочи и Адлером. Архитектурное решение предусматривает интеграцию в сложный рельеф, сохранение природного каркаса и применение инженерных решений, обеспечивающих устойчивость и сейсмобезопасность.
Конопляный фасад
Жилой комплекс на 81 квартиру в Нанте по проекту бюро Ramdam и Palast сочетает конструкцию из инженерного дерева с фасадами из конопляного бетона.
Малыми средствами
Главной архитектурной наградой ЕС, Премией Мис ван дер Роэ, отмечена функциональная «деконструкция» Дворца выставок в бельгийском Шарлеруа, а как работа начинающих архитекторов – спартанские временные помещения для Национального театра драмы в Любляне.
Архивные сокровища
Издательство «Кучково Поле Музеон» продолжило свою серию книг о метро новым сборником «Метро двух столиц: Москва – Будапешт: фотоальбом», в котором собрана богатейшая коллекция архивных и фотоматериалов, а также подробный рассказ о специфике двух очень непохожих метрополитенов: московского и будапештского.
Градостроительство в тисках нормирования?
В рамках петербургского форума «Архитектон» бюро «Эмпейт» и Институт пространственного планирования Республики Татарстан организовали день градостроительства – серию из трех дискуссий. Один из круглых столов был посвящен взаимовлиянию градостроительной теории и нормирования. Принято считать, что регламенты сдерживают развитие городов, препятствует появлению ярких проектов. Эксперты из разных городов и институций нарисовали объемную картину: нормы с трудом, но преодолеваются; бывает, что их гибкость приводит к потере идентичности; зачастую важна воля отдельной личности; эксперимент, выходящий за рамки градостроительного нормирования, все же необходим. Собрали для вас тезисы обсуждения.
В юном месяце апреле. Шанс многообразия
Наш очередной обзор запоздал дней на 10. А что вы хотите, такие перестановки в Москве, хочется только крутить головой и думать, что будет дальше – а также, расскажут ли нам, что будет дальше... В состоянии неполной информированности собираем крохи: проекты заявленные, утвержденные или просто всплывшие в информационном контексте. Получается разнообразно, хочется сказать даже – пестро. Лучшее, и хорошее, и забытое. Махровая эклектика балансирует с пышными fleurs de bon эмотеха на одних качелях.
Всматриваясь вдаль
Гордость за свой город и стремление передать его genius loci во всех своих проектах – вот настоящее кредо каждого питерского архитектора. И бюро ZIMA уверенно следует негласному принципу, без скидок на размеры и функцию, создавая интерьер небольшого магазина модной одежды LESEL так же, как если бы они делали парадную залу.
МАРШ: Шпицберген studio
Проектная студия «Шпицберген studio» 4 курса бакалавриата в 2024/25 учебном году была посвящена исследованию и разработке концепций объектов культурного наследия на архипелаге Шпицберген. Студенты работали с реальным брифом от треста Арктикуголь.
«Лотус» над пустыней
В Бенгази, втором по величине городе Ливии, российско-сербское бюро Padhod спроектировало многофункциональный центр «Лотус». Биоморфная архитектура здесь работает и как инженерная система – защищает от пыли, создает тень – и как новый урбанистический символ, знаменующий возвращение города к мирной жизни.
Школа со слониками
Девелопер «МетроПолис» выступил в несвойственной роли проектировщика при разработке для постконструктивистского детского сада со слониками в московском Щукино концепции реставрации и приспособления под современную школу. Историческое здание дополнит протяженный объем из легковозводимых деревоклееных конструкций. «Пристройку-забор»украсят панно с изображением памятников 1920-1930-х и зеленая кровля. Большим навесом, предназначенным для ожидающих родителей, смогут воспользоваться и посетители городского сквера «Юность».
Балконы в небо
Компактная жилая башня Cielo в индийском Нагпуре напоминает колос: необычную форму создают придуманные Sanjay Puri Architects двухэтажные балконы.
Гипербола в кирпиче
Апарт-комплекс «Маки» – третья очередь комплекса «Инские холмы» в Новосибирске. Проектная артель 2ПБ создала в ней акцент за счет контраста материалов и форм: в кирпичном объеме, тяготеющем к кубу, сделаны два округлых стеклянных «выреза», в которых отражается город. Специально для проекта разработан кирпич особого цвета и формовки. Рельефная кладка в сочетании с фибробетоном, моллированным стеклом и гранитом делают архитектуру «осязаемой». Также пространство на уровне улицы усложнено рельефом.
Офис без границ
Офисное здание Delta под Барселоной задумано авторами его проекта PichArchitects как проницаемое, адаптивное и таким образом готовое к будущим переменам.
Маяк славы
Градостроительный совет Петербурга рассмотрел эскизный проект 40-метровой стелы, которую бюро Intercolumnium предлагает разместить в центре мемориального комплекса, посвященного Ленинградской битве. Памятный знак состоит из шести «лепестков», за которыми прячется световой столп. Эксперты высказали ряд рекомендаций и констатировали недостаточное количество материалов, чтобы судить о реализуемости подобного объекта.
Теплый берег
Проектная группа 8 и Институт развития городов и сел Башкортостана во взаимодействии с жителями района на окраине Уфы благоустроили территорию вокруг пруда. Зонировние учитывает интересы рыбаков, любителей наблюдать за птицами, владельцев собак и, конечно, детей и спортсменов. Малые архитектурные формы раскрывают природный потенциал территории, одновременно делая ее более безопасной.