Национальный центр В. П. Астафьева
© Алекс Чампакхам / предоставлена А2
Национальный центр В. П. Астафьева
информация:
-
статус
реализовано -
даты
12.2021 — 12.2022 / 02.2023 — 04.2024 -
место
Овсянка ул. Щетинкина, 30 -
координаты
55.960895, 92.572775 -
функция
Культурный / Музей -
теги
send.project -
общая площадь
2 519 м2 -
высота
15 -
этажность
3 -
строительный объем
12 365 м3
Борис Шаталов
Boris Shatalov / РоссияА2
Россияавторский коллектив
партнеры, заказчики, смежники
Заказчик: Краевое государственное бюджетное учреждение культуры «Красноярский краевой краеведческий музей»
награды:
- Золотой диплом смотр-конкурса лучшие архитектурные произведения 2022-2024 гг. ПОСТРОЙКИ, номинация «Объекты социального и культурного назначения» на XXIV Межрегиональном архитектурном фестивале «Зодчество в Сибири» в 2024г.
Дипломом Союза архитекторов России смотр-конкурса архитектурные произведения 2022-2024 гг. раздел ПОСТРОЙКИ, номинация «Объекты социального и культурного назначения» на XXXII Международного архитектурного фестиваля «Зодчество» в 2024 г.
Серебряный диплом в номинации «Общественные здания» раздел ПОСТРОЙКИ на XXVIII Национальном независимом архитектурном рейтинге «Золотая Капитель» в 2024 г.
Специальный диплом оргкомитета на XXVIII Национальном независимом архитектурном рейтинге «Золотая Капитель» в 2024 г.
Золотой диплом смотр-конкурса лучший объект сохранения и развития раздел ПРОЕКТ в номинации «Регенерация исторической застройки и объекты ландшафтной архитектуры» на V Всероссийском архитектурном фестивале «Архитектурное наследие» в 2022 г.
Национальный центр В. П. Астафьева
© Алекс Чампакхам / предоставлена А2
Архи.ру об этом объекте:
Футляр для наследия
Национальный центр Виктора Астафьева построен по проекту бюро А2 в родном селе писателя Овсянка. Три «оболочки» здания – деревянная, оштукатуренная и стеклянная – связывают его с контекстом, а расположение между двумя главными улицами формирует общественные площади. Несущий каркас, хорошо просматриваемый через витражи, отсылает к образам железной дороги. Здание построено рядом с домом-музеем писателя и напоминает большое «облако», в котором хранится память об Астафьеве и его наследии.
Описание предоставлено архитекторами В 2021 году администрация Красноярского края приняла решение о создании Национального центра на базе существующего мемориального комплекса Виктора Астафьева. Он задумывался как главный объект притяжения Овсянки и... читать дальшеНациональный центр В. П. Астафьева
© Алекс Чампакхам / предоставлена А2
история проекта:
Бюро А2 получило право на проектирование национального центра после победы в заказном архитектурном экспресс-конкурсе, проведённом осенью 2021 года.
описание:
В 2021 году администрация Красноярского края приняла решение о создании Национального центра на базе существующего мемориального комплекса Виктора Петровича Астафьева. Он задумывался как главный объект притяжения Овсянки и включил в себя литературно-этнографическую экспозицию «Во глубине России».
Национальный центр В. П. Астафьева открылся 12 апреля 2024 года, в год 100-летнего юбилея писателя. Это уникальное многофункциональное пространство, отражающее наследие Астафьева в контексте русской культуры и национального самосознания.
Здание расположено между двумя главными продольными осями села – улицами Щетинкина и Набережной, в непосредственной близости от дома-музея писателя и музея повести «Последний поклон». По своему положению в застройке оно формирует два общественных пространства: аванплощадь с юга и арьерплощадь с севера. Эти площади предназначены для выставок, праздников и фестивалей, а также служат основными входными зонами.
Архитектурный образ центра основан на сочетании трёх «оболочек», каждая из которых несёт свой смысл. Деревянная, стилизованная под сельскую застройку (избы, клети), вписывает объект в окружающую среду. Каменная, оштукатуренная, символизирует подклет русской избы и большую печь, служит основанием здания. Стеклянная – образ Енисея: она объединяет все элементы в единый силуэт, растворяет здание в панорамах села и визуально расширяет прилегающие пространства, приглашая войти внутрь и прикоснуться к истории жизни и творчества писателя.
Через стеклянные витражи вестибюля просматривается несущий каркас здания, выполненный из нарочито грубых стальных и бетонных элементов. Он отсылает одновременно к теплушкам времён Великой Отечественной войны и к образу первого железнодорожного моста через Енисей.
В информационной зоне размещён большой портрет Астафьева с подсветкой, который «выводит» его образ наружу, в пространство села. А в самой высокой точке здания зажигается «Астафьевский маяк» – символический световой ориентир, призванный стать визуальным и нравственным символом для жителей и гостей Овсянки.
Национальный центр В. П. Астафьева
© Алекс Чампакхам / предоставлена А2
Национальный центр В. П. Астафьева
© Алекс Чампакхам / предоставлена А2
Национальный центр В. П. Астафьева
© Алекс Чампакхам / предоставлена А2
Национальный центр В. П. Астафьева
© Алекс Чампакхам / предоставлена А2
Национальный центр В. П. Астафьева
© Алекс Чампакхам / предоставлена А2
Национальный центр В. П. Астафьева
© Алекс Чампакхам / предоставлена А2
Национальный центр В. П. Астафьева
© Алекс Чампакхам / предоставлена А2
Национальный центр В. П. Астафьева
© Алекс Чампакхам / предоставлена А2
Национальный центр В. П. Астафьева
© Алекс Чампакхам / предоставлена А2
Национальный центр В. П. Астафьева
© Алекс Чампакхам / предоставлена А2
Национальный центр В. П. Астафьева
© Алекс Чампакхам / предоставлена А2
Национальный центр В. П. Астафьева
© Алекс Чампакхам / предоставлена А2
Национальный центр В. П. Астафьева
© Алекс Чампакхам / предоставлена А2
Национальный центр В. П. Астафьева
© Алекс Чампакхам / предоставлена А2
Национальный центр В. П. Астафьева
© Алекс Чампакхам / предоставлена А2
Национальный центр В. П. Астафьева
© Алекс Чампакхам / предоставлена А2
Национальный центр В. П. Астафьева
© Алекс Чампакхам / предоставлена А2
Национальный центр В. П. Астафьева
© А2
Национальный центр В. П. Астафьева. Коллаж
© А2
Национальный центр В. П. Астафьева. Концепция
© А2
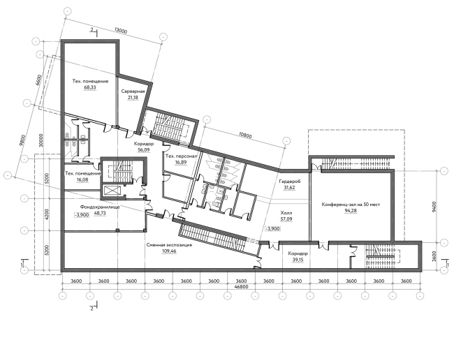
Национальный центр В. П. Астафьева. План на отметке +3.9
© А2
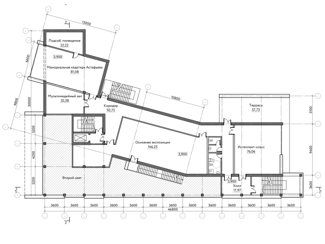
Национальный центр В. П. Астафьева. План на отметке +7.8
© А2
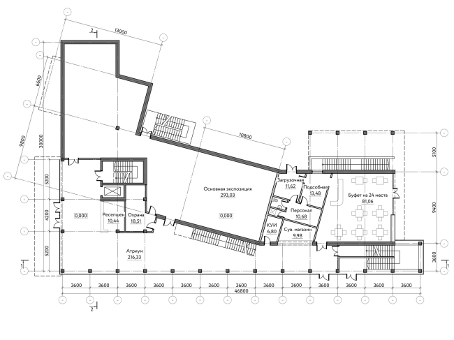
Национальный центр В. П. Астафьева. План 1 этажа
© А2
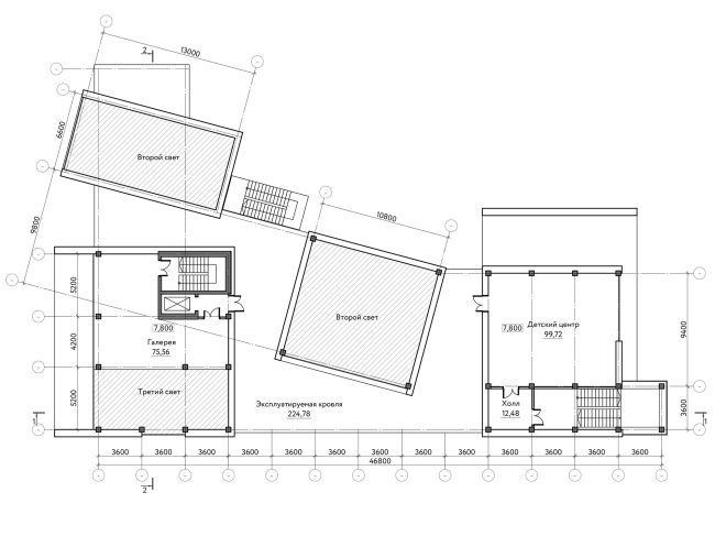
Национальный центр В. П. Астафьева. План подземного этажа на отметке -3.9
© А2
Национальный центр В. П. Астафьева. Разрез 1-1
© А2
Архитекторы – партнеры Архи.ру:
Проект из каталога (случайный выбор)
