RSS
Precision
Фотография © Роман Спиридонов / предоставлена Design-Center

Precision

информация:

  • статус
    реализовано
  • даты
    20212023 / 20212024
  • region= area= address=коттеджный поселок Дубрава country_t=Россия city_t=Пенза
    место
    Пенза коттеджный поселок Дубрава
  • координаты
    53.167417, 44.923984
  • функция
    Жилой / индивидуальный жилой дом
  • теги
    send.project
  • общая площадь
    560 м2
  • этажность
    2
Россия

авторский коллектив

Руководитель авторского коллектива: Анатолий Рузняев 
Архитектор: Елена Мельникова 

Precision
Фотография © Роман Спиридонов / предоставлена Design-Center

Архи.ру об этом объекте:

18.08.2025

Сопряжение масс

Загородный дом, построенный в Пензенской области по проекту бюро Design-Center, отличают брутальный характер и разноплановые ракурсы. Со стороны дороги дом представляет одноэтажную линейную композицию, с торца напоминает бастион с мощными стенами, а в саду набирает высоту и раскрывается панорамными окнами.

Описание предоставлено архитекторами Проект загородного дома в коттеджном поселке «Дубрава» основан на трех принципах чистые формы, современные решения и функциональность. Его архитектура сочетает графичность объемов с плавным перетеканием внутрен...   читать дальше
Precision
Фотография © Роман Спиридонов / предоставлена Design-Center

история проекта:

Частный заказ на разработку архитектурного проекта и проекта благоустройства.

описание:

Четкость форм и свобода пространства: загородный дом в Дубраве

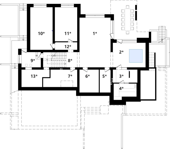
Загородный дом площадью 560 кв.м в Дубраве построен на трех принципах – чистые формы, современные решения и функциональность без компромиссов. Его архитектура сочетает графичность объемов с плавным перетеканием внутренних пространств.

Кухня, столовая и гостиная объединены в единый открытый объем, где каждое пространство дополняет другое. Панорамное остекление наполняет дом светом и воздухом, создаёт визуальную связь с участком, где расположена терраса с бассейном и зоной для летнего отдыха. Открытая планировка усиливает ощущение свободы и делает переход между интерьером и экстерьером почти незаметным.

Функциональная структура дома включает мастер-спальню с кабинетом и гардеробной, детские комнаты, спа-зону с сауной и хамамом, хозяйственные помещения и гараж. Все помещения организованы логично, в соответствии с образом жизни семьи.

Фасад выполнен в светлых и темных тонах, что подчеркивает выразительную геометрию здания. Каменные элементы и ограждения из стемалита добавляют фактурности и контраста. Акценты медного оттенка завершают образ, придавая дому теплоту и индивидуальность.

Этот проект – пример современной архитектуры, где эстетика и функциональность не противопоставлены, а работают в едином ритме.

Precision
Фотография © Роман Спиридонов / предоставлена Design-Center
Precision
Фотография © Роман Спиридонов / предоставлена Design-Center
Precision
Фотография © Роман Спиридонов / предоставлена Design-Center
Precision
Фотография © Роман Спиридонов / предоставлена Design-Center
Precision
Фотография © Роман Спиридонов / предоставлена Design-Center
Precision
Фотография © Роман Спиридонов / предоставлена Design-Center
Precision
Фотография © Роман Спиридонов / предоставлена Design-Center
Precision
Фотография © Роман Спиридонов / предоставлена Design-Center
Precision
© Design-Center
Precision
© Design-Center
Precision
© Design-Center

Архитекторы – партнеры Архи.ру:

  • Василий Крапивин
  • Екатерина Кузнецова
  • Сергей Переслегин
  • Константин Ходнев
  • Елена Пучкова
  • Анна Иванова
  • Раис Баишев
  • Владислав Андреев
  • Марина Егорова
  • Григориос Гавалидис
  • Юлия Тряскина
  • Григорий Мустафин
  • Вера Бутко
  • Дмитрий Сухов
  • Сергей Труханов
  • Полина Воеводина
  • Николай Переслегин
  • Михаил Давыдов
  • Александр Самарин
  • Олег Шапиро
  • Дмитрий Буш
  • Виталий Лутц
  • Георгий Трофимов
  • Александр Котенков
  • Анастасия Абашева
  • Никита Явейн
  • Наталья Сидорова
  • Игорь Шварцман
  • Михаил Канунников
  • Андрей Романов
  • Сергей Никешкин
  • Александра Кузьмина
  • Евгений Зеленов
  • Александр Скокан
  • Ростислав Цайзер
  • Николай Кикава
  • Станислав Белых
  • Илья Машков
  • Татьяна Зульхарнеева
  • Степан Липгарт
  • Алексей Орлов
  • Сергей Кузнецов
  • Антон Яр-Скрябин
  • Иван Кожин
  • Юлия Солдатенкова
  • Дмитрий Ликин
  • Андрей Асадов
  • Александр Асадов
  • Энди Сноу
  • Дмитрий Остроумов
  • Сергей Чобан
  • Зураб Басария
  • Олег Мединский
  • Всеволод Медведев
  • Игорь Членов
  • Ерлан Бекмухамедов
  • Евгений Новосадюк
  • Юлиана Княжевская
  • Роман Леонидов
  • Валерий Каняшин
  • Владимир Плоткин
  • Андрей Гнездилов
  • Юлий Борисов
  • Евгений Подгорнов
  • Андрей Михайлов
  • Антон Надточий
  • Сергей Скуратов
  • Наталия Шилова
  • Даниил Лоренц
  • Павел Андреев
  • Андрей Чуйков
  • Алексей Гинзбург
  • Тимур Абдуллаев
  • Екатерина Абдуллаева
  • Маргарита Авдышева
  • Левон Айрапетов
  • Александр Аношкин
  • Алексей Афоничкин
  • Владислав Бек-Булатов
  • Антон Белов
  • Татьяна Бузулукова
  • Петр Васильев
  • Алина Георгиевская
  • Павел Гордеев
  • Илья Гринберг
  • Никита Демидов
  • Никита Дергунов
  • Наталья Жилкина
  • Алексей Зародов
  • Екатерина Зырина
  • Алексей Ильин
  • Дарья Ильина
  • Олег Карлсон
  • Алексей Кибкало
  • Денис Кувшинников
  • Анна Куликова
  • Алексей Курков
  • Алексей Курков
  • Данил Куров
  • Евгений Кутай
  • Мария Кутай
  • Антон Ладыгин
  • Антон Ладыгин
  • Дмитрий Лапин
  • Борис Левянт
  • Катерина Левянт
  • Илья Левянт
  • Антон Лукомский
  • Валерий Лукомский
  • Екатерина Ляпунова
  • Сергей Марков
  • Николай Миловидов
  • Станислав Михаловский
  • Олеся Могилевская
  • Мария Николаева
  • Виктор Перов
  • Алексей Полищук
  • Роман Пономарёв
  • Валерия Преображенская
  • Виктория Раубо
  • Николай Рыбаков
  • Василий Рыбаков
  • Мария Салех
  • Александр Стариков
  • Илья Уткин
  • Дмитрий Шурыгин
  • Олег Шурыгин

Проект из каталога (случайный выбор)

Автосалон «Infinity»
Сергей Орешкин, 2005 – 2006
Автосалон «Infinity»

Постройки и проекты (новые записи):

  • ЖК Лесное ожерелье
  • Клубный дом «Хамовники 12»
  • Усадьба «Павлово»
  • Проект общественно-делового комплекса у станции метро «Ботанический Сад» / Genpro
  • Проект общественно-делового комплекса у станции метро «Ботанический Сад» / UNK
  • Бизнес-центр «Триград»
  • БЦ в Раменках
  • Бизнес-центр (на месте ТЦ «Старт»)
  • DELO HOUSE 3.2 с флигелем

Новости российской архитектуры:

Форма радости
07.03.2026

Форма радости

Марат Мазур
Вторая жизнь гидроузла
07.03.2026

Вторая жизнь гидроузла

Эльвира Гришечкина
Орел или решка
05.03.2026

Орел или решка

Ксения Караваева, Мурат Гукетлов
Стены помогают
04.03.2026

Стены помогают

Андрей Михайлов, Сергей Никешкин
Лодка, раскрой паруса
03.03.2026

Лодка, раскрой паруса

Юлий Борисов