Автономный дом Voyager
Фотография © Лидия Гребенюк / предоставлена Lab House
Автономный дом Voyager
информация:
-
статус
реализовано -
даты
02.2025 / 04.2025 -
место
Краснодарский край станица Гостагаевская, «Винная деревня» -
координаты
45.075325, 37.452595 -
функция
Жилой / индивидуальный жилой дом
Дом для отдыха на природе на своем шасси с автономными решениями для жизни -
теги
send.project -
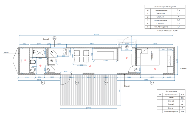
общая площадь
30 м2 -
высота
2,9

Максим Шишов
РоссияLab House
Россияавторский коллектив
Дизайнер: Мария Шишова
Архитектор: Мария Бекетова
партнеры, заказчики, смежники
Автономный дом Voyager
Фотография © Лидия Гребенюк / предоставлена Lab House
Архи.ру об этом объекте:
Вожу с собой
Дом Voyager, сделанный Lab House из морского контейнера и поставленный на шасси, можно прицепить к грузовому автомобилю и увезти в красивое место. Дом автономен, а внутри есть все, необходимое для комфортной жизни. Площадь значительно расширяет складная терраса.
Описание предоставлено архитекторами Дом Voyager сделан из 45-футового морского контейнера, установленного на шасси, чтобы его можно было буксировать тягачом до места установки. Автономные решения разработаны и произведены по индивидуальному заказу... читать дальшеАвтономный дом Voyager
Фотография © Лидия Гребенюк / предоставлена Lab House
история проекта:
Зимой 2025 года в LAB HOUSE обратились виноделы Краснодарского края – компания Winemafia & Koffman brothers.
Виноградники компании расположены на красивом холме, и виноделы мечтали установить мини-дом для гостей винодельни. Была поставлена задача создать мобильный дом с видом на виноградники, который будет минимально воздействовать на терруар заказчика, сохранив первозданной среду для роста лозы.
Так и родилась идея автономного дома на своём шасси.
Для реализации данного проекта был выбран 45-футовый морской контейнер High Cube, который уже был использован по прямому назначению и получил «вторую жизнь» в качестве дома.
Однако он не единственный – аналогичное перерождение произошло и с шасси, на котором установлен дом.
Дом имеет автономные решения в виде бака для чистой воды на 1100 литров, бака для серой воды на 4500 литров, подготовлен к монтажу солнечных панелей.
описание:
Дом имеет всё необходимое для жизни, укомплектован мебелью и техникой под ключ.
Также для информации: линейка домов Lab House представлена семью вариантами, площадью от 20 до 30 кв. м. Компания продала за календарный год, начиная с 2024 года, восемь домов. Этот дом не первый наш проданный проект.
Именно Voyager стал результатом в какой-то степени творческого эксперимента и коммерческого проекта под заказчика. Творческим его можно назвать, так как именно для этого дома были придуманы свои уникальные решения, которых мы раньше не внедряли (откидная терраса, шасси, автономные решения, новая планировка).