Описание предоставлено архитекторами
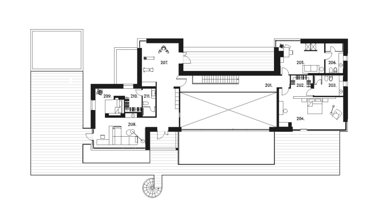
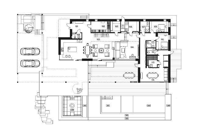
Легкий архитектурный объем дома организован линейно вдоль реки, что обеспечивает видовые раскрытия и наилучшую связь с участком. Практически из любого пространства можно выйти на разные уровни террас. Горизонтальности дома противопоставлена вертикаль винтовой лестницы. Она соединяет террасу с помещениями второго этажа – мастер-спальней и кабинетом, которые объединяет мост.
Дом с мостом. Биобассейн
Фотография © Роман Спиридонов / предоставлена АБ SNOU
Дом с мостом. Биоплато
Фотография © Роман Спиридонов / предоставлена АБ SNOU
Небольшой участок архитекторы разделили на несколько полос, параллельных реке. Так удалось создать разнообразные зоны: сад из плодовых деревьев, сам дом, террасу с бассейном и ландшафт с геопластикой. Поскольку дом был приподнят для лучшего визуального раскрытия и изоляции от взглядов с набережной, в самой крайней части участка образовался рельеф. Здесь расположен мини-парк, решенный в средиземноморском духе, но с применением достаточно простых растений – тополя, сумахи и можжевельники. Нижний ярус – это луговое разнотравье, среди которого весной расцветают тюльпаны. Крупные деревья создают вертикали и горизонтали крон, что перекликается с ритмом дома.
Дом с мостом. Вид на дом с набережной
Фотография © Роман Спиридонов / предоставлена АБ SNOU
Дом с мостом. Вид на дом с участка
Фотография © Роман Спиридонов / предоставлена АБ SNOU
Внутреннее пространство дома организовано в соответствии с образом жизни владельцев. На первом этаже расположились общие пространства для семьи и гостей, а на втором – личные комнаты: спальни, гардеробы и кабинеты. Пространства второго этажа сообщаются мостом, парящим над гостиной.

