RSS
Дом с мостом. Биобассейн
Фотография © Роман Спиридонов / предоставлена АБ SNOU

Дом с мостом

информация:

  • статус
    реализовано
  • даты
    2019 / 2023
  • region=Саратовская область area= address= country_t=Россия city_t=Энгельс
    место
    Энгельс Саратовская область
  • координаты
    51.502673, 46.054840
  • функция
    Жилой / дом
  • общая площадь
    450 м2
  • этажность
    2
Россия

авторский коллектив

ГАП: Николай Новичков
Руководитель проекта: Сергей Сердюков
Архитектор: Елена Бондаренко
Архитектор: Юлия Ашихмина
 

партнеры, заказчики, смежники

Партнеры

Проектная документация,конструктивные решения: компания СТМК
Соавтор ландшафтного дизайна: Юлия Бурова
Разработка конструкции и реализация биобассейна: «Саратовсад»
Дом с мостом. Биоплато
Фотография © Роман Спиридонов / предоставлена АБ SNOU

Архи.ру об этом объекте:

13.03.2025

Мосты и лестницы

Дом на берегу Волги в Саратовской области архитекторы бюро SNOU снабдили большим количеством террас, которые соединяются воздушными мостами – этот элемент присутствует также и в интерьере. Простым объемам и линейной компоновке противопоставлена скульптурная винтовая лестница, которая позволяет спуститься из спальни или кабинета в сад.

Описание предоставлено архитекторами Легкий архитектурный объем дома организован линейно вдоль реки, что обеспечивает видовые раскрытия и наилучшую связь с участком. Практически из любого пространства можно выйти на разные уровни террас. Горизонтал...   читать дальше
Дом с мостом. Вид из гостиной на террасу
Фотография © Роман Спиридонов / предоставлена АБ SNOU

описание:

На небольшом участке мы разместили много разнообразных зон, разделив его на несколько полос параллельных реке – сад, линия дома, терраса, ландшафт с геопластикой.

Сад представляет собой ряд плодовых деревьев с бокового фасада дома. Затем объём самого дома, дальше к реке – терраса с бассейном и биоплато. Ближе всего к краю участка, параллельно береговой линии, расположен мини-парк для прогулок на рельефе. Рельеф возник, так как дом был приподнят для лучшего визуального раскрытия и изоляции от взглядов с набережной.

Лёгкий архитектурный объём дома с выстроенными в линию вдоль реки основными зонами обеспечивает максимум видовых раскрытий и наилучшую связь с участком. Из практически любого пространства мы можем выйти на разные уровни террас.

В противовес горизонтальности дома появилась вертикаль винтовой лестницы, соединяющей второй этаж с террасой на первом этаже.

Внутреннее пространство дома организовано с максимально тонкой подгонкой под образ жизни владельцев.

Хозяева – люди гостеприимные, и у них часто собираются большие компании.
Исходя из этого на первом этаже расположились пространства для всех, а на втором – личные комнаты: спальни, гардеробы, кабинеты владельцев.

Пространства второго этажа в интерьере сообщаются мостом, парящим над гостиной. Снаружи террасы мастер-спальни и кабинета также соединяются через мост.
С наружного моста по винтовой лестнице можно спуститься в лаунж-зону с костровой чашей.

Это место для отдыха вечером в закатных лучах солнца у огня и единения с природой.
Расположенный рядом мини-парк решен в средиземноморском духе, но с применением достаточно простых растений – это тополя, сумахи и можжевельники.

Нижний ярус – это луговое разнотравье, среди которого весной расцветают тюльпаны. 
Крупные деревья создают вертикали и горизонтали крон, что перекликается с ритмом дома
Дом с мостом. Вид из зоны кухни
Фотография © Роман Спиридонов / предоставлена АБ SNOU
Дом с мостом. Вид на дом с набережной
Фотография © Роман Спиридонов / предоставлена АБ SNOU
Дом с мостом. Вид на дом с участка
Фотография © Роман Спиридонов / предоставлена АБ SNOU
Дом с мостом. Вид на камин
Фотография © Роман Спиридонов / предоставлена АБ SNOU
Дом с мостом. Вход в СПА
Фотография © Роман Спиридонов / предоставлена АБ SNOU
Дом с мостом. Входная группа
Фотография © Роман Спиридонов / предоставлена АБ SNOU
Дом с мостом. Выход на мост
Фотография © Роман Спиридонов / предоставлена АБ SNOU
Дом с мостом. Гостиная
Фотография © Роман Спиридонов / предоставлена АБ SNOU
Дом с мостом. Диванная зона
Фотография © Роман Спиридонов / предоставлена АБ SNOU
Дом с мостом. Кабинет
Фотография © Роман Спиридонов / предоставлена АБ SNOU
Дом с мостом. Камин
Фотография © Роман Спиридонов / предоставлена АБ SNOU
Дом с мостом. Каминная зона вид от столовой
Фотография © Роман Спиридонов / предоставлена АБ SNOU
Дом с мостом. Лаундж с костровой чашей
Фотография © Роман Спиридонов / предоставлена АБ SNOU
Дом с мостом. Мастер спальня
Фотография © Роман Спиридонов / предоставлена АБ SNOU
Дом с мостом. Мост в интерьере
Фотография © Роман Спиридонов / предоставлена АБ SNOU
Дом с мостом. Картина локального художника
Фотография © Роман Спиридонов / предоставлена АБ SNOU
Дом с мостом. Санузел – СПА
Фотография © Роман Спиридонов / предоставлена АБ SNOU
Дом с мостом. Столовая
Фотография © Роман Спиридонов / предоставлена АБ SNOU
Дом с мостом. Терраса
Фотография © Роман Спиридонов / предоставлена АБ SNOU
Дом с мостом. Генеральный план
© АБ SNOU
Дом с мостом. Фасад с – в
© АБ SNOU
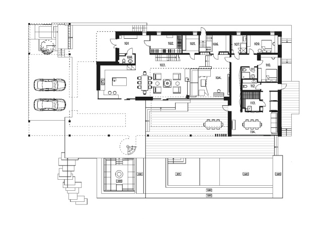
Дом с мостом. План 1 этажа
© АБ SNOU
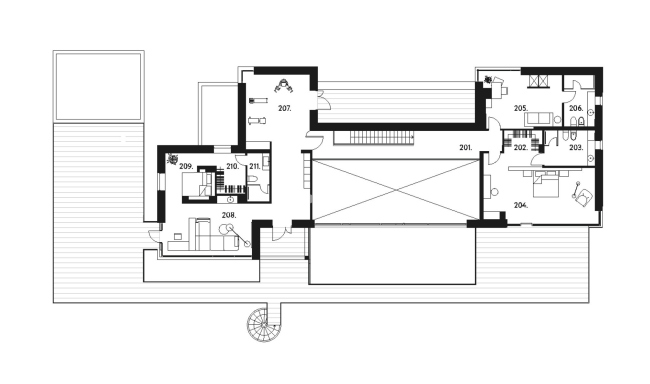
Дом с мостом. План 2 этажа
© АБ SNOU
Дом с мостом. Фасад с – з
© АБ SNOU

Архитекторы – партнеры Архи.ру:

  • Александр Самарин
  • Дмитрий Буш
  • Энди Сноу
  • Никита Явейн
  • Андрей Чуйков
  • Евгений Подгорнов
  • Татьяна Зульхарнеева
  • Даниил Лоренц
  • Александр Асадов
  • Антон Яр-Скрябин
  • Павел Андреев
  • Владимир Плоткин
  • Роман Леонидов
  • Григориос Гавалидис
  • Иван Кожин
  • Александра Кузьмина
  • Георгий Трофимов
  • Сергей Скуратов
  • Василий Крапивин
  • Николай Кикава
  • Александр Котенков
  • Екатерина Кузнецова
  • Владислав Андреев
  • Алексей Гинзбург
  • Полина Воеводина
  • Григорий Мустафин
  • Марина Егорова
  • Евгений Зеленов
  • Андрей Михайлов
  • Евгений Новосадюк
  • Всеволод Медведев
  • Игорь Шварцман
  • Андрей Гнездилов
  • Андрей Асадов
  • Алексей Орлов
  • Анастасия Абашева
  • Антон Надточий
  • Сергей Кузнецов
  • Станислав Белых
  • Александр Скокан
  • Виталий Лутц
  • Игорь Членов
  • Сергей Переслегин
  • Илья Машков
  • Сергей Труханов
  • Константин Ходнев
  • Дмитрий Остроумов
  • Дмитрий Ликин
  • Наталья Сидорова
  • Сергей Чобан
  • Андрей Романов
  • Михаил Давыдов
  • Олег Мединский
  • Елена Пучкова
  • Ерлан Бекмухамедов
  • Сергей Никешкин
  • Ростислав Цайзер
  • Анна Иванова
  • Наталия Шилова
  • Михаил Канунников
  • Степан Липгарт
  • Юлиана Княжевская
  • Юлий Борисов
  • Валерий Каняшин
  • Дмитрий Сухов
  • Юлия Тряскина
  • Зураб Басария
  • Николай Переслегин
  • Юлия Солдатенкова
  • Вера Бутко
  • Раис Баишев
  • Олег Шапиро
  • Тимур Абдуллаев
  • Екатерина Абдуллаева
  • Маргарита Авдышева
  • Левон Айрапетов
  • Александр Аношкин
  • Алексей Афоничкин
  • Владислав Бек-Булатов
  • Антон Белов
  • Татьяна Бузулукова
  • Петр Васильев
  • Алина Георгиевская
  • Павел Гордеев
  • Илья Гринберг
  • Никита Демидов
  • Никита Дергунов
  • Наталья Жилкина
  • Алексей Зародов
  • Екатерина Зырина
  • Алексей Ильин
  • Дарья Ильина
  • Олег Карлсон
  • Алексей Кибкало
  • Денис Кувшинников
  • Анна Куликова
  • Алексей Курков
  • Алексей Курков
  • Данил Куров
  • Евгений Кутай
  • Мария Кутай
  • Антон Ладыгин
  • Антон Ладыгин
  • Дмитрий Лапин
  • Катерина Левянт
  • Илья Левянт
  • Борис Левянт
  • Антон Лукомский
  • Валерий Лукомский
  • Екатерина Ляпунова
  • Сергей Марков
  • Николай Миловидов
  • Станислав Михаловский
  • Олеся Могилевская
  • Мария Николаева
  • Виктор Перов
  • Алексей Полищук
  • Роман Пономарёв
  • Валерия Преображенская
  • Виктория Раубо
  • Василий Рыбаков
  • Мария Салех
  • Александр Стариков
  • Илья Уткин
  • Дмитрий Шурыгин
  • Олег Шурыгин

Проект из каталога (случайный выбор)

Постройки и проекты (новые записи):

  • Проект общественно-делового комплекса у станции метро «Ботанический Сад» / Genpro
  • Проект общественно-делового комплекса у станции метро «Ботанический Сад» / UNK
  • Дворец бильярда в Мневниковской пойме
  • БЦ в Раменках
  • Бизнес-центр (на месте ТЦ «Старт»)
  • DELO HOUSE 3.2 с флигелем
  • Ледовый дворец Navka Arena
  • Благоустройство территории ЖК Holms Residence
  • Игровое пространство у театра им. Г.К. Камала

Новости российской архитектуры:

Потенциальные примечательности. Обзор проектов 16–22 февраля 2026
22.02.2026

Потенциальные примечательности. Обзор проектов 16–22 февраля 2026

Евгений Зеленов, Юлий Борисов, Амир Идиатулин, Николай Гордюшин, Александр Аношкин, Мария Салех, Никита Дергунов
Визуальная чистота
20.02.2026

Визуальная чистота

Александр Жидков, Михаил Гуманков
Кирпичная вуаль
20.02.2026

Кирпичная вуаль

Айк Навасардян, Рубен Аракелян