Описание предоставлено архитекторами
Отель «Скала», бывшая база «Голубой факел», – позднесоветский образец курортной архитектуры, расположенный в селе Архипо-Осиповка, на скале у Черного моря. Владелец отеля планирует построить рядом с основным корпусом учебно-тренировочный айкидо-лагерь. Поэтому проект реконструкции поддерживает японскую архитектурную традицию.
Проект реконструкции отеля Скала
© София Степанова
Концепция согласуется с традиционным для Японии принципом ненарушения природы вещей: создание нового – это не сотворение, а выявление того, что уже заложено. Поэтому архитектура и интерьеры становятся «рамкой», направляющей внимание на окружающий ландшафт – море и скалы. Архитектура не вторгается в природный ритм и не перебивает его, а деликатно обрамляет естественную жизнь.
Проект реконструкции отеля Скала
© София Степанова
Фасад выполнен в строгих линиях, отсылающих к узорам мужских кимоно. В отделке использованы прямоугольные блоки, которые формируют рельефную поверхность и создают игру светотени. Эти элементы также обеспечивают приватность для гостей, так как выступают на уровне окон и балконов, защищая их от посторонних взглядов.
Проект реконструкции отеля Скала
© София Степанова
Кровля выполнена в форме каскадного ската с волнистыми линиями. Такая форма рифмуется с естественным рельефом местности и одновременно отсылает к традиционным японским храмам.
Проект реконструкции отеля Скала
© София Степанова
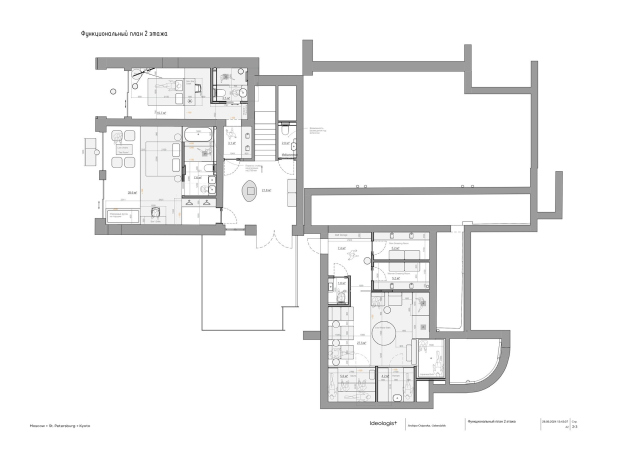
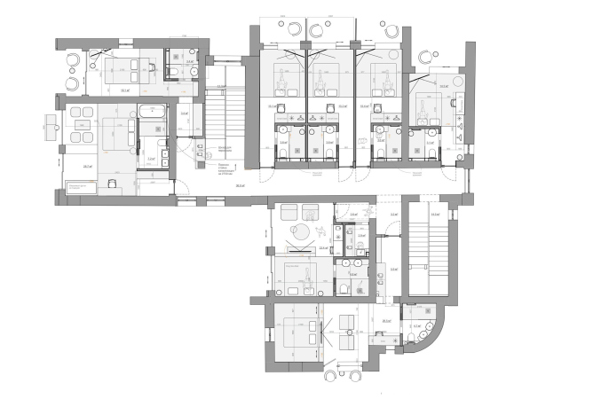
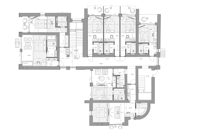
Интерьеры номеров выдержаны в стиле японского минимализма. Все кровати расположены так, чтобы гости могли наслаждаться видом на море и горы. В отделке применены натуральные материалы: древесина клена, штукатурка, японская бумага васи, деревянные перегородки кумико. В некоторых номерах использованы подиумы для зонирования пространства, напоминающие структуру традиционных японских домов.
В отеле предусмотрено 30 номеров семи типов – от компактных до просторных люксов. В стандартных номерах использованы приемы, позаимствованные из дизайна токийских гостиниц, где важен каждый сантиметр пространства. В люксах добавлены зоны для чайных церемоний, создающие атмосферу для медитации и спокойного общения.

