Проект реконструкции отеля Скала
© София Степанова
Проект реконструкции отеля Скала
информация:
-
статус
проект -
даты
— 2024 -
место
Геленджик село Архипо-Осиповка, 114 -
координаты
44.358107, 38.521487 -
функция
Туризм/здравоохранение / Отель -
теги
send.project -
общая площадь
1 260 м2

Станислав Москаленский
РоссияIDEOLOGIST
Россияавторский коллектив
Руководитель авторского коллектива, основатель IDEOLOGIST: Станислав Москаленский
Ведущий архитектор: Алексей Яковец
Концепция проекта: Марина Добринчук
Менеджер проекта: Ирина Нейман
Визуализации: София Степанова
Ведущий архитектор: Алексей Яковец
Концепция проекта: Марина Добринчук
Менеджер проекта: Ирина Нейман
Визуализации: София Степанова
партнеры, заказчики, смежники
Заказчик: владелец отеля Скала
другие названия проекта
Проект реконструкции отеля, вдохновленный японскими архитектурными традициями
Проект реконструкции отеля Скала
© София Степанова
Архи.ру об этом объекте:
08.11.2024
Черное кимоно
Бюро IDEOLOGIST подготовило проект реконструкции позднесоветской базы отдыха, расположенной на скале у Черного моря, недалеко от Геленджика. Концепция выдержана в японском духе, что с одной стороны соответствует вектору развития курорта, с другой – логично соотносится с созерцательными пейзажами субтропического пояса.
Описание предоставлено архитекторами Отель «Скала», бывшая база «Голубой факел», позднесоветский образец курортной архитектуры, расположенный в селе Архипо-Осиповка, на скале у Черного моря. Владелец отеля планирует построить рядом с основным корп... читать дальшеПроект реконструкции отеля Скала
© София Степанова
описание:
Проект реконструкции отеля, вдохновленный японскими архитектурными традициями
Позднесоветский образец курортной архитектуры на юге России получит обновленный фасад и интерьеры номеров, вдохновленные Японией.
Архитектурное бюро IDEOLOGIST, более 10 лет сотрудничающее с японскими архитекторами, разработало проект реконструкции и брендинга отеля в с. Архипо-Осиповка под Геленджиком. Отель, расположенный на скале у Черного моря, будет полностью реконструирован.
Концепция
Особенностью проекта, вокруг которой выстроилась вся концепция, стало желание владельца отеля построить рядом с основным зданием учебно-тренировочный айкидо-лагерь. Вместе они должны образовывать стилистически цельный проект в соответствии с японскими архитектурными традициями.
Концепция заключается в принципе ненарушения природы вещей, традиционного для Японии, когда создание нового – это не сотворение, а выявление того, что уже заложено. Таким образом, архитектура и интерьеры становятся «рамкой» для природы вокруг. Рамка задает фокус и направляет внимание на окружающий ландшафт – море и скалы. Это архитектура, которая не вторгается, не перебивает природный ритм, а деликатно обрамляет естественную жизнь.
Архитектура
Фасад отеля выполнен в строгих линиях, отсылающих к узорам мужских кимоно. В отделке использованы прямоугольные блоки, которые формируют рельефную поверхность и создают игру светотени. Эти элементы также обеспечивают приватность для гостей, так как выступают на уровне окон и балконов, защищая их от посторонних взглядов.
Крыша здания выполнена в форме каскадного ската с волнистыми линиями. Такая форма рифмуется с естественным рельефом местности и одновременно отсылает к традиционным японским храмам.
Интерьеры номеров выдержаны в стиле японского минимализма. Все кровати расположены так, чтобы гости могли наслаждаться видом на море и горы. В отделке применены натуральные материалы: древесина клена, штукатурка, японская бумага васи, деревянные перегородки кумико. В некоторых номерах использованы подиумы для зонирования пространства, напоминающие структуру традиционных японских домов.
В отеле предусмотрено 30 номеров семи типов – от компактных до просторных люксов. В стандартных номерах использованы приёмы, взятые из дизайна токийских гостиниц, где важен каждый сантиметр пространства. В люксах добавлены зоны для чайных церемоний, создающие атмосферу для медитации и спокойного общения.
Позднесоветский образец курортной архитектуры на юге России получит обновленный фасад и интерьеры номеров, вдохновленные Японией.
Архитектурное бюро IDEOLOGIST, более 10 лет сотрудничающее с японскими архитекторами, разработало проект реконструкции и брендинга отеля в с. Архипо-Осиповка под Геленджиком. Отель, расположенный на скале у Черного моря, будет полностью реконструирован.
Концепция
Особенностью проекта, вокруг которой выстроилась вся концепция, стало желание владельца отеля построить рядом с основным зданием учебно-тренировочный айкидо-лагерь. Вместе они должны образовывать стилистически цельный проект в соответствии с японскими архитектурными традициями.
Концепция заключается в принципе ненарушения природы вещей, традиционного для Японии, когда создание нового – это не сотворение, а выявление того, что уже заложено. Таким образом, архитектура и интерьеры становятся «рамкой» для природы вокруг. Рамка задает фокус и направляет внимание на окружающий ландшафт – море и скалы. Это архитектура, которая не вторгается, не перебивает природный ритм, а деликатно обрамляет естественную жизнь.
Архитектура
Фасад отеля выполнен в строгих линиях, отсылающих к узорам мужских кимоно. В отделке использованы прямоугольные блоки, которые формируют рельефную поверхность и создают игру светотени. Эти элементы также обеспечивают приватность для гостей, так как выступают на уровне окон и балконов, защищая их от посторонних взглядов.
Крыша здания выполнена в форме каскадного ската с волнистыми линиями. Такая форма рифмуется с естественным рельефом местности и одновременно отсылает к традиционным японским храмам.
Интерьеры номеров выдержаны в стиле японского минимализма. Все кровати расположены так, чтобы гости могли наслаждаться видом на море и горы. В отделке применены натуральные материалы: древесина клена, штукатурка, японская бумага васи, деревянные перегородки кумико. В некоторых номерах использованы подиумы для зонирования пространства, напоминающие структуру традиционных японских домов.
В отеле предусмотрено 30 номеров семи типов – от компактных до просторных люксов. В стандартных номерах использованы приёмы, взятые из дизайна токийских гостиниц, где важен каждый сантиметр пространства. В люксах добавлены зоны для чайных церемоний, создающие атмосферу для медитации и спокойного общения.
Проект реконструкции отеля Скала
© София Степанова
Проект реконструкции отеля Скала
© София Степанова
Проект реконструкции отеля Скала
© София Степанова
Проект реконструкции отеля Скала
© София Степанова
Проект реконструкции отеля Скала
© София Степанова
Проект реконструкции отеля Скала
© София Степанова
Проект реконструкции отеля Скала
© София Степанова
Проект реконструкции отеля Скала
© София Степанова
Проект реконструкции отеля Скала
© София Степанова
Проект реконструкции отеля Скала
© София Степанова
Проект реконструкции отеля Скала
© София Степанова
Проект реконструкции отеля Скала
© София Степанова
Проект реконструкции отеля Скала
© София Степанова
Проект реконструкции отеля Скала
© София Степанова
Проект реконструкции отеля Скала
© София Степанова
Проект реконструкции отеля Скала
© София Степанова
Проект реконструкции отеля Скала
© София Степанова
Проект реконструкции отеля Скала. План 1 этажа
© IDEOLOGIST
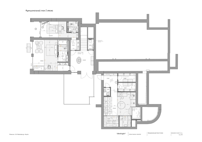
Проект реконструкции отеля Скала. План 2 этажа
© IDEOLOGIST
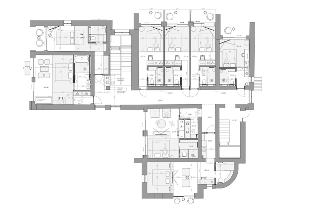
Проект реконструкции отеля Скала. План 3 этажа
© IDEOLOGIST
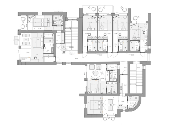
Проект реконструкции отеля Скала. План 4 этажа
© IDEOLOGIST
Проект реконструкции отеля Скала. План 5 этажа
© IDEOLOGIST
Архитекторы – партнеры Архи.ру:
Проект из каталога (случайный выбор)
Постройки и проекты (новые записи):
Новости российской архитектуры:
15.10.2025
Рай с видом на Кремль
Ким Ен Гир , Валентин Остроумов14.10.2025
Живопись и графика
Ксения Караваева, Мурат Гукетлов14.10.2025
Осмысление фьорда
14.10.2025