Описание предоставлено архитекторами
В 2019 году ГК «ПИК» приобрела земельный участок для строительства жилого комплекса «Кантемировская, 11». Расположенный на его территории объект культурного наследия «Сборочная мастерская автомобильной фабрики «Русский Рено», построенный в 1914 году по проекту Алексея Бубыря, было решено приспособить под детское образовательное учреждение – блок начальных классов на 300 человек и детский сад на 150 мест. Проект разработал «НИиПИ Спецреставрация».
Реставрация с приспособлением под современное использование объекта культурного наследия регионального значения «Сборочная мастерская архитектурной фабрики «Русский Рено» под школу-детский сад на 450 мест»
Фотография © Пресс-служба ПИК / предоставлена НИиПИ Спецреставрация
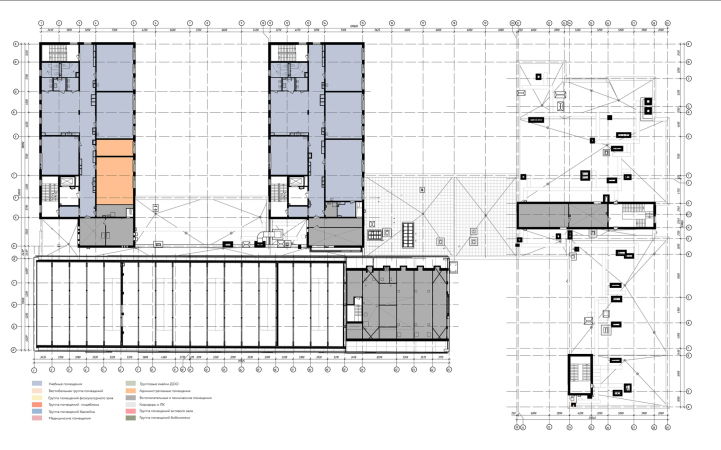
Учебный комплекс состоит из четырех объемов – здания ОКН и пристроенных с северного фасада объемов школы, детского сада и одноэтажного пищеблока. Школа имеет П-образную форму, в то время как детский сад представляет собой вытянутый прямоугольный корпус. Торцами корпуса обращены в сторону жилого квартала. Такое расположение позволяет организовать двор-курдонер, где находится главный вход в школу.
Реставрация с приспособлением под современное использование объекта культурного наследия регионального значения «Сборочная мастерская архитектурной фабрики «Русский Рено» под школу-детский сад на 450 мест». Аксонометрия
© НИиПИ Спецреставрация
Объемно-планировочные особенности здания ОКН позволили разместить в нем помещения, необходимые для функционирования школы: физкультурный зал, учебный бассейн, актовый зал, столовую и библиотеку.
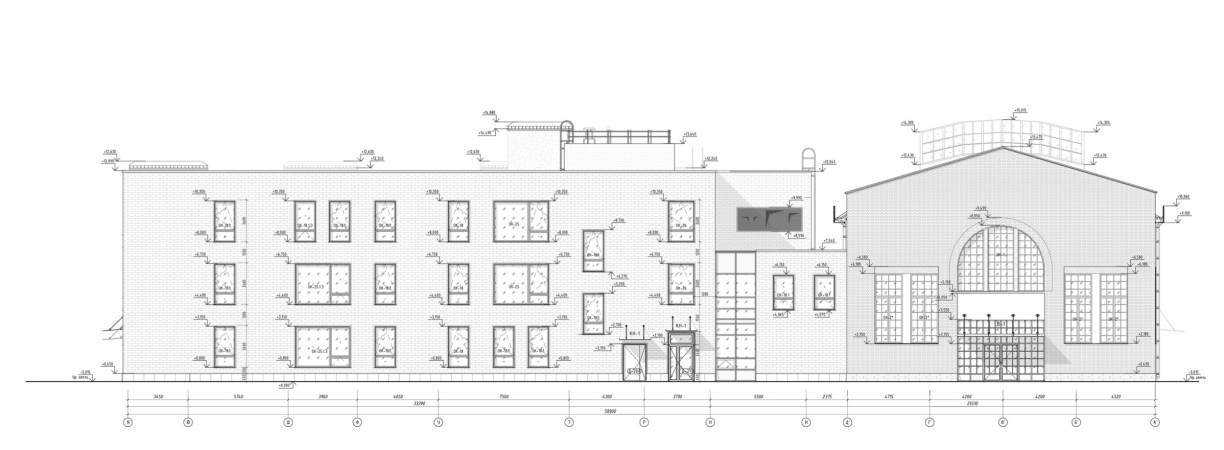
Фасады здания ОКН полностью отреставрировали, сохранив материал и характер отделки – облицовочный кирпич в одну версту. Заложенные исторические воротные проемы раскрыли. Оконные заполнения заменили на алюминиевые витражи, восстановили историческую расстекловку в мелкую клетку. Зенитным фонарям на кровле возвратили исторический вид.
Реставрация с приспособлением под современное использование объекта культурного наследия регионального значения «Сборочная мастерская архитектурной фабрики «Русский Рено» под школу-детский сад на 450 мест»
Фотография © Пресс-служба ПИК / предоставлена НИиПИ Спецреставрация
Фасады нового объема, выходящие в сторону Большого Сампсониевского проспекта, облицованы клинкерной плиткой терракотового оттенка, имеют прямой парапет и выступающий объем лестничной клетки на кровле. Внутренние фасады имеют аналогичную конфигурацию и облицованы клинкерной плиткой светлых оттенков. Примыкание двух объемов – здания Сборочной мастерской и возводимых корпусов школы выполнено нейтральным. Соединение происходит через фрагмент фасада, облицованный темно-серой клинкерной плиткой, а также витраж, который оттеняет краснокирпичный фасад памятника от нового объема.
Реставрация с приспособлением под современное использование объекта культурного наследия регионального значения «Сборочная мастерская архитектурной фабрики «Русский Рено» под школу-детский сад на 450 мест»
Фотография © Пресс-служба ПИК / предоставлена НИиПИ Спецреставрация
В результате приспособления зданию Сборочной мастерской был возвращен его исторический архитектурный облик промышленного здания начала XX века. Теперь оно несет образовательную функцию и служит местом притяжения.
Реставрация с приспособлением под современное использование объекта культурного наследия регионального значения «Сборочная мастерская архитектурной фабрики «Русский Рено» под школу-детский сад на 450 мест». Северный фасад
© НИиПИ Спецреставрация
Реставрация с приспособлением под современное использование объекта культурного наследия регионального значения «Сборочная мастерская архитектурной фабрики «Русский Рено» под школу-детский сад на 450 мест». Продольный разрез по зданию ОКН
© НИиПИ Спецреставрация
