Реставрация с приспособлением под современное использование объекта культурного наследия регионального значения «Сборочная мастерская архитектурной фабрики «Русский Рено» под школу-детский сад на 450 мест»
Фотография © Пресс-служба ПИК / предоставлена НИиПИ Спецреставрация
Реставрация с приспособлением под современное использование объекта культурного наследия регионального значения «Сборочная мастерская архитектурной фабрики «Русский Рено» под школу-детский сад на 450 мест»
информация:
-
статус
реализовано -
даты
2020 — 2022 / 2022 — 2023 -
место
Санкт-Петербург ул. Кантемировская д.11, лит. А -
координаты
59.980986, 30.338300 -
функция
Образование и наука / Образовательный комплекс -
теги
send.project -
общая площадь
11 375,41 м2 -
этажность
1-3 -
строительный объем
57 721 м3 -
ссылки:

Кирилл Степанов
РоссияНИиПИ Спецреставрация
Россияавторский коллектив
ГАП: Д.А. Болдырева
ГИП: Д.А. Ткачев
Архитекторы: Е. Будаченкова, А. Сон, А. Бунятова, Ю. Куликанова, И. Протопопов
Конструктив:
Руководитель отдела: Н.Н. Шаньгина
Главный конструктор: И.С. Богатырев
Конструктора: Е. Голованова, Е. Медведева
партнеры, заказчики, смежники
награды:
- Лауреат конкурса «Зодчество ВРН», направление «Проекты», Номинация «Объекты реставрации» в 2022 году
Реставрация с приспособлением под современное использование объекта культурного наследия регионального значения «Сборочная мастерская архитектурной фабрики «Русский Рено» под школу-детский сад на 450 мест»
Фотография © Пресс-служба ПИК / предоставлена НИиПИ Спецреставрация
Архи.ру об этом объекте:
Воспитание преемственностью
Объект культурного наследия на территории нового жилого комплекса часто воспринимается застройщиком как обременение. Хотя вполне может стать «продающей» и привлекающей внимание особенностью. Один из таких примеров реализован в петербургском ЖК «Кантемировский 11», где по проекту НИиПИ Спецреставрация фабрику начала XX века приспособили под школу и детский сад.
Описание предоставлено архитекторами В 2019 году ГК ПИК приобрела земельный участок для строительства жилого комплекса «Кантемировская, 11». Расположенный на его территории объект культурного наследия Сборочная мастерская автомобильной фабрики ... читать дальшеРеставрация с приспособлением под современное использование объекта культурного наследия регионального значения «Сборочная мастерская архитектурной фабрики «Русский Рено» под школу-детский сад на 450 мест»
Фотография © Пресс-служба ПИК / предоставлена НИиПИ Спецреставрация
история проекта:
В 2019 году ГК «ПИК» приобрела у АО «ОДК-Климов» земельный участок, на котором застройщик в дальнейшем построил жилой комплекс.
Для обеспечения социальной инфраструктурной жилого квартала, здание ОКН «Сборочная мастерская автомобильной фабрики «Русский Рено» предполагалось приспособить под детское образовательное учреждение – блок начальных классов на 300 человек и детский сад на 150 мест.
Предпроектные концептуальные проработки, а также комплексные научные исследования были начаты ООО «НИиПИ Спецреставрация» в 2020 году.
описание:
В 2019 году ГК «ПИК» приобрела земельный участок для строительства жилого комплекса.
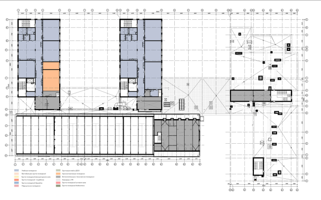
Принципиально учебный комплекс состоит из 4х объемов – здания ОКН, пристроенный с северного фасада новый объем школы (далее БНК), детский сад (ДДОУ) и одноэтажный пищеблок, который связывает здания школы и ДДОУ.
Пристраиваемый к зданию ОКН объем БНК имеет П-образную форму, а в части детского сада представляет собой вытянутый прямоугольный корпус. Торцами корпуса обращены в сторону жилого квартала. Такое расположение позволяет организовать двор-курдонер, где находится главный вход в школу.
Объемно-планировочные особенности здания ОКН позволили разместить в нем все зальные помещения, которые необходимы для функционирования школы: физкультурный зал, зал учебного бассейна, актовый зал, столовую и библиотеку.
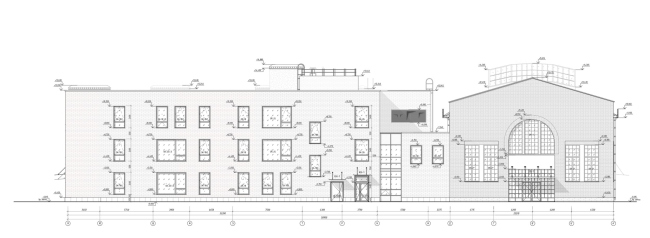
Фасады здания ОКН были полностью отреставрированы. Сохранен материал и характер отделки фасада – облицовочный кирпич в одну версту.
Проектом были раскрыты заложенные исторические воротные проемы.
Оконные заполнения замены на алюминиевые витражи, восстановлена историческая расстекловка – мелкая клетка. Существующим зенитным фонарям на кровле был возвращен их исторический внешний вид.
Фасады объема нового строительства, выходящие в сторону Большого Сампсониевского проспекта облицованы клинкерной плиткой терракотового оттенка, имеют прямой парапет и выступающий объем лестничной клетки на кровле. Внутренние фасады имеют аналогичную конфигурацию и облицованы клинкерной плиткой светлых оттенков. Такая облицовка обусловлена тем, что для соблюдения нормативных значений КЕО.
Примыкание двух объемов – здания Сборочной мастерской и возводимых корпусов школы выполнено нейтральным. Соединение происходит через фрагмент фасада, облицованный темно-серой клинкерной плиткой, а также витраж, который оттеняет краснокирпичный фасад памятника от нового объема.
В результате зданию Сборочной мастерской был возвращен его исторический архитектурный-облик промышленного здания начала XX века. Теперь оно несет образовательную функцию и стало местом притяжения жителей.