Описание предоставлено архитекторами
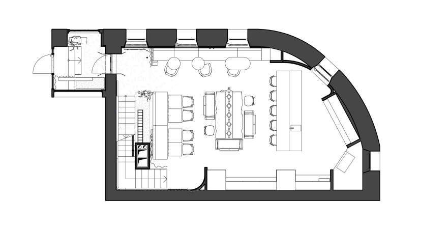
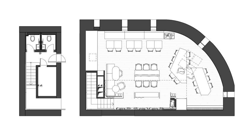
Ресторан площадью 290 м2 расположен в исторической части города Владимир, рядом с Золотыми воротами. Он занимает цокольный, первый и второй этажи здания 1787 года в западном крыле Торговых рядов, построенных по проекту Николая Фон Берка.
Ресторан русской кухни «Меряне»
Фотография © Дмитрий Суворов / предоставлена Raimer Bureau
Ресторан русской кухни «Меряне»
Фотография © Дмитрий Суворов / предоставлена Raimer Bureau
Название отсылает к мерянам – древнему языческому племени финно-угорской группы, проживавшему на территории нынешних Ярославской, Ивановской и Владимирской областей в середине I тысячелетия нашей эры. Название происходит от слова «мёри», что значит «человек». Исследователи отмечают, что меряне были последователями культа «синих камней», связанных с именем Укко, верховного божества грозы финской мифологии, имевшего прозвище «Синяя накидка» (Sinivitta).
Ресторан русской кухни «Меряне»
Фотография © Дмитрий Суворов / предоставлена Raimer Bureau
Видение архитекторов совпало с представлениями заказчика о мужественности и брутальности интерьера: декор и текстуры выражают силу и характер, а общий стиль агрессивно-лаконичен. Дизайн уводит за собой в путешествие по векам истории. Для этого архитекторы использовали множество материалов и приемов.
Ресторан русской кухни «Меряне»
Фотография © Дмитрий Суворов / предоставлена Raimer Bureau
В компактном вестибюле в тускло освещенном и плотно текстурированном пространстве гостей встречает стойка хостес, выполненная в виде нагромождения камней. Вековые валуны привезли с юга Урала и превратили в объект-аллюзию на древнюю ловушку на зверя. Каждый камень имеет свою роль: один служит приманкой, другой – крышкой ловушки, перевязанный джутом.
Ресторан русской кухни «Меряне»
Фотография © Дмитрий Суворов / предоставлена Raimer Bureau
На первом этаже удалось разместить основной зал с контактной барной зоной и открытой кухней. В результате процесс приготовления пищи превратился в одну из главных достопримечательностей ресторана. На втором этаже царит более камерная и располагающая для отдыха и общения атмосфера. Различные варианты посадки – у барной стойки, в диванных зонах, скамьях, на комфортных креслах и вокруг большого коммунального стола – обеспечивают вместительность 64 посетителей на обоих этажах. На цокольном этаже расположена зона основного цеха кухни и санузлы.
Ресторан русской кухни «Меряне»
Фотография © Дмитрий Суворов / предоставлена Raimer Bureau
Ресторан русской кухни «Меряне»
Фотография © Дмитрий Суворов / предоставлена Raimer Bureau
Пространство ресторана напоминает дом, в котором жило не одно поколение людей. Прежде всего в глаза бросается отсылка к хижине: авторы сохранили дубовые балки на потолке и дополнили их резными досками, чем-то схожими с наличниками русских изб.
Ресторан русской кухни «Меряне»
Фотография © Дмитрий Суворов / предоставлена Raimer Bureau
В проекте используются два вида штукатурки. Более фактурная, напоминающая глину с природным землистым оттенком, заполняет пространство между балками и на некоторых перегородках. Стены покрывает более спокойная и светлая текстура мазанки.
Ресторан русской кухни «Меряне»
Фотография © Дмитрий Суворов / предоставлена Raimer Bureau
Ресторан русской кухни «Меряне»
Фотография © Дмитрий Суворов / предоставлена Raimer Bureau
Барный остров привлекает внимание гостей благодаря контрастным материалам: нержавеющей стали, бетону и природным элементам. Коллекция алкоголя располагается на самом видном месте и красиво подсвечивается, а нержавеющая сталь отражает все цвета, оттенки и текстуры. Часть стойки, за которой сидят гости, состоит из разноцветных слоев бетона, напоминающих срез земли, что также является отсылкой к археологии и раскопкам. На столешнице выбиты послания – руны. По такому же принципу исполнены столы, напоминающих первобытную мебель в пещере.
Ресторан русской кухни «Меряне»
Фотография © Дмитрий Суворов / предоставлена Raimer Bureau
Большинство решений по мебели, освещению и декору были разработаны специально для заведения. Например, все изделия из нержавеющей стали или барный остров изготовлены по дизайну Raimer Bureau. Освещением занималась компания Aledo. Для удобства официантов в ресторане появились лифты для подачи еды.
Ресторан русской кухни «Меряне»
Фотография © Дмитрий Суворов / предоставлена Raimer Bureau

