|
В Мангейме началось строительство Форума «Немецкий язык» по проекту бюро HENN: он соединит в себе музей, исследовательский и культурный центр.
Конкурс на проект Форума прошел еще в 2021, но до строительства дело дошло лишь сейчас. Здание возводят для Института немецкого языка имени Лейбница, а заказчиком и инвестором выступает благотворительный фонд Klaus Tschira Stiftung. Открытие запланировано на 2028.

Форум расположится на площади Альтер-Мессплац, в районе Неккарштадт – через реку Неккар от центра Мангейма. Постройка будет одновременно ориентирована на площадь (с ее стороны появится доступная публике зона для пикников) и на воду, тем более что зеленая полоса вдоль реки сейчас благоустраивается. Так, именно на Неккар будет обращено остекленное пространство первого этажа для временных выставок, литературных чтений и «научных слэмов».

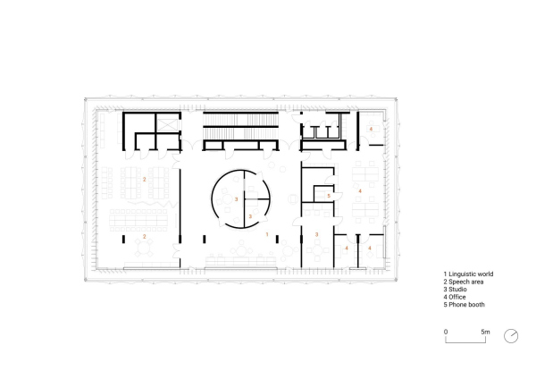
Выше запланированы три этажа постоянной экспозиции, которой займутся известные специалисты по выставочному дизайну Atelier Brückner. Посетители будут подниматься на лифте на четвертый этаж, а затем спускаться вниз, осматривая экспонаты. Бетонную конструкцию здания планируется открыть в интерьер: она разграничит зоны экспозиции, обозначенные как «языковые миры». Темами станут разнообразие немецкого, его трансформации и взаимоотношения с другими языками, лингвистические технологии, социальные аспекты его существования.

Кабинеты исследователей и администрации займут пространства на экспозиционных этажах, а самым верхним уровнем станет терраса на крыше, открытая для сотрудников и посетителей. Там также разместятся инженерные системы и солнечные батареи.

Снаружи здание закроют деревянные детали: панели и стоечно-балочная система, скрытая за жалюзи. Их в свою очередь защитит от воздействия атмосферы слой из прозрачной полимерной пленки ETFE (модули 6,3×8,1 м): остекления выше первого этажа в Форуме не будет.
Форум «Немецкий язык»© HENN
Форум «Немецкий язык»© HENN
Форум «Немецкий язык»© HENN
Форум «Немецкий язык»© HENN
Форум «Немецкий язык»© HENN
Форум «Немецкий язык»© HENNФорум «Немецкий язык»© HENNФорум «Немецкий язык». Вид экспозиции© ATELIER BRÜCKNER. Предоставлено Forum Deutsche SpracheФорум «Немецкий язык». Вид экспозиции© ATELIER BRÜCKNER. Предоставлено Forum Deutsche SpracheФорум «Немецкий язык». Вид экспозиции© ATELIER BRÜCKNERФорум «Немецкий язык»© HENN
Форум «Немецкий язык»© HENN
Форум «Немецкий язык»© HENN/ATELIER BRÜCKNERФорум «Немецкий язык»© HENN/ATELIER BRÜCKNERФорум «Немецкий язык»© HENN/ATELIER BRÜCKNERФорум «Немецкий язык»© HENN/ATELIER BRÜCKNERФорум «Немецкий язык»© HENN/ATELIER BRÜCKNER
|