RSS
Гостевой дом «Чуньли»
Фото © Hu Siyuan

Гостевой дом «Чуньли»


/ Chunli Guesthouse

информация:

TEAM_BLDG / Китай
Гостевой дом «Чуньли»
Фото © Hu Siyuan

Архи.ру об этом объекте:

27.01.2026

Нина Фролова. Симбиоз с рисовым полем

Гостевой дом на окраине Шанхая по проекту местного бюро TEAM_BLDG – гибкая реконструкция двух «самовольных» жилых построек.

читать дальше
Гостевой дом «Чуньли»
Фото © Hu Siyuan
Гостевой дом «Чуньли»
Фото © Hu Siyuan
Гостевой дом «Чуньли»
Фото © Hu Siyuan
Гостевой дом «Чуньли»
Фото © Hu Siyuan
Гостевой дом «Чуньли»
Фото © Hu Siyuan
Гостевой дом «Чуньли»
Фото © Hu Siyuan
Гостевой дом «Чуньли»
Фото © Hu Siyuan
Гостевой дом «Чуньли»
Фото © Hu Siyuan
Гостевой дом «Чуньли»
Фото © Hu Siyuan
Гостевой дом «Чуньли»
Фото © Hu Siyuan
Гостевой дом «Чуньли»
Фото © Hu Siyuan
Гостевой дом «Чуньли»
Фото © Hu Siyuan
Гостевой дом «Чуньли»
Фото © Hu Siyuan
Гостевой дом «Чуньли»
Фото © Hu Siyuan
Гостевой дом «Чуньли»
Фото © Hu Siyuan
Гостевой дом «Чуньли»
Фото © Hu Siyuan
Гостевой дом «Чуньли»
Фото © Hu Siyuan
Гостевой дом «Чуньли»
Фото © Hu Siyuan
Гостевой дом «Чуньли»
Фото © Hu Siyuan
Гостевой дом «Чуньли»
Фото © Hu Siyuan
Гостевой дом «Чуньли»
Фото © Hu Siyuan
Гостевой дом «Чуньли»
Фото © Hu Siyuan
Гостевой дом «Чуньли»
Фото © Hu Siyuan
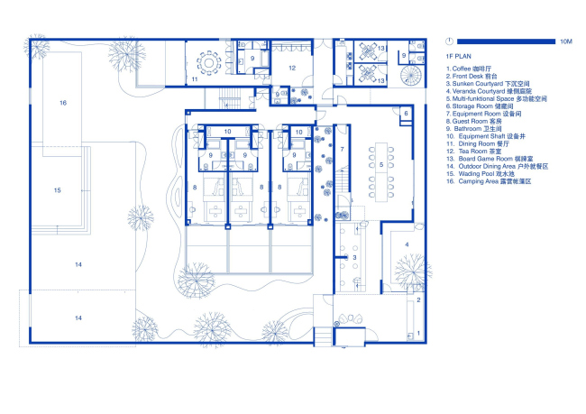
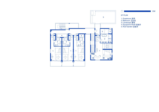
Гостевой дом «Чуньли»
© TEAM_BLDG
Гостевой дом «Чуньли»
© TEAM_BLDG
Гостевой дом «Чуньли»
© TEAM_BLDG
Гостевой дом «Чуньли»
© TEAM_BLDG
Гостевой дом «Чуньли»
© TEAM_BLDG
Гостевой дом «Чуньли»
© TEAM_BLDG
Гостевой дом «Чуньли»
© TEAM_BLDG
Гостевой дом «Чуньли»
© TEAM_BLDG
Гостевой дом «Чуньли»
© TEAM_BLDG

Избранные архитекторы:

  • Рем Колхас
  • Петер Цумтор
  • Норман Фостер
  • Алвару Сиза
  • Рафаэль Монео
  • Хельмут Ян
  • Николас Гримшо
  • Эдуарду Соту де Мора
  • Стивен Холл

Проект из каталога (случайный выбор)

План комплекса ЭКСПО-2015
Стефано Боэри, Уильям МакДонах, 2009
План комплекса ЭКСПО-2015

Избранные постройки:

  • Музей Второй мировой войны
  • Жилой комплекс Sky Habitat
  • Библиотека Университета искусств Тама
  • Центр культуры и конгрессов
  • Капелла Св. Игнатия в Университете Сиэтла
  • Корпус MBA Школы менеджмента HEC
  • Музей современного искусства и градостроительная выставка – MOCAPE
  • Институт арабского мира
  • Комплекс Riverside

Зарубежные новости