|
Гостевой дом на окраине Шанхая по проекту местного бюро TEAM_BLDG – гибкая реконструкция двух «самовольных» жилых построек.
Гостевой дом «Чуньли» находится в «древнем городе Синьчан», поселении, основанном в VII веке, а сейчас ставшем частью шанхайского округа Пудун. Здесь, помимо прочего, сохранились рисовые поля и малоэтажная, сельская по типу застройка, включавшая участок с двумя отдельными домами, построенными без официального разрешения.

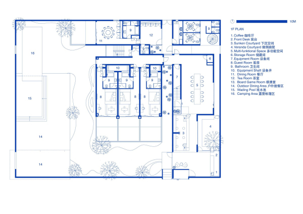
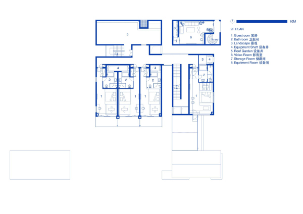
Заказчик приобрел эти два «самостроя» с целью легализовать, превратив в гостевой дом. Он задал архитекторам TEAM_BLDG широкие рамки – ему были лишь нужны 11 номеров и другие полезные пространства типа банкетного зала и комнаты для игры в маджонг.

В результате авторы проекта сфокусировались на эстетической стороне дела – создании цельного пространства в «симбиозе» с окружающими полями – не забыв о прагматике: потенциальном дефиците бюджета, неожиданных требованиях чиновников при согласовании и недостатке квалифицированных строителей. Поэтому существовавшие на участке постройки были максимально сохранены, включая дополнительные сооружения, например, небольшой подсобный домик со стороны улицы и ограду по периметру.

В три угла прямоугольного участка были добавлены объемы-соединители: вестибюль, павильон и банкетный зал. По идее архитекторов, они также уточняют границы между приватными и общественными зонами.

Среди «экономических» решений – широкое использование встроенной мебели и максимальное упрощение проекта, позволившее привлечь местных строителей с традиционными приемами работы. Гостевой дом «Чуньли»Фото © Hu Siyuan
Гостевой дом «Чуньли»Фото © Hu Siyuan
Гостевой дом «Чуньли»Фото © Hu Siyuan
Гостевой дом «Чуньли»Фото © Hu SiyuanГостевой дом «Чуньли»Фото © Hu SiyuanГостевой дом «Чуньли»Фото © Hu SiyuanГостевой дом «Чуньли»Фото © Hu SiyuanГостевой дом «Чуньли»Фото © Hu SiyuanГостевой дом «Чуньли»Фото © Hu SiyuanГостевой дом «Чуньли»Фото © Hu SiyuanГостевой дом «Чуньли»Фото © Hu SiyuanГостевой дом «Чуньли»Фото © Hu Siyuan
Гостевой дом «Чуньли»Фото © Hu Siyuan
Гостевой дом «Чуньли»Фото © Hu SiyuanГостевой дом «Чуньли»Фото © Hu SiyuanГостевой дом «Чуньли»Фото © Hu SiyuanГостевой дом «Чуньли»Фото © Hu SiyuanГостевой дом «Чуньли»Фото © Hu SiyuanГостевой дом «Чуньли»Фото © Hu SiyuanГостевой дом «Чуньли»Фото © Hu SiyuanГостевой дом «Чуньли»Фото © Hu SiyuanГостевой дом «Чуньли»Фото © Hu SiyuanГостевой дом «Чуньли»Фото © Hu SiyuanГостевой дом «Чуньли»Фото © Hu SiyuanГостевой дом «Чуньли»Фото © Hu SiyuanГостевой дом «Чуньли»© TEAM_BLDGГостевой дом «Чуньли»© TEAM_BLDGГостевой дом «Чуньли»© TEAM_BLDGГостевой дом «Чуньли»© TEAM_BLDGГостевой дом «Чуньли»© TEAM_BLDGГостевой дом «Чуньли»© TEAM_BLDGГостевой дом «Чуньли»© TEAM_BLDGГостевой дом «Чуньли»© TEAM_BLDGГостевой дом «Чуньли»© TEAM_BLDG
|