Предлагаем познакомиться с проектом, взявшим главный приз, и другими финалистами.
Интерьер года
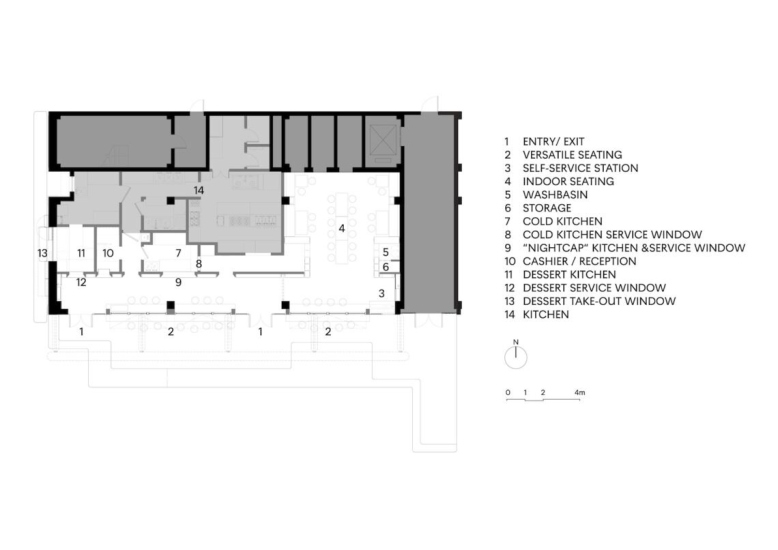
Бар Pang Mei Noodle Bar LFS в Пекине, КитайМастерская OFFICE AIO
Пекинское бистро Pang Mei Noodle Bar расположено в центральной части города, в паре километров от Запретного города, на первом этаже бизнес-центра. Это уже третье заведение сети, дизайн которого разработало новозеландское бюро Office AIO.
Bars and Restaurants: Pang Mei Noodle Bar LFS, Пекин, Китай.
Мастерская: OFFICE AIO
Photo by © Wen Studio / предоставлено WAF
Учитывая высокую проходимость района, бистро выбрало гибридную концепцию: в течение дня меняется и меню, и формат обслуживания. Архитекторы Office AIO предложили пространственные решения, которые поддерживают гибкий подход, упрощают технологию обслуживания и, соответственно, влияют на успешность экономической модели.
Bars and Restaurants: Pang Mei Noodle Bar LFS, Пекин, Китай.
Мастерская: OFFICE AIO
© OFFICE AIO / предоставлено WAF
Во время завтрака работает только окно выдачи для заказов навынос. В промежутках между обедом и ужином открыта наиболее оживленная линейная зона вдоль фасада, где можно выбрать напиток, десерт и легкую закуску.
Ключевой элемент этого пограничного пространства – длинный стол, за который можно присесть как со стороны улицы, наблюдая за суетой кухни, так и со стороны окошек выдачи, рассматривая оживленную площадь. Стена, отгораживающая помещения кухни, создает внутреннюю улицу, и стол таким образом превращается в обособленный остров. Все это добавляет расслабленности и располагает к общению – с другом, коллегой или случайным соседом.
Bars and Restaurants: Pang Mei Noodle Bar LFS, Пекин, Китай.
Мастерская: OFFICE AIO
Photo by © Wen Studio / предоставлено WAF
К обеду и ужину – в самые загруженные часы – открываются рольставни, за которыми спрятан еще один зал с более классической посадкой.
Пространство бистро предельно функционально и минималистично, но при этом обладает харизмой. Самоиронии добавляет козырек с «пухлыми» конструкциями из нержавеющей стали, а также «бревенчатые» стены – это не только аллюзия на фирменное блюдо, но и звукопоглощающий элемент.
Bars and Restaurants: Pang Mei Noodle Bar LFS, Пекин, Китай.
Мастерская: OFFICE AIO
Photo by © Wen Studio / предоставлено WAF
Победители категорий
Рабочее место (большое)
CSL Global Headquarters and Centre for Research & Development / COX ArchitectureМельбурн, Австралия
Workplace (Large): CSL Global Headquarters and Centre for Research & Development, Мельбурн, Австралия.
Мастерская COX Architecture
Photo by © Peter Clarke / предоставлено WAF
Рабочее место (небольшое)
Penn Color Technology Center / DP DesignСингапур
Workplace (Small): Penn Color Technology Center, Сингапур.
Мастерская DP Design
Photo by © Mazterz, Courtesy of DP Design / предоставлено WAF
Отель
Fasano Itaim / Studio mk27Сан-Паулу, Бразилия
Hotels: Fasano Itaim, Сан-Паулу, Бразилия.
Мастерская Studio mk27
Photo by © Fran Parente / предоставлено WAF
Общественное здание
Embassy of Australia / Bates SmartВашингтон, США
Public Buildings: Embassy of Australia, Washington D.C., Вашингтон, США.
Мастерская: Bates Smart
Photo by © Joe Fletcher / предоставлено WAF
Интерьер дома
twentyfour / 3DM ArchitectureРабат, Мальта
Residential: twentyfour, Рабат, Мальта.
Мастерская: 3DM Architecture
Photo by © Matthew Farrugia / предоставлено WAF
Торговля
Fender Flagship Tokyo / Klein Dytham architectureТокио, Япония
Retail: Fender Flagship Tokyo, Токио, Япония.
Мастерская: Klein Dytham architecture
Photo by © Nacása & Partners / предоставлено WAF
Образование
WSU Bankstown City Campus / HDRБанкстаун, Австралия
Education: WSU Bankstown City Campus, Банкстаун, Австралия.
Мастерская: HDR
Photo by © Ela Glogowska / предоставлено WAF
Бары и рестораны
Pang Mei Noodle Bar LFS / OFFICE AIOПекин, Китай
Bars and Restaurants: Pang Mei Noodle Bar LFS, Пекин, Китай.
Мастерская: OFFICE AIO
Photo by © Wen Studio / предоставлено WAF
Временное использование
Backpack Housing / HKU and SuperpositionГонконг
Temporary/Meanwhile uses: Backpack Housing, Гонконг.
Мастерская: HKU/ Superposition
Photo by © Donn Holohan, Xu Liang Leon / предоставлено WAF
