Описание предоставлено архитекторами
Первостепенная задача пространства – стереть классическую модель взаимодействия внутри бизнес-центра, сохранив открытость и взаимовыгодный нетворкинг.
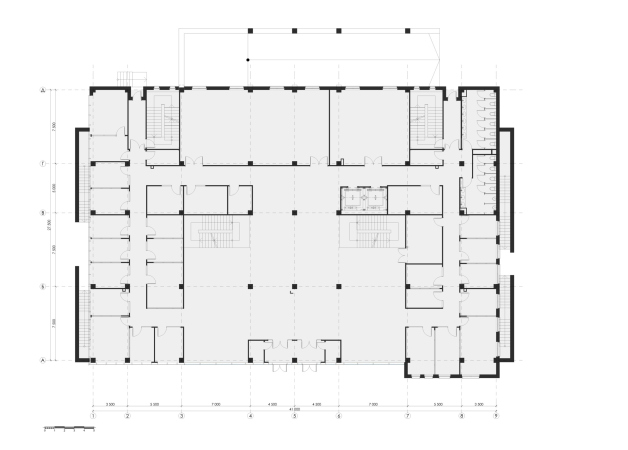
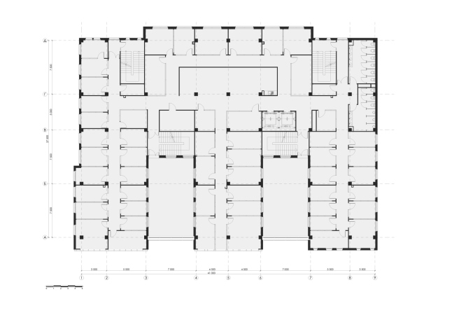
Для здания выбрана форма буквы «Ш», но оно не обладает строгим разделением по зонам. Это позволяет резидентам чувствовать принадлежность к сообществу, а работа в синергии только мотивирует. Общая площадь пяти этажей – 6000 м². Из них половина отведена под офисные помещения закрытого типа, а другая – под open space и внутреннюю логистику. Каждый этаж отличается по функционалу, объему и дизайну: первый этаж символизирует воду, второй – землю, третий – лес, а четвертый и пятый этажи – небо. Внутренние входные группы смещены ближе к центру для быстрой вертикальной и горизонтальной логистики.
Креативный хаб ololoPlanet
Фотография © Алексей Чеботарь / предоставлена Tsarik Architecture
Креативный хаб ololoPlanet
Фотография © Алексей Чеботарь / предоставлена Tsarik Architecture







