Описание предоставлено архитекторами
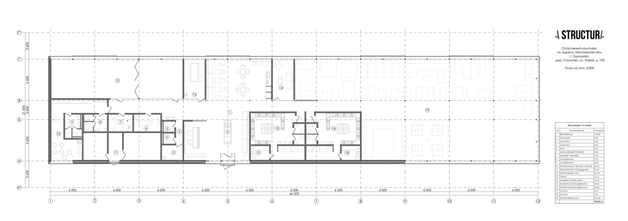
Фитнес-клуб площадью 1000 м2 располагается недалеко от Школы управления Сколково и обращен в сторону долины реки Сетунь. Комфортное пространство становится продолжением природного окружения и отражает отношение к спортивным нагрузкам как к необходимому компоненту гармоничного образа жизни.
Фитнес-клуб в Сколково / The Rink Fitness
                Фотография © Сергей Моргунов / предоставлена A-STRUCTURA
        Примерно треть фасада обшита термообработанной елью – за ней прячутся служебные и технические помещения. Остальная часть преимущественно стеклянная. В теплую погоду порталы четырехметровой высоты раздвигаются, чтобы стереть границу между спортивным залом и улицей и создать ощущение тренировки на свежем воздухе. Свесы кровли с диодной подсветкой защищают помещения и террасы от яркого солнца. Покрытие террас выполнено из лиственницы.
Фитнес-клуб в Сколково / The Rink Fitness
                Фотография © Сергей Моргунов / предоставлена A-STRUCTURA
        Фитнес-клуб в Сколково / The Rink Fitness
                Фотография © Сергей Моргунов / предоставлена A-STRUCTURA
        Фитнес-клуб в Сколково / The Rink Fitness. Зал для йоги
                Фотография © Сергей Моргунов / предоставлена A-STRUCTURA
        Фитнес-клуб в Сколково / The Rink Fitness. Терраса
                Фотография © Сергей Моргунов / предоставлена A-STRUCTURA
        Фитнес-клуб в Сколково / The Rink Fitness. Терраса
                Фотография © Сергей Моргунов / предоставлена A-STRUCTURA
        Конструктив здания сочетает балки из клееной древесины хвойных пород, металлические, деревянные, а также бетонные элементы каркаса. Инверсионная кровля засыпана белой галькой. Чтобы избежать осадки здания, расположенного в бывшей пойме реки, при организации фундамента столь длинного и узкого здания пришлось заместить 6 000 м3 грунта.
Фитнес-клуб в Сколково / The Rink Fitness
                Фотография © Сергей Моргунов / предоставлена A-STRUCTURA
        Фитнес-клуб в Сколково / The Rink Fitness
                Фотография © Сергей Моргунов / предоставлена A-STRUCTURA
        Фитнес-клуб в Сколково / The Rink Fitness
                Фотография © Сергей Моргунов / предоставлена A-STRUCTURA
        Фитнес-клуб включает большой тренажерный зал, зал для йоги и групповых занятий, кабинет психолога, массажный кабинет, раздевалки с саунами и душевыми, тренерские, служебные и технические помещения. В просторной зоне ресепшен клиенты могут отдохнуть после тренировки, выпить любимый напиток или купить спортивное питание.
Фитнес-клуб в Сколково / The Rink Fitness. Вестибюль
                Фотография © Сергей Моргунов / предоставлена A-STRUCTURA
        Внутреннее пространство изобилует природными материалами, поэтому здесь по-домашнему уютно. В то же время выдержанный стиль позволяет концентрироваться и достигать максимальных результатов на тренировках. Чтобы сохранить единообразность интерьера, мебель, к примеру – в зоне раздевалок, также выполнена из дуба. Вся мебель, как и шпонированные дубом панели отделки стен, выпущены в цехах A-STRUCTURA.
Напольное покрытие в зоне тренажеров, кроссфита, беговых дорожек и зала йоги отличается. В мокрых зонах стены облицованы крупноформатной керамикой. Полы в ресепшен – керамогранит.
Здание обеспечено полным комплексом инженерных систем, многие – с двойным резервированием. Специалисты A-STRUCTURA интегрировали в здание множество инженерных систем, решающих большой спектр задач: от подготовки воздуха и воды до управления музыкой и светом в разных зонах здания. Инженерия в спортивных залах проложена открыто, в окрашенных лотках и воздуховодах. Панорамное остекление обдувается внутрипольными конвекторами с принудительной конвекцией.
            
            
        
                                                                                
                            