Описание предоставлено архитекторами
Дача рассчитана на семью из четырех человек и всесезонную эксплуатацию. Учитывая минимальный бюджет, архитекторы предложили один из самых доступных конструктивных вариантов – деревянный каркасный дом на винтовых сваях.
ДачаHouse
Фотография © DK architects
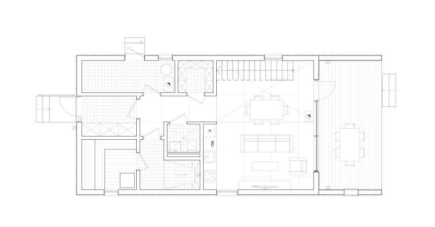
Как и сам участок правильной прямоугольной формы, дом ориентирован по оси север-юг. На юг обращены столовая и гостиная, защищенные от перегрева и просматриваемости со стороны соседних участков кровлей и стеной террасы. Вход располагается с северной стороны.
Облицовка фасадов выполнена из сосновой доски 100 х 25 мм, покрытой тонированным в серый цвет маслом. Окна – ПВХ. Входная дверь и витраж гостиной – алюминиевые.
ДачаHouse
Фотография © DK architects
ДачаHouse
Фотография © DK architects
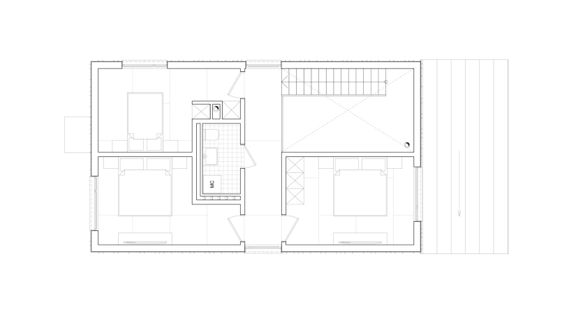
В доме три спальни, гостиная-столовая, ванная комната с сауной, терраса. Для внутренней обшивки стен, потолка и пола использовалась березовая фанера, которая одновременно стала внутренним слоем конструкции и отделкой. Это также позволило сократить бюджет строительства. Перегородки, не связанные с несущей конструкцией, выполнены из гипсокартонных листов. В качестве утеплителя использовалась минеральная вата толщиной 200 мм.
Из-за ограниченных финансовых возможностей владельцев дом продолжает достраиваться: пока что нет входной лестницы и навеса над входом из консольного матового стекла, ждут своего часа навес для машины и благоустройство участка.
ДачаHouse
Фотография © DK architects
