Описание предоставлено архитекторами
Здание детского сада, расположенное в просторном зеленом квартале, было возведено для детей работников Наркомата обороны СССР в 1935 году по индивидуальному проекту в духе «советского ар-деко», сочетающего конструктивизм и сталинскую неоклассику. С 2010-х годов здание, защищенное статусом выявленного объекта культурного наследия, пустует. Большинство прилегающих к участку пятиэтажных домов включены в городскую программу реновации.
Концепция бюро «МетроПолис» предусматривает реставрацию и приспособление детского сада для современного использования. Исторический капитальный объем, возведенный из шлакоблоков и кирпича, дополнит группа помещений из легковозводимых деревоклееных конструкций.
Школа со слониками
© МетроПолис
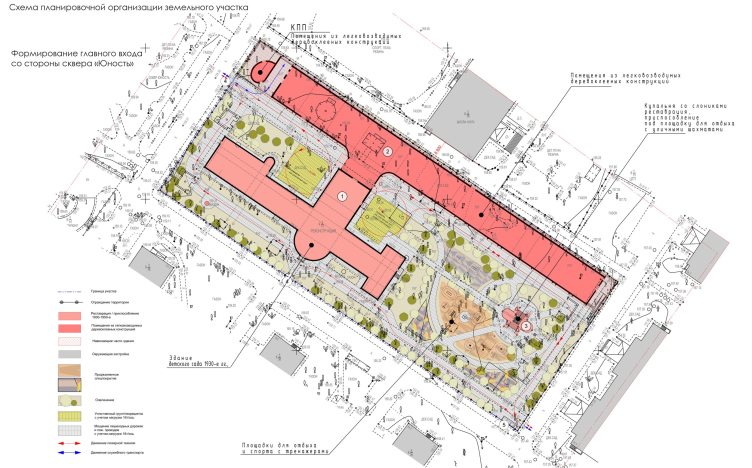
Школа со слониками. Схема планировочной организации земельного участка
© МетроПолис
Школа со слониками. Фасады
© МетроПолис
Школа со слониками. Фасады
© МетроПолис
Большой навес – главный вход на территорию, перекликается с историческими архитектурными элементами. Он открыт в сторону сквера «Юность» и рассчитан на родителей, ожидающих своих детей после школы, а также посетителей сквера.
Школа со слониками. Главный вход
© МетроПолис
Ритмичный фасад со стороны городской начальной школы №1874 с графичными панно на цветном стемалите, выполняет в том числе роль ограждения участка. Изображения памятников конструктивизма подчеркивают историю объекта и оживляют протяженный стеклянный фасад.
Школа со слониками
© МетроПолис
Благодаря своей длине и стыковке с существующими помещениями стеклянно-деревянный объем делит участок на две функциональные зоны. Основа первой – главный вход с большой площадкой для сбора учащихся. Вторая – озелененная территория с дорожками, площадками для спорта и отдыха, центром которой является историческая купальня со слониками.
Школа со слониками. Внутренний двор
© МетроПолис
Школа со слониками. Ситуационный план
© МетроПолис
Озелененная кровля одноэтажной части является продолжением рисунка генплана. Участок выглядит ровным, но тем не менее есть существенное понижение рельефа в восточном направлении, что позволяет организовать необходимую высоту спортзала и интересно решить внутреннее пространство рекреации.
Школа со слониками. Вестибюль
© МетроПолис
В здании располагаются помещения для организации полноценного учебного процесса старшей школы на 220 мест. Максимально приспосабливаются для современного использования все этажи исторического здания, включая мансардный (в настоящее время не эксплуатируется, несмотря на значительную высоту). Для освещения помещений в скатной кровле организуются мансардные окна.
Учитывая эксплуатационную многофункциональность объекта, в концепции уделено значительное внимание рекреационным зонам, связывающим все планировочные блоки в единое целое и создающим комфортное пространство для пребывания и перемещения учащихся. Концепцией предусмотрено бережное сохранение и воссоздание исторических элементов интерьера: декора потолков, включая пятиконечную звезду в центре зала второго этажа, двух лестниц, дверей и окон.
Школа со слониками. Рекреация
© МетроПолис
Школа со слониками. Библиотека
© МетроПолис
Школа со слониками. Классная комната
© МетроПолис
