Описание предоставлено архитекторами
Дом расположен в Подмосковье на компактном участке сложной формы. Это стало вызовом проекта и во многом определило облик будущего здания. Архитектурные решения основаны на видовых характеристиках, различных сценариях инсоляции, простой и функциональной логике планировки пространств.
Первый этаж визуально проницаем и открыт, в отделке фасада используются стекло и сатинированная нержавеющая сталь, позволяющие растворить его в окружающем ландшафте и наполнить отраженным светом сад.
Второй этаж смещен и повернут относительно первого, это позволило обеспечить лучшую освещенность северной части участка, увеличить площадь дома, не загромождая территорию вокруг, и создать защищенную от осадков террасу. Для создания эффекта легкости и невесомости несущие колонны были выполнены из нержавеющей стали и интегрированы в плоскость монолитной плиты второго этажа. Благодаря этому объем второго этажа как бы парит над участком, в качестве материалов используются дерево и фибробетон.
Взаимосвязь внешнего и внутреннего пространства в этом доме осуществляется не только через открытые террасы и раздвижные оконные конструкции, но и благодаря использованию созвучных материалов. На первом этаже напротив входа установлено динамичное зеркальное панно с хром-эффектом, визуально продолжающее идею нематериальности фасада. Панно произведено методом цифрового роботизированного производства по трехмерной модели, основой которой является поверхность, сгенерированная многократно повторяющейся синусоидой.
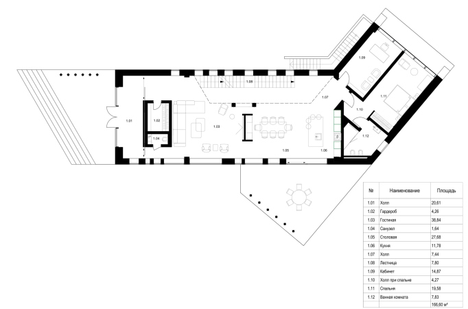
Внутренние пространства дома связаны между собой многосветным лестничным холлом со скульптурной консольной лестницей из сверхвысокопрочного бетона. Сложный проект лестницы с вариативной толщиной ступеней от 5 до 8 сантиметров был разработан специально для этого дома.
В мастер-спальне второго этажа используется панно из массива ореха, перекликаясь с концепцией фасадного оформления и подчеркивая ощущение уюта и уникальности декора, совмещающего в себе авторское видение, глубокое понимание материалов и высокотехнологичные методы его производства.





