Описание предоставлено архитекторами
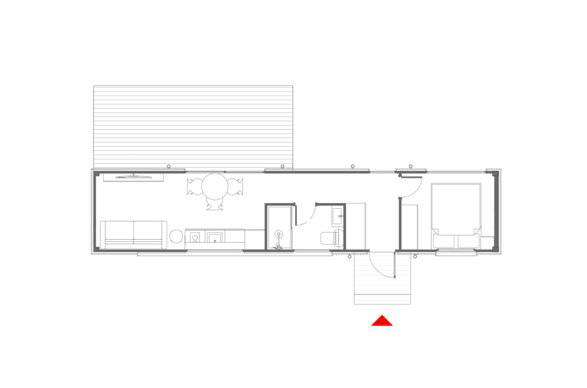
Заказчики обратились к бюро Марины Пигловой за разработкой линейки мини-домов на базе 40-футового морского контейнера, который используется в качестве каркаса. В доме есть все для круглогодичного проживания одного-двух человек: прихожая, ванная комната, спальня и кухня-гостиная с выходом на террасу. Дом и основная мебель полностью собираются на производстве и транспортируются на участок.
Valley Shelter / Дом на равнине
© Piglova architects
В отделке фасада используется планкен из натуральной древесины с металлическими поясами и вставками из металла. У дома есть как более «закрытый» фасад с небольшими окнами, так и «открытый» с панорамными окнами, обращенный во внутренний двор или на красивый вид. По мнению авторов, дизайн дома легко впишется в любой ландшафт, но особенно хорош он на равнинных пейзажах – среди виноградников, в садах с фруктовыми деревьями, в поле с колосьями пшеницы.

