RSS
Храм во имя благоразумного Разбойника Раха и духовно-просветительский центр штрафных воинских частей
@ Архитектурная мастерская М119

Храм во имя благоразумного Разбойника Раха и духовно-просветительский центр штрафных воинских частей

информация:

  • статус
    проект
  • даты
    20222023 / 2025
  • region= area= address=Пересечение Дунайского и Витебского проспектов country_t=Россия city_t=Санкт-Петербург
    место
    Санкт-Петербург Пересечение Дунайского и Витебского проспектов
  • координаты
    59.833717, 30.372500
  • функция
    Культовый / Храмовый комплекс
  • теги
    send.project
  • площадь застройки
    494 м2
  • общая площадь
    2 056 м2
  • высота
    24,55
Россия

авторский коллектив

Руководитель проекта – М.В. Бабаев; архитекторы – М.В. Бабаев, И.А. Пушкин; художник -Н.В. Могилевцев

партнеры, заказчики, смежники

Заказчик - ПМРО Приход Храма во имя благоразумного разбойника Раха в Московском

награды:

    Серебряный знак в номинации «Проекты» смотра-конкурса «Храмовая архитектура» на Международном архитектурном фестивале «Зодчество 2023».

    Победитель международной премии «Золотой Трезини» в 2025 году в номинации «Premio del Pubblico», как лучший архитектурный проект, выполненный в технике ручной графики.
Храм во имя благоразумного Разбойника Раха и духовно-просветительский центр штрафных воинских частей
@ Архитектурная мастерская М119
Храм во имя благоразумного Разбойника Раха и духовно-просветительский центр штрафных воинских частей
@ Архитектурная мастерская М119

история проекта:

Идея
Проект зародился как уникальная инициатива православного предпринимателя Сергея Кулаева и общины ветеранов внутренних войск. В основу легла редкая для России концепция: создание первого храма во имя святого Раха – разбойника, который первым вошел в рай через покаяние. Проект задуман не просто как культовое сооружение, а как духовно-просветительский центр, посвященный памяти бойцов штрафных воинских частей, искупивших вину на фронте.
 
Освоение участка
История площадки на пересечении Витебского и Дунайского проспектов началась в ноябре 2019 года, когда город выделил землю под строительство. Точкой отсчета стал август 2020 года – установка Поклонного креста обозначила границы будущего комплекса. Чтобы жизнь прихода началась еще до возведения основного здания, в 2021 году был оперативно построен и освящен малый временный храм во имя святого князя Владимира, где сегодня и проходят службы.
 
Архитектурное решение и поиск образа
Разработку облика основного храма доверили ООО «Архитектурная мастерская М119» под руководством Михаэля Бабаева. В процессе проектирования были представлены различные эскизы и концепции будущего здания. В ходе этой работы по выбору архитектурного облика авторы пришли к решению создать храмовый комплекс в строгих традициях северо-западной школы.
 
Текущий статус
В январе 2025 года проект перешел в активную фазу – было получено официальное разрешение на строительство. Сейчас все ресурсы сосредоточены на возведении основного здания. Будущий храмовый комплекс станет важной архитектурной и духовной доминантой Московского района, символизируя надежду на преображение и второй шанс для каждого.

описание:

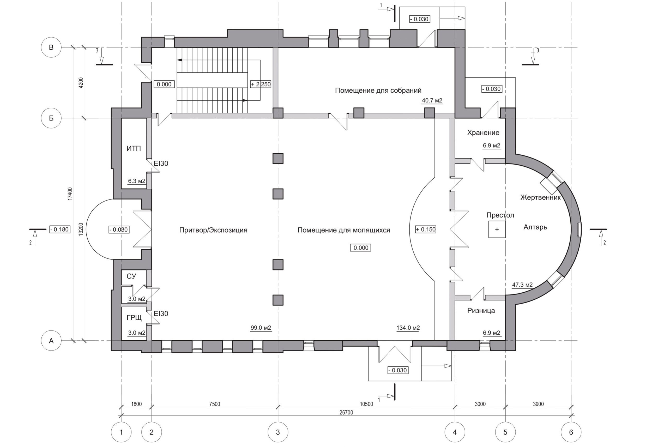
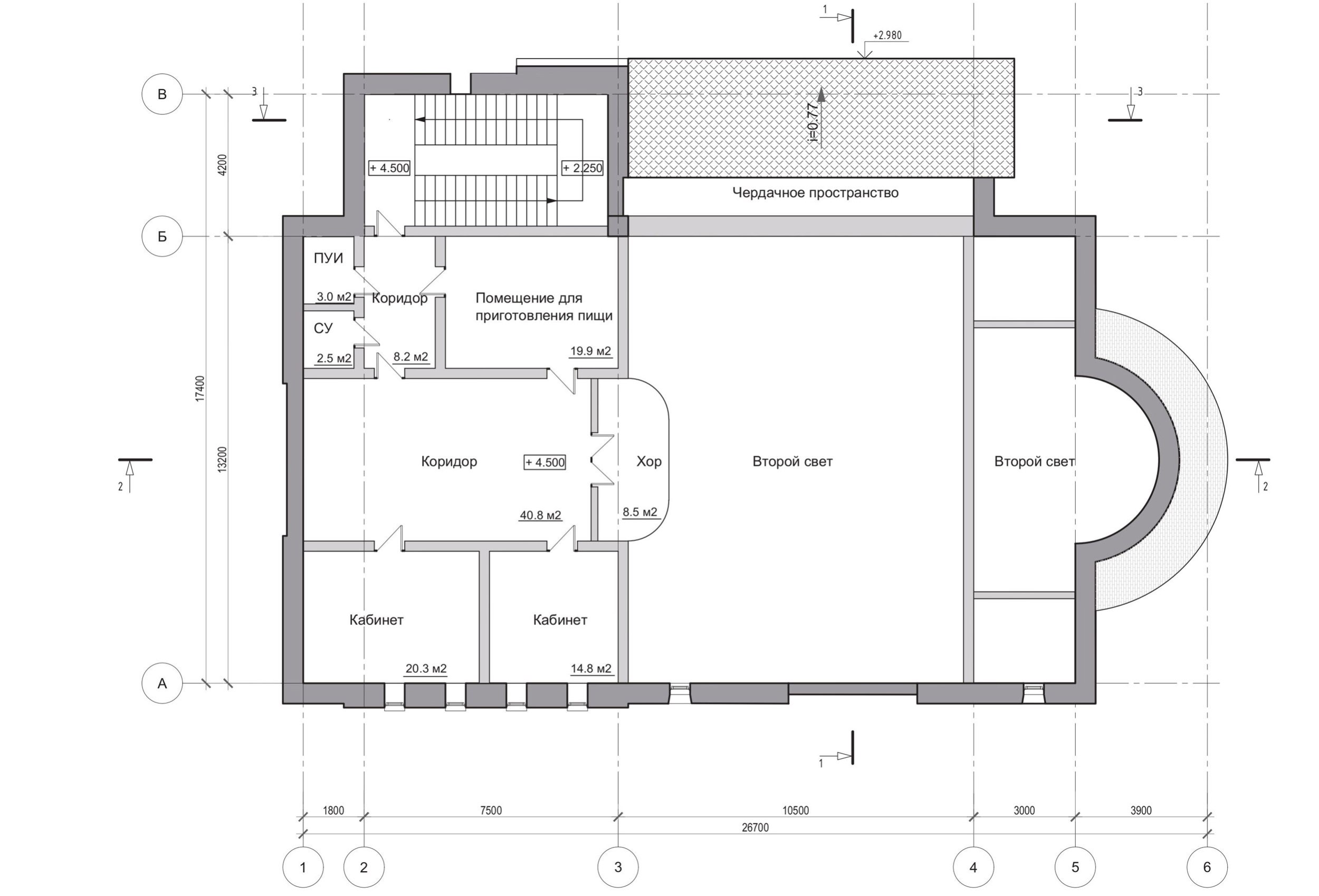
Характер композиции направлен на создание выразительного образа, способного акцентировать внимание зрителя. Основой объемно-планировочного решения и фасадов здания является базилика с двускатной кровлей, имеющая ассиметричную постройку в виде колокольни в северной части. Все фасады здания асимметричны и не имеют повторяющихся элементов. Применение облицовочного кирпича для фасадов, окрашенного в белый цвет, призвано обеспечить преемственность церковной архитектуры Северо-Западного региона. Скатные кровли, низкие карнизы и контрфорсы также дополнительно подчеркивают особенности псковского стиля средних веков.
 
Фасады здания имеют многочисленные небольшие ромбовидные и треугольные световые проемы, предназначенные для создания уникального освещения внутреннего пространства и интерьеров. Западный фасад украшают барельефы со сценой крестной казни Спасителя. Южный фасад имеет дополнительное декоративное покрытие под дерево, давая отсылку к простоте и красоте архитектуры северных широт. Восточный фасад акцентирован алтарной апсидой в форме усеченного конуса, в центральной части апсиды размещена икона Благоразумного Разбойника Раха, во имя которого воздвигнут Храм. Северный фасад разбит контрфорсами, усиливающими простенки между проемами, а также жесткими гранями вертикальной стены колокольни, создающей акцент в этой части Храма. Колокольня имеет форму и стиль дозорной башни. Купол храма смещен в сторону восточного фасада и композиционно размещен по центру помещения для молящихся.
 
В верхней части барабана под золотым куполом размещен барельеф Евангельского текста из событий крестной казни: «яко разбойник исповедаю Тя: помяни мя, Господи, во царствии Твоем». Навершие купола – православный Крест в форме якоря.
Храм во имя благоразумного Разбойника Раха и духовно-просветительский центр штрафных воинских частей
@ Архитектурная мастерская М119
Храм во имя благоразумного Разбойника Раха и духовно-просветительский центр штрафных воинских частей
@ Архитектурная мастерская М119
Храм во имя благоразумного Разбойника Раха и духовно-просветительский центр штрафных воинских частей
@ Архитектурная мастерская М119
Храм во имя благоразумного Разбойника Раха и духовно-просветительский центр штрафных воинских частей
@ Архитектурная мастерская М119
Храм во имя благоразумного Разбойника Раха и духовно-просветительский центр штрафных воинских частей
@ Архитектурная мастерская М119
Храм во имя благоразумного Разбойника Раха и духовно-просветительский центр штрафных воинских частей
@ Архитектурная мастерская М119
Храм во имя благоразумного Разбойника Раха и духовно-просветительский центр штрафных воинских частей
@ Архитектурная мастерская М119

Архитекторы – партнеры Архи.ру:

  • Сергей Переслегин
  • Юлий Борисов
  • Андрей Асадов
  • Михаил Давыдов
  • Иван Кожин
  • Андрей Гнездилов
  • Евгений Подгорнов
  • Евгений Зеленов
  • Дмитрий Остроумов
  • Анастасия Абашева
  • Михаил Канунников
  • Александр Самарин
  • Александра Кузьмина
  • Александр Котенков
  • Дмитрий Ликин
  • Елена Пучкова
  • Николай Кикава
  • Василий Крапивин
  • Сергей Кузнецов
  • Владислав Андреев
  • Олег Мединский
  • Андрей Михайлов
  • Дмитрий Сухов
  • Юлия Тряскина
  • Антон Надточий
  • Дмитрий Буш
  • Никита Явейн
  • Григорий Мустафин
  • Владимир Плоткин
  • Степан Липгарт
  • Юлия Солдатенкова
  • Даниил Лоренц
  • Наталия Шилова
  • Константин Ходнев
  • Вера Бутко
  • Валерий Каняшин
  • Юлиана Княжевская
  • Екатерина Кузнецова
  • Сергей Труханов
  • Григориос Гавалидис
  • Станислав Белых
  • Алексей Орлов
  • Марина Егорова
  • Александр Асадов
  • Сергей Никешкин
  • Илья Машков
  • Павел Андреев
  • Полина Воеводина
  • Мария Ахременкова
  • Ростислав Цайзер
  • Евгений Новосадюк
  • Андрей Романов
  • Ерлан Бекмухамедов
  • Игорь Шварцман
  • Раис Баишев
  • Энди Сноу
  • Татьяна Зульхарнеева
  • Всеволод Медведев
  • Олег Шапиро
  • Георгий Трофимов
  • Виталий Лутц
  • Игорь Членов
  • Сергей Чобан
  • Наталья Сидорова
  • Александр Скокан
  • Николай Переслегин
  • Сергей Скуратов
  • Антон Яр-Скрябин
  • Борис Воскобойников
  • Зураб Басария
  • Тимур Абдуллаев
  • Екатерина Абдуллаева
  • Маргарита Авдышева
  • Левон Айрапетов
  • Александр Аношкин
  • Алексей Афоничкин
  • Владислав Бек-Булатов
  • Антон Белов
  • Татьяна Бузулукова
  • Петр Васильев
  • Данило Вукосавлевич
  • Алина Георгиевская
  • Павел Гордеев
  • Илья Гринберг
  • Никита Демидов
  • Никита Дергунов
  • Наталья Жилкина
  • Алексей Зародов
  • Екатерина Зырина
  • Алексей Ильин
  • Дарья Ильина
  • Олег Карлсон
  • Алексей Кибкало
  • Денис Кувшинников
  • Анна Куликова
  • Алексей Курков
  • Данил Куров
  • Мария Кутай
  • Евгений Кутай
  • Иван Кычкин
  • Антон Ладыгин
  • Дмитрий Лапин
  • Илья Левянт
  • Катерина Левянт
  • Борис Левянт
  • Валерий Лукомский
  • Антон Лукомский
  • Екатерина Ляпунова
  • Иса Магомедов
  • Сергей Марков
  • Елена Мерцалова
  • Николай Миловидов
  • Станислав Михаловский
  • Сергей Мичурин
  • Олеся Могилевская
  • Филипп Никандров
  • Мария Николаева
  • Дмитрий Овчаров
  • Сергей Пергаев
  • Виктор Перов
  • Алексей Полищук
  • Роман Пономарёв
  • Валерия Преображенская
  • Виктория Раубо
  • Василий Рыбаков
  • Николай Рыбаков
  • Мария Салех
  • Александр Стариков
  • Илья Уткин
  • Елисей Чакан
  • Бориша Чорович
  • Олег Шурыгин
  • Дмитрий Шурыгин

Проект из каталога (случайный выбор)

Спортивный центр для IT-компании в Белграде
Дмитрий Овчаров, Елена Мерцалова, 2024 – 2025
Спортивный центр для IT-компании в Белграде

Постройки и проекты (новые записи):

  • Архитектурная концепция кластера Ломоносов-2
  • Клубный дом в 1-м Казачьем переулке
  • Частный дом в Ленинградской области
  • IT-кластер TravelLine в Йошкар-Оле
  • Гостиничный комплекс Cosmos Selection Derbent 5
  • Офис компании АльфаСтрахование
  • MIDITI
  • Офис компании Kept
  • Дом Спорта

Новости российской архитектуры:

IAD Awards 2026
29.04.2026

IAD Awards 2026

Северный ветер
27.04.2026

Северный ветер

Дарья Белецкая
Высший уровень
24.04.2026

Высший уровень

Борис Воскобойников, Мария Ахременкова