От редакции
Дизайн очень противоречив. С одной стороны, если уж придумывать что-то, то зачем себя ограничивать? Почему бы не сделать столько дизайна и такого дизайна, чтобы ошеломленный зритель замирал ненадолго просто для того, чтобы сбалансировать свое самоощущение и входящий визуальный поток. Прекрасным примером подобного подхода к творчеству может служить недавно опубликованный развлекательный центр NEOBIO.С другой стороны, в пику показному дизайну всегда существовало и будет существовать альтернативное понимание сути этой профессии, требующее от своих адептов максимальной утонченности и деликатности в подаче, точности и перфекционизма в решении каждой детали и всего пространства в целом. Такой дизайн, требующий от творца нечеловеческого уровня самоотречения, не всем заметен и не всеми считывается, но для знатоков обладает наивысшей ценностью. Например, Леонардо да Винчи считал, что «Простота – это высочайшая утонченность. Простота – это то, что труднее всего на свете; это крайний предел опытности и последнее усилие гения».
Впрочем, нужно честно признаться, что большая часть наиболее успешных и знаменитых интерьерных дизайнеров находит собственный баланс между этими двумя профессиональными полюсами и благодаря бесконечности приемов и методов, умещающихся в этой «золотой середине», история мирового дизайна пополняется именами и объектами, обладающими узнаваемым стилем и характером. Но внутри этого бесконечного множества индивидуальностей особенно интересно следить за тем, как каждый из них выбирает свою точку равновесия, у кого-то тяготеющую к одному полюсу, а у кого-то – к другому.
MIDITI
Фотография © Даниил Анненков / предоставлена Beletskaya bureau
Рискнем предположить, что для дизайнера из Калининграда Дарьи Белецкой, судя по ее проектам, точка баланса скорее смещена в сторону простоты. Общую лаконичность, если не сказать аскетичность, ее интерьеров практически всегда нарушают неожиданные элементы, будь то световые инсталляции, арт-объекты (скульптуры, авторская мебель и тому подобное), неожиданные материалы или способы их обработки. Фокус на материальности, тактильности интерьеров и их деталей часто перерождается в креативный диалог между искусственной и естественной средой.
MIDITI
Фотография © Даниил Анненков / предоставлена Beletskaya bureau
В интерьере московского магазина калининградского бренда MIDITI Дарья Белецкая отважилась сместить точку баланса в дизайне максимально близко к экстремальной простоте, намеренно ограничив спектр выразительных средств двумя очень разными, если не сказать полярными, приемами. С одной стороны, в качестве традиционных для бренда элементов оформления выступают драпировки, классические, немного претенциозные в своей барочности, а с другой – в интерьер введены многочисленные природные артефакты в виде камней, песка, ветвей и стволов деревьев. Практически все эти объекты собраны на берегу Балтики и выполняют роль аутентичного посольства, привносящего в интерьер магазина приморскую атмосферу и намек на соленый запах северного ветра.
MIDITI
Фотография © Даниил Анненков / предоставлена Beletskaya bureau
Описание предоставлено архитектором
Изначально у заказчиков была идея сохранить позиционирование бренда MIDITI как балтийского и опираться на ту эстетику, которую они уже для себя сформировали: северный дизайн плюс отсылки к античной культуре – драпировкам, колоннам и другим классическим элементам.
MIDITI
Фотография © Даниил Анненков / предоставлена Beletskaya bureau
Концепция московского магазина родилась экспромтом, во время прогулки по Куршской косе, где после шторма на берегу было много выброшенных веток, бревен и корней. Дизайнеру Дарье Белецкой так понравилось, как выглядят камни на песке и как хаотично разбросаны ветки, что появилась идея не искать что-то сложное, а использовать очевидную природную красоту. Привести в Москву кусочек Балтики. В Калининграде это не сработало бы так же, потому что здесь есть Балтийское море, а в Москву хотелось привнести эти природные элементы, которых там не хватает.
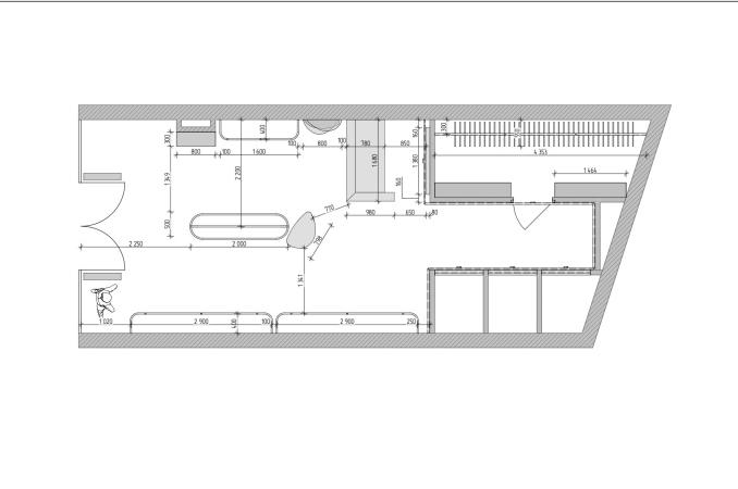
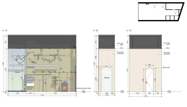
В основе концепции лежала идея перенести образ пляжа после шторма и соединить его с античными элементами. На площади 80 квадратных метров получилось две зоны: основной зал и примерочные. Примерочные выполнены в драпировках и ткани – три примерочные и отдельная зона склада. Там же сформирован световой короб – современный элемент, который дает дополнительный свет и привлекает внимание.
Остальное пространство стилизовано под пляж: стены песочного цвета, текстуры, напоминающие песок, и камни, вмонтированные в стены. Эти камни дизайнер Дарья Белецкая лично собирала на пляже и везла из Калининграда в Москву, так же как и ветки и сучья для композиций под потолком. Собранные природные объекты так удачно влились в дизайн, что позднее были привезены еще несколько более крупных фрагментов.
С Балтики приехали не только куски дерева, но и камни, песок и мох. Исключением стали только крупные камни, которые было проще купить в Москве.
Чтобы сохранить образ балтийского пляжа, команда минимизировала количество рейлов. Изначально они планировались из нержавеющей стали, но после уточнения концепции было принято решение сделать их черными. За счет этого они не так выделяются и не спорят с остальным интерьером, кроме того, по мнению заказчиков, черный металл более утилитарен.
Кассовая стойка выполнена из полупрозрачного пластика с подсветкой снизу. Это создает ощущение матовых стекляшек, которые море выбрасывает на берег. Это тоже отсылка к Балтийскому морю и общей концепции пространства.
