RSS
MIDITI
Фотография © Даниил Анненков / предоставлена Beletskaya bureau

MIDITI

информация:

  • статус
    реализовано
  • даты
    03.2024 / 04.2024
  • region= area= address=Павелецкая площадь, дом 3 country_t=Россия city_t=Москва
    место
    Москва Павелецкая площадь, дом 3
  • координаты
    55.731900, 37.638400
  • функция
    Торгово-коммерческий / магазин
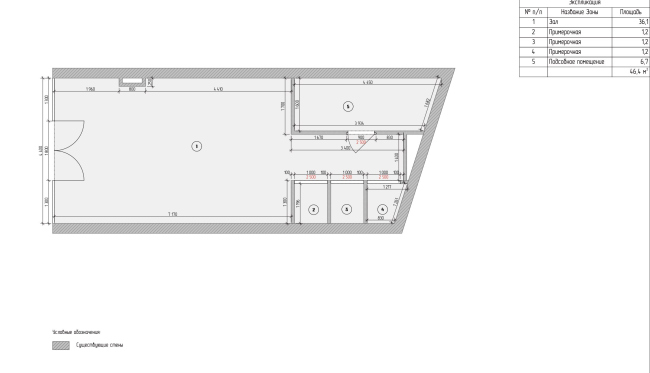
  • общая площадь
    80 м2
Дарья Белецкая
Россия

авторский коллектив

Руководитель бюро, автор идеи, дизайнер, авторский надзор – Дарья Белецкая; 
исполнитель проектной документации – Валентина Нагуслаева; ассистент дизайнера, комплектатор – Алина Ротганг

партнеры, заказчики, смежники

Заказчик – Мария Титова и Дарья Титова
MIDITI
© Beletskaya bureau

Архи.ру об этом объекте:

27.04.2026

Елена Петухова. Северный ветер

Региональные бренды все чаще обзаводятся своими шоу-румами в лучших московских торговых центрах, и это дает возможность не только познакомиться с новыми именами в фэшн-дизайне, но и увидеть яркие произведения интерьерного дизайна от успешных бюро, достигших успеха в своих родных городах и уверенно завоевывающих столичный рынок.

От редакцииДизайн очень противоречив. С одной стороны, если уж придумывать что-то, то зачем себя ограничивать? Почему бы не сделать столько дизайна и такого дизайна, чтобы ошеломленный зритель замирал ненадолго просто для того, чтобы сбалансировать ...   читать дальше
MIDITI
© Beletskaya bureau

история проекта:

В начале 2024 года ко мне обратились Дарья и Мария – руководители и основатели бренда Miditi. Им был нужен новый магазин в Москве, в торговом центре «Павелецкая Плаза». Изначально мы договорились, что я разрабатываю концепцию и делаю чертежи, но не занимаюсь авторским ведением проекта. Они планировали реализовывать магазин самостоятельно.

Однако в процессе, когда я презентовала визуализации и полную концепцию пространства, стало понятно, что реализовать проект без моего участия будет сложно. В нём было много индивидуальных элементов, которые я долго подбирала, а подрядчики, работавшие на объекте, в дальнейшем вручную расставляли и монтировали многие детали уже по моим рисункам – даже после завершения основного ремонта.

описание:

Изначально от заказчиков была идея сохранить позиционирование бренда как бренда с Балтики и опираться на ту эстетику, которую они уже для себя сформировали. В своём брендинге они нашли отсылки к античной культуре: драпировкам, колоннам и другим классическим элементам.

За несколько дней до презентации проекта у меня всё ещё не было финальной идеи. Я поехала на море – оказалась на Куршской косе, где после шторма на берегу было много выброшенных веток, брёвен и корней. Мне понравилось, как выглядят камни на песке и как хаотично разбросаны ветки. Тогда я подумала: зачем искать что-то сложное, если есть очевидная природная красота, которую хочется привезти в Москву. В Калининграде это не сработало бы так же, потому что здесь есть Балтийское море, а в Москву хотелось привнести эти природные элементы, которых там не хватает.

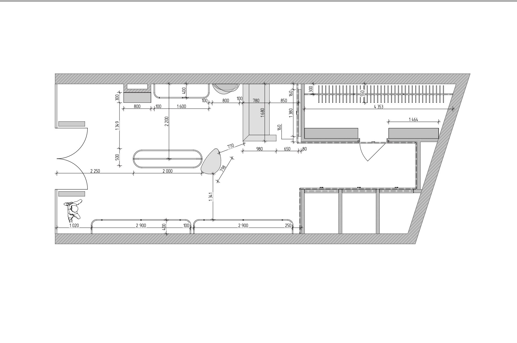
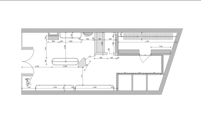
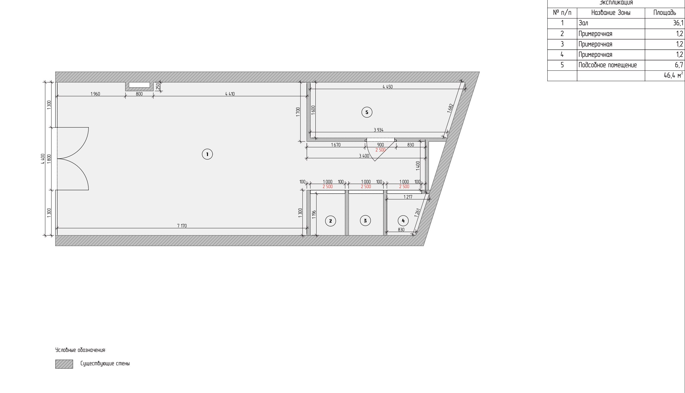
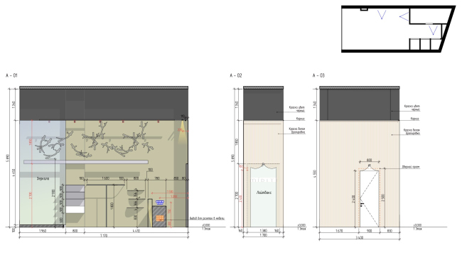
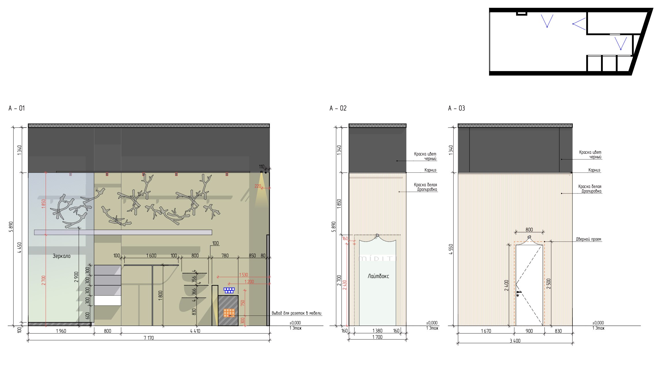
В основе концепции лежала идея перенести образ пляжа после шторма и соединить его с античными элементами. На площади 80 квадратных метров получилось две зоны: основной зал и примерочные. Примерочные выполнены в драпировках и ткани – три примерочные и отдельная зона склада. Там же сформирован световой короб – современный элемент, который даёт дополнительный свет и привлекает внимание.

Остальное пространство стилизовано под пляж: стены песочного цвета, текстуры, напоминающие песок, и камни, вкрученные в стены. Эти камни я везла из Калининграда в Москву, собирала их на пляже. Ветки и брёвна под потолком тоже собирались вручную – я и владелицы бренда. Элементов оказалось недостаточно, поэтому позже я собирала более крупные детали.

Всё это мы отправляли в Москву: ветки, песок, мох – почти всё привезено с Балтики. Исключением стали только крупные камни, их покупали в Москве.
 
Основная идея – собрать образ балтийского пляжа. Мы минимизировали количество рейлов. Изначально они планировались из нержавеющей стали, но отказались от этого решения. Заказчикам было важно, чтобы рейлы были чёрными – это утилитарное решение.
 
Кассовая стойка выполнена из полупрозрачного пластика с подсветкой снизу. Это создаёт ощущение матовых стекляшек, которые море выбрасывает на берег. Это тоже отсылка к Балтийскому морю и общей концепции пространства.
 
MIDITI
© Beletskaya bureau
MIDITI
Фотография © Даниил Анненков / предоставлена Beletskaya bureau
MIDITI
Фотография © Даниил Анненков / предоставлена Beletskaya bureau
MIDITI
Фотография © Даниил Анненков / предоставлена Beletskaya bureau
MIDITI
Фотография © Даниил Анненков / предоставлена Beletskaya bureau
MIDITI
Фотография © Даниил Анненков / предоставлена Beletskaya bureau
MIDITI
Фотография © Даниил Анненков / предоставлена Beletskaya bureau
MIDITI
Фотография © Даниил Анненков / предоставлена Beletskaya bureau
MIDITI
Фотография © Даниил Анненков / предоставлена Beletskaya bureau
MIDITI
Фотография © Даниил Анненков / предоставлена Beletskaya bureau
MIDITI
Фотография © Даниил Анненков / предоставлена Beletskaya bureau
MIDITI
Фотография © Даниил Анненков / предоставлена Beletskaya bureau
MIDITI
Фотография © Даниил Анненков / предоставлена Beletskaya bureau
MIDITI
Фотография © Даниил Анненков / предоставлена Beletskaya bureau
MIDITI
Фотография © Даниил Анненков / предоставлена Beletskaya bureau
MIDITI
Фотография © Даниил Анненков / предоставлена Beletskaya bureau
MIDITI
Фотография © Даниил Анненков / предоставлена Beletskaya bureau
MIDITI
Фотография © Даниил Анненков / предоставлена Beletskaya bureau
MIDITI
Фотография © Даниил Анненков / предоставлена Beletskaya bureau
MIDITI
Фотография © Даниил Анненков / предоставлена Beletskaya bureau
MIDITI
Фотография © Даниил Анненков / предоставлена Beletskaya bureau
MIDITI
Фотография © Даниил Анненков / предоставлена Beletskaya bureau
MIDITI
Фотография © Даниил Анненков / предоставлена Beletskaya bureau
MIDITI
Фотография © Даниил Анненков / предоставлена Beletskaya bureau
MIDITI
Фотография © Даниил Анненков / предоставлена Beletskaya bureau
MIDITI
Фотография © Даниил Анненков / предоставлена Beletskaya bureau
MIDITI
Фотография © Даниил Анненков / предоставлена Beletskaya bureau
MIDITI
© Beletskaya bureau
MIDITI
© Beletskaya bureau

Архитекторы – партнеры Архи.ру:

  • Михаил Давыдов
  • Марина Егорова
  • Екатерина Кузнецова
  • Михаил Канунников
  • Дмитрий Ликин
  • Юлия Солдатенкова
  • Николай Кикава
  • Сергей Переслегин
  • Валерий Каняшин
  • Зураб Басария
  • Степан Липгарт
  • Григорий Мустафин
  • Сергей Труханов
  • Владислав Андреев
  • Андрей Асадов
  • Олег Шапиро
  • Энди Сноу
  • Юлий Борисов
  • Сергей Чобан
  • Станислав Белых
  • Татьяна Зульхарнеева
  • Александр Скокан
  • Григориос Гавалидис
  • Иван Кожин
  • Сергей Никешкин
  • Игорь Членов
  • Вера Бутко
  • Полина Воеводина
  • Наталья Сидорова
  • Антон Надточий
  • Евгений Зеленов
  • Игорь Шварцман
  • Ерлан Бекмухамедов
  • Сергей Кузнецов
  • Николай Переслегин
  • Раис Баишев
  • Василий Крапивин
  • Александр Самарин
  • Андрей Михайлов
  • Евгений Новосадюк
  • Сергей Скуратов
  • Александр Котенков
  • Георгий Трофимов
  • Дмитрий Сухов
  • Юлиана Княжевская
  • Никита Явейн
  • Олег Мединский
  • Антон Яр-Скрябин
  • Александра Кузьмина
  • Александр Асадов
  • Елена Пучкова
  • Борис Воскобойников
  • Всеволод Медведев
  • Константин Ходнев
  • Мария Ахременкова
  • Дмитрий Буш
  • Андрей Романов
  • Алексей Орлов
  • Павел Андреев
  • Евгений Подгорнов
  • Юлия Тряскина
  • Виталий Лутц
  • Наталия Шилова
  • Владимир Плоткин
  • Илья Машков
  • Андрей Гнездилов
  • Дмитрий Остроумов
  • Даниил Лоренц
  • Анастасия Абашева
  • Ростислав Цайзер
  • Тимур Абдуллаев
  • Екатерина Абдуллаева
  • Маргарита Авдышева
  • Левон Айрапетов
  • Александр Аношкин
  • Алексей Афоничкин
  • Владислав Бек-Булатов
  • Антон Белов
  • Татьяна Бузулукова
  • Петр Васильев
  • Данило Вукосавлевич
  • Андрей Вырва
  • Алина Георгиевская
  • Павел Гордеев
  • Илья Гринберг
  • Никита Демидов
  • Никита Дергунов
  • Наталья Жилкина
  • Алексей Зародов
  • Екатерина Зырина
  • Алексей Ильин
  • Дарья Ильина
  • Олег Карлсон
  • Алексей Кибкало
  • Денис Кувшинников
  • Анна Куликова
  • Алексей Курков
  • Данил Куров
  • Мария Кутай
  • Евгений Кутай
  • Иван Кычкин
  • Антон Ладыгин
  • Дмитрий Лапин
  • Борис Левянт
  • Илья Левянт
  • Катерина Левянт
  • Валерий Лукомский
  • Антон Лукомский
  • Екатерина Ляпунова
  • Иса Магомедов
  • Сергей Марков
  • Елена Мерцалова
  • Николай Миловидов
  • Станислав Михаловский
  • Сергей Мичурин
  • Олеся Могилевская
  • Филипп Никандров
  • Мария Николаева
  • Дмитрий Овчаров
  • Сергей Пергаев
  • Виктор Перов
  • Алексей Полищук
  • Роман Пономарёв
  • Валерия Преображенская
  • Виктория Раубо
  • Василий Рыбаков
  • Николай Рыбаков
  • Мария Салех
  • Александр Стариков
  • Илья Уткин
  • Елисей Чакан
  • Евгения Чернышева
  • Бориша Чорович
  • Олег Шурыгин
  • Дмитрий Шурыгин

Проект из каталога (случайный выбор)

Торговый центр у станции метро «Тульская»
Александр Скокан, Дмитрий Гусев, 2006 – 2008
Торговый центр у станции метро «Тульская»

Постройки и проекты (новые записи):

  • Павильон  Идеал
  • Флагманская кофейня Дринкит
  • Гостиница в Чите
  • ЖК Квартал 64
  • Деловое пространство «ПЛЭЙН»
  • Конкурсный проект ФИЦ / ТПО «Резерв»
  • Porta
  • Детский сад на 200 мест в Жилино-1
  • Архитектурная концепция кластера Ломоносов-2

Новости российской архитектуры: