RSS
Дом культуры Центр притяжения
© Skatra / предоставлено Комитетом градостроительной политики Ленинградской области

Дом культуры Центр притяжения

информация:

  • статус
    проект
  • даты
    2025
  • region= area= address= country_t=Россия city_t=Тельмана
    место
    Тельмана
  • координаты
    59.721472, 30.603921
  • функция
    Культурный / Общественный центр
  • площадь участка
    1,1888 га
  • площадь застройки
    2 513,37 м2
  • площадь подземная
    2 237,3 м2
  • общая площадь
    6 095,8 м2
  • высота
    11,725
  • этажность
    3
  • строительный объем
    25 000 м3
  • Большой зрительный зал – 250 мест
    Малый зрительный зал (конференц-зал, лекторий) – 104 места
Сергей Ситько
Россия

авторский коллектив

Сергей Ситько, Алексей Данилов, Галина Мудрецова

партнеры, заказчики, смежники

Заказчик: Комитет градостроительной политики Ленинградской области
Дом культуры Центр притяжения
© Skatra / предоставлено Комитетом градостроительной политики Ленинградской области
Дом культуры Центр притяжения
© Skatra / предоставлено Комитетом градостроительной политики Ленинградской области

описание:

Окружение проектируемого объекта

Участок граничит с северо-восточной стороны с жилой застройкой, с восточной стороны располагается административное здание Племхоза имени Тельмана, с южной стороны – церковь, с западной стороны участок примыкает к реке Ижора.

Проектируемое здание находится в окружении существующей застройки, которая оказывает визуальное и функциональное влияние на проектируемый объект.
Окружение задает преимущественно прямоугольную форму проектируемого здания. Объемы Дома культуры выстроены вдоль берега реки и параллельно существующей жилой застройке вдоль реки.

Реализация объекта предполагается одновременно с благоустройством прилегающей территории соседних участков: устройством пешеходных дорожек, автомобильных проездов, площадок и озеленения. Это позволит сформировать единое функциональное пространство, завершающее пешеходный променад вдоль берега.

Генеральный план

Положение здания на участке задано формой участка и ориентацией на основные подходы/подъезды.
Пешеходные подходы к зданию:

  • с благоустроенной набережной вдоль реки Ижора, с северо-восточной стороны;
  • от остановки общественного транспорта «Поселок Тельмана – Администрация»;
  • от пешеходного перехода через ул. Подъезд к Колпино со стороны администрации Племенного хозяйства;
  • пешеходная тропа вдоль берега реки – со стороны Московского шоссе.

Автомобильный подъезд к зданию осуществляется по выделенной части участков с улицы Подъезд к Колпино. Перед зданием организована парковка на 31 машиноместо, в том числе 3 специализированных места для инвалидов-колясочников.

Пожарный проезд обеспечивается со всех сторон здания, шириной не менее 3.5 м, на расстоянии 5–8 м по твердому покрытию: асфальтовому или мощению бетонной брусчаткой.

Перепад по участку под пятном застройки составляет 0.5 (0.9) метра.
Основные входы в здание со стороны парковки и главный вход в вестибюль решены с уровня земли без использования крылец и пандусов, защита от осадков обеспечивается уклоном мощения от здания и навесами над входами.

Со стороны реки на дополнительном входе/выходе из сквозного вестибюля спроектирована большая терраса, приподнятая над уровнем земли, с пространственным навесом, которая в летнее время используется как летняя сцена.
 

Планировочная организация

Здание функционально разделено на два объема (корпуса).
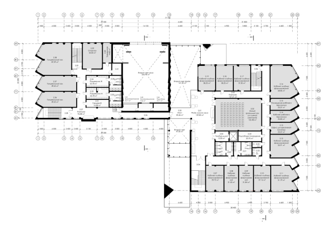
С юго-западной стороны: блок зрительного зала с подсобными помещениями, административные кабинеты и спортивный кластер на втором этаже.
Второй блок здания полностью занят кабинетами и помещениями клубной работы, также включает библиотеку и распределительный вестибюль на первом этаже.

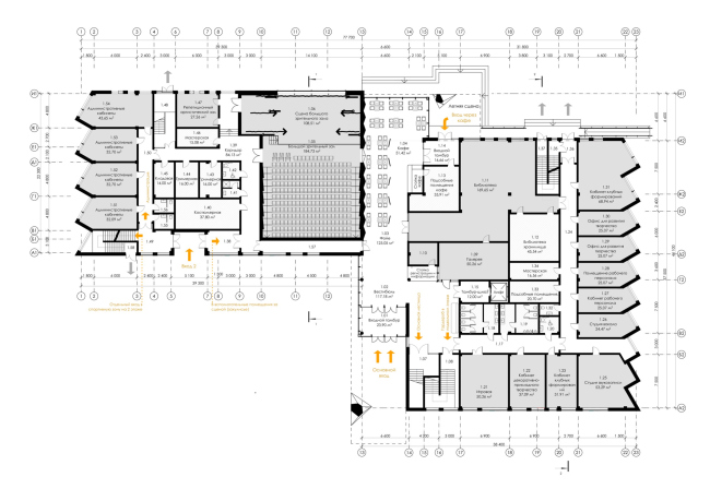
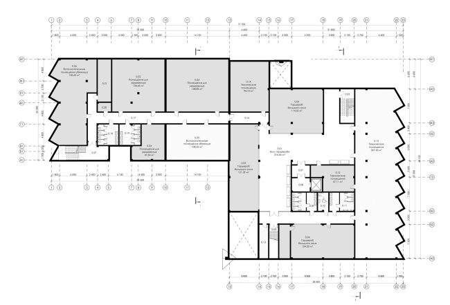
На подземном этаже располагается большой холл с гардеробами, которые обслуживают как посетителей клубных кружков, так и зрителей большого зала в период проведения мероприятий. Также на подземном этаже располагается убежище.
Главным выразительным элементом интерьера и экстерьера здания является большой двухсветный холл/фойе, который имеет сплошное витражное остекление с двух сторон: со стороны входа и со стороны реки Ижора. Таким образом, он становится сквозным соединением двух сторон здания. Для входящих посетителей сразу от входа открывается панорамный вид на реку, набережную и небо.

В период работы Центра в режиме кружков на первом этаже в фойе размещается кафе на 54 посадочных места. Столики предназначены для двух человек либо группируются по два – на четырех человек.
В период проведения мероприятий в большом зрительном зале в фойе остаются только столики, которые трансформируются по высоте до 1.1 м. Посетители располагаются в фойе за столиками стоя, без сидячих мест.

В вестибюле располагается парадная лестница, ведущая в фойе малого зала на втором этаже. Фойе открывается балконом в основное двухсветное пространство.
На все этажи здания и во все помещения обеспечивается доступ маломобильных групп населения, спроектирован лифт, подходящий по размеру для инвалида-колясочника с сопровождающим. Также предусмотрены санузлы для инвалидов и зоны безопасности в лестничных клетках.

Фасады

Вся архитектура здания выстроена вокруг центрального ядра – сквозного стеклянного объема вестибюля.
Корпуса справа и слева от вестибюля решены минималистично, с повторяющимся решением и ритмом окон с прямыми и наклонными простенками.

Окна здания со стороны жилой застройки повернуты относительно плоскости стены, чтобы уменьшить просматриваемость «окно в окно» с ближайшим жилым домом и обеспечить красивый вид из классов на набережную. Аналогичное решение применено на юго-западном фасаде здания – окна повернуты в сторону берега реки и живописных видов.

Архитектурные решения фасадов вдохновлены природными образами, пейзажами береговой полосы реки Ижора с нетронутой дикой природой: это лиственные и хвойные лесистые участки, сухая трава и камыш на берегу реки.
Основным отделочным материалом фасада выбраны крупноформатные фиброцементные панели светло-серого цвета, окрашенные в массе.
Акцентным материалом, который отсылает к природному образу объекта, является отделка фасада имитацией деревянных досок, выполненная из фиброцементных ламелей либо из панелей фасадного HPL-пластика.

Во всем здании применяются большие остекленные окна и плоскости фасада.
В клубных классах нижняя часть окна глухая, для проветривания открывается фрамуга в верхней части. Профили окон имеют покрытие, имитирующее клееную древесину.
Алюминиевые профили остекления окрашиваются в цвет «металлик-латунь». Для мелких акцентных деталей в экстерьере и интерьере используется натуральная латунь: это ручки дверей, светильники, ограждения и т. д.

Дом культуры Центр притяжения
© Skatra / предоставлено Комитетом градостроительной политики Ленинградской области
Дом культуры Центр притяжения
© Skatra / предоставлено Комитетом градостроительной политики Ленинградской области
Дом культуры Центр притяжения. Ситуационная схема
© Skatra / предоставлено Комитетом градостроительной политики Ленинградской области
Дом культуры Центр притяжения. Схема генерального плана
© Skatra / предоставлено Комитетом градостроительной политики Ленинградской области
Дом культуры Центр притяжения
© Skatra / предоставлено Комитетом градостроительной политики Ленинградской области
Дом культуры Центр притяжения. Идея фасадной композиции
© Skatra / предоставлено Комитетом градостроительной политики Ленинградской области
Дом культуры Центр притяжения. Главный фасад 1-23
© Skatra / предоставлено Комитетом градостроительной политики Ленинградской области
Дом культуры Центр притяжения
© Skatra / предоставлено Комитетом градостроительной политики Ленинградской области
Дом культуры Центр притяжения. Варианты решения фасадов
© Skatra / предоставлено Комитетом градостроительной политики Ленинградской области
Дом культуры Центр притяжения. Зрительный зал на 250 мест и фойе
© Skatra / предоставлено Комитетом градостроительной политики Ленинградской области
Дом культуры Центр притяжения. Интерьеры клубных классов
© Skatra / предоставлено Комитетом градостроительной политики Ленинградской области
Дом культуры Центр притяжения. План подземного этажа на отметке -3,900
© Skatra / предоставлено Комитетом градостроительной политики Ленинградской области
Дом культуры Центр притяжения. План 1 этажа на отметке 0.000
© Skatra / предоставлено Комитетом градостроительной политики Ленинградской области
Дом культуры Центр притяжения. План 2 этажа на отметке +4,200
© Skatra / предоставлено Комитетом градостроительной политики Ленинградской области
Дом культуры Центр притяжения. Разрезы
© Skatra / предоставлено Комитетом градостроительной политики Ленинградской области

Архитекторы – партнеры Архи.ру:

  • Всеволод Медведев
  • Георгий Трофимов
  • Марина Егорова
  • Алексей Орлов
  • Григорий Мустафин
  • Александр Самарин
  • Даниил Лоренц
  • Степан Липгарт
  • Ерлан Бекмухамедов
  • Дмитрий Сухов
  • Сергей Скуратов
  • Евгений Подгорнов
  • Евгений Новосадюк
  • Дмитрий Буш
  • Сергей Кузнецов
  • Антон Яр-Скрябин
  • Александра Кузьмина
  • Зураб Басария
  • Александр Котенков
  • Сергей Никешкин
  • Константин Ходнев
  • Елена Пучкова
  • Николай Переслегин
  • Никита Явейн
  • Дмитрий Ликин
  • Станислав Белых
  • Михаил Канунников
  • Анастасия Абашева
  • Игорь Шварцман
  • Александр Скокан
  • Игорь Членов
  • Ростислав Цайзер
  • Дмитрий Остроумов
  • Николай Кикава
  • Иван Кожин
  • Сергей Труханов
  • Юлия Тряскина
  • Олег Шапиро
  • Наталия Шилова
  • Наталья Сидорова
  • Владислав Андреев
  • Полина Воеводина
  • Олег Мединский
  • Татьяна Зульхарнеева
  • Екатерина Кузнецова
  • Василий Крапивин
  • Валерий Каняшин
  • Виталий Лутц
  • Григориос Гавалидис
  • Раис Баишев
  • Энди Сноу
  • Сергей Чобан
  • Михаил Давыдов
  • Андрей Романов
  • Александр Асадов
  • Андрей Михайлов
  • Евгений Зеленов
  • Юлиана Княжевская
  • Сергей Переслегин
  • Андрей Гнездилов
  • Андрей Асадов
  • Владимир Плоткин
  • Антон Надточий
  • Юлия Солдатенкова
  • Юлий Борисов
  • Илья Машков
  • Вера Бутко
  • Павел Андреев
  • Тимур Абдуллаев
  • Екатерина Абдуллаева
  • Маргарита Авдышева
  • Левон Айрапетов
  • Александр Аношкин
  • Алексей Афоничкин
  • Владислав Бек-Булатов
  • Антон Белов
  • Татьяна Бузулукова
  • Петр Васильев
  • Данило Вукосавлевич
  • Алина Георгиевская
  • Павел Гордеев
  • Илья Гринберг
  • Никита Демидов
  • Никита Дергунов
  • Наталья Жилкина
  • Алексей Зародов
  • Екатерина Зырина
  • Алексей Ильин
  • Дарья Ильина
  • Олег Карлсон
  • Алексей Кибкало
  • Денис Кувшинников
  • Анна Куликова
  • Алексей Курков
  • Данил Куров
  • Мария Кутай
  • Евгений Кутай
  • Иван Кычкин
  • Антон Ладыгин
  • Дмитрий Лапин
  • Борис Левянт
  • Илья Левянт
  • Катерина Левянт
  • Валерий Лукомский
  • Антон Лукомский
  • Екатерина Ляпунова
  • Сергей Марков
  • Елена Мерцалова
  • Николай Миловидов
  • Станислав Михаловский
  • Сергей Мичурин
  • Олеся Могилевская
  • Мария Николаева
  • Дмитрий Овчаров
  • Сергей Пергаев
  • Виктор Перов
  • Алексей Полищук
  • Роман Пономарёв
  • Валерия Преображенская
  • Виктория Раубо
  • Василий Рыбаков
  • Николай Рыбаков
  • Мария Салех
  • Александр Стариков
  • Илья Уткин
  • Елисей Чакан
  • Бориша Чорович
  • Олег Шурыгин
  • Дмитрий Шурыгин

Проект из каталога (случайный выбор)

Жилой комплекс «LVIII»
Александр Попов, Дмитрий Лаптев, 2018 – 2018
Жилой комплекс «LVIII»

Постройки и проекты (новые записи):

  • ЖК Ленинский проспект 59
  • MIDITI
  • Дом Спорта
  • Ежон Алтай
  • Freeform Home Design Challenge
  • Навесы Ленинградского вокзала
  • МФК Лотус
  • Общежития Новосибирского государственного университета (НГУ)
  • Детский сад в квартале «СЕТ»

Новости российской архитектуры:

Теплый берег
15.04.2026

Теплый берег

Надежда Снигирёва
Жизнерадостный декаданс
14.04.2026

Жизнерадостный декаданс

Валерий Лизунов, Екатерина Агеева, Елизавета Трушина
Я в домике
14.04.2026

Я в домике

Юлий Борисов
Под знаком красного
14.04.2026

Под знаком красного

Дмитрий Овчаров, Елена Мерцалова
Приближение таинства
14.04.2026

Приближение таинства

Иван Земляков