RSS
Павильон проката горнолыжного инвентаря ГЛК «ЯН»
Фотография © Дмитрий Шведов / предоставлена Архитектурная мастерская Тотана Кузембаева

Павильон проката горнолыжного инвентаря ГЛК «ЯН»

информация:

  • статус
    проект
  • даты
    2024
  • region= area= address=Спортивно-оздоровительный комплекс "ЯН" country_t=Россия city_t=Новоникольское
    место
    Новоникольское Спортивно-оздоровительный комплекс "ЯН"
  • функция
    Спортивный / Павильон для спортивного учреждения
  • площадь застройки
    735, 5 м2
  • общая площадь
    653,41 м2
  • высота
    6.483
  • этажность
    1
  • строительный объем
    3 975 м3
Тотан Кузембаев
Totan / Россия

авторский коллектив

Генеральный директор – Т.Б. Кузембаев; главный инженер проекта – К.А. Мошкович

Павильон проката горнолыжного инвентаря ГЛК «ЯН»
Фотография © Дмитрий Шведов / предоставлена Архитектурная мастерская Тотана Кузембаева
Павильон проката горнолыжного инвентаря ГЛК «ЯН»
Фотография © Дмитрий Шведов / предоставлена Архитектурная мастерская Тотана Кузембаева

описание:

Здание Павильона проката горнолыжного инвентаря ГЛК «ЯН», расположенное по адресу: Республика Татарстан, Альметьевский район, Новоникольское сельское поселение, спортивно-оздоровительный комплекс «ЯН», запроектировано в соответствии с заданием на проектирование.

Район строительства:

  • Республика Татарстан, Альметьевский район;

  • расчетная зимняя температура: –33 °С;

  • класс сооружений – КС-2;

  • уровень ответственности здания – нормальный;

  • коэффициент надежности по ответственности – 1.0;

  • класс конструктивной пожарной опасности – не нормируется по ТЗ;

  • класс функциональной пожарной опасности – Ф 3.6.

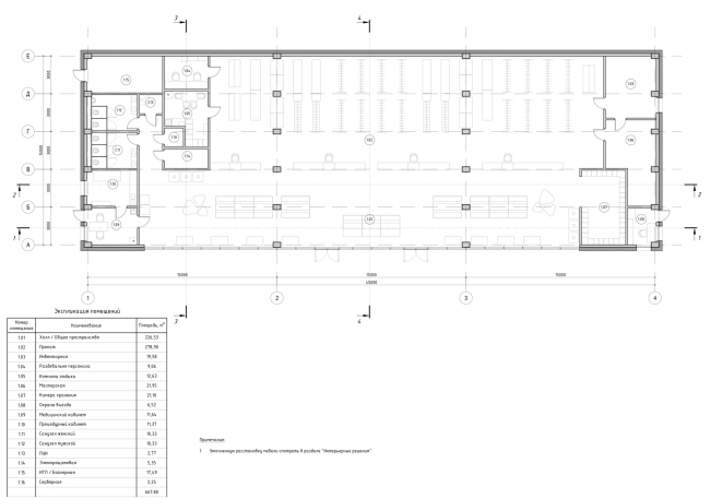
Проектируемое здание представляет собой одноэтажное строение в осях 45,0 × 15,0 м.
Максимальное количество единовременных посетителей – 50 человек (25 мужчин и 25 женщин).

Высота здания переменная, со средним значением 5,457 м: максимальная высота – 6,483 м, минимальная – 4,432 м.

Конструктивные решения:

  • несущие конструкции – арки из клееных деревянных элементов, опирающиеся на монолитные железобетонные опоры;

  • фундаменты – ленточные из монолитного железобетона;

  • наружные стены: комбинированные – до отметки +2,400 м из монолитного железобетона толщиной 200 мм, выше – из газобетонных блоков D500 толщиной 200 мм с утеплителем 100 мм и вентилируемым фасадом.

Преобладающая часть фасада между осями 1 и 4 – витражная конструкция для естественного освещения зала проката.

Отделка фасадов:

  • наружные стены обшиты отделочной доской (планкеном), окрашенным в заводских условиях;

  • стена по оси Е облицована по технологии вентилируемого фасада оцинкованными профлистами с заводским окрашиванием;

  • проект выполнен на основе фасадной системы UKON, расчёт и документация для строительно-монтажных работ выполняются выбранной организацией в соответствии с технологией.

Кровля здания – рулонная битумно-полимерная, в 3 слоя (2 основных и 1 дополнительный, предусмотренный конструктивными особенностями кровли), неэксплуатируемая, с наружным подогреваемым водостоком.

Покрытия полов:

  • в зале проката и холле – универсальное герметичное ПВХ-покрытие;

  • в санузлах, медицинских и служебных помещениях – керамогранитная плитка.

В качестве сетки армирования бетонных стяжек, отмосток и иных конструкций применяется стеклопластиковая арматура производства ООО «Татнефть-Пресскомпозит».

В благоустройстве и наружной системе водоотведения также предусматривается использование изделий производства ООО «Татнефть-Пресскомпозит».

Павильон проката горнолыжного инвентаря ГЛК «ЯН»
Фотография © Дмитрий Шведов / предоставлена Архитектурная мастерская Тотана Кузембаева
Павильон проката горнолыжного инвентаря ГЛК «ЯН»
Фотография © Дмитрий Шведов / предоставлена Архитектурная мастерская Тотана Кузембаева
Павильон проката горнолыжного инвентаря ГЛК «ЯН»
Фотография © Дмитрий Шведов / предоставлена Архитектурная мастерская Тотана Кузембаева
Павильон проката горнолыжного инвентаря ГЛК «ЯН»
Фотография © Дмитрий Шведов / предоставлена Архитектурная мастерская Тотана Кузембаева
Павильон проката горнолыжного инвентаря ГЛК «ЯН»
Фотография © Дмитрий Шведов / предоставлена Архитектурная мастерская Тотана Кузембаева
Павильон проката горнолыжного инвентаря ГЛК «ЯН»
Фотография © Дмитрий Шведов / предоставлена Архитектурная мастерская Тотана Кузембаева
Павильон проката горнолыжного инвентаря ГЛК «ЯН»
Фотография © Дмитрий Шведов / предоставлена Архитектурная мастерская Тотана Кузембаева
Павильон проката горнолыжного инвентаря ГЛК «ЯН»
Фотография © Дмитрий Шведов / предоставлена Архитектурная мастерская Тотана Кузембаева
Павильон проката горнолыжного инвентаря ГЛК «ЯН»
Фотография © Дмитрий Шведов / предоставлена Архитектурная мастерская Тотана Кузембаева
Павильон проката горнолыжного инвентаря ГЛК «ЯН»
Фотография © Дмитрий Шведов / предоставлена Архитектурная мастерская Тотана Кузембаева
Павильон проката горнолыжного инвентаря ГЛК «ЯН»
Фотография © Дмитрий Шведов / предоставлена Архитектурная мастерская Тотана Кузембаева
Павильон проката горнолыжного инвентаря ГЛК «ЯН»
Фотография © Дмитрий Шведов / предоставлена Архитектурная мастерская Тотана Кузембаева
Павильон проката горнолыжного инвентаря ГЛК «ЯН»
Фотография © Дмитрий Шведов / предоставлена Архитектурная мастерская Тотана Кузембаева
Павильон проката горнолыжного инвентаря ГЛК «ЯН»
Фотография © Дмитрий Шведов / предоставлена Архитектурная мастерская Тотана Кузембаева
Павильон проката горнолыжного инвентаря ГЛК «ЯН»
Фотография © Дмитрий Шведов / предоставлена Архитектурная мастерская Тотана Кузембаева
Павильон проката горнолыжного инвентаря ГЛК «ЯН»
Фотография © Дмитрий Шведов / предоставлена Архитектурная мастерская Тотана Кузембаева
Павильон проката горнолыжного инвентаря ГЛК «ЯН»
Фотография © Дмитрий Шведов / предоставлена Архитектурная мастерская Тотана Кузембаева
Павильон проката горнолыжного инвентаря ГЛК «ЯН»
Фотография © Дмитрий Шведов / предоставлена Архитектурная мастерская Тотана Кузембаева
Павильон проката горнолыжного инвентаря ГЛК «ЯН»
Фотография © Дмитрий Шведов / предоставлена Архитектурная мастерская Тотана Кузембаева
Павильон проката горнолыжного инвентаря ГЛК «ЯН»
Фотография © Дмитрий Шведов / предоставлена Архитектурная мастерская Тотана Кузембаева
Павильон проката горнолыжного инвентаря ГЛК «ЯН»
Фотография © Дмитрий Шведов / предоставлена Архитектурная мастерская Тотана Кузембаева
Павильон проката горнолыжного инвентаря ГЛК «ЯН»
Фотография © Дмитрий Шведов / предоставлена Архитектурная мастерская Тотана Кузембаева
Павильон проката горнолыжного инвентаря ГЛК «ЯН»
Фотография © Дмитрий Шведов / предоставлена Архитектурная мастерская Тотана Кузембаева
Павильон проката горнолыжного инвентаря ГЛК «ЯН»
Фотография © Дмитрий Шведов / предоставлена Архитектурная мастерская Тотана Кузембаева
Павильон проката горнолыжного инвентаря ГЛК «ЯН»
Фотография © Дмитрий Шведов / предоставлена Архитектурная мастерская Тотана Кузембаева
Павильон проката горнолыжного инвентаря ГЛК «ЯН»
Фотография © Дмитрий Шведов / предоставлена Архитектурная мастерская Тотана Кузембаева
Павильон проката горнолыжного инвентаря ГЛК «ЯН»
Фотография © Дмитрий Шведов / предоставлена Архитектурная мастерская Тотана Кузембаева
Павильон проката горнолыжного инвентаря ГЛК «ЯН»
Фотография © Дмитрий Шведов / предоставлена Архитектурная мастерская Тотана Кузембаева
Павильон проката горнолыжного инвентаря ГЛК «ЯН»
Фотография © Дмитрий Шведов / предоставлена Архитектурная мастерская Тотана Кузембаева
Павильон проката горнолыжного инвентаря ГЛК «ЯН»
Фотография © Дмитрий Шведов / предоставлена Архитектурная мастерская Тотана Кузембаева
Павильон проката горнолыжного инвентаря ГЛК «ЯН»
Фотография © Дмитрий Шведов / предоставлена Архитектурная мастерская Тотана Кузембаева
Павильон проката горнолыжного инвентаря ГЛК «ЯН»
Фотография © Дмитрий Шведов / предоставлена Архитектурная мастерская Тотана Кузембаева
Павильон проката горнолыжного инвентаря ГЛК «ЯН»
© Архитектурная мастерская Тотана Кузембаева
Павильон проката горнолыжного инвентаря ГЛК «ЯН»
© Архитектурная мастерская Тотана Кузембаева
Павильон проката горнолыжного инвентаря ГЛК «ЯН»
© Архитектурная мастерская Тотана Кузембаева
Павильон проката горнолыжного инвентаря ГЛК «ЯН»
© Архитектурная мастерская Тотана Кузембаева
Павильон проката горнолыжного инвентаря ГЛК «ЯН»
© Архитектурная мастерская Тотана Кузембаева
Павильон проката горнолыжного инвентаря ГЛК «ЯН»
© Архитектурная мастерская Тотана Кузембаева
Павильон проката горнолыжного инвентаря ГЛК «ЯН»
© Архитектурная мастерская Тотана Кузембаева
Павильон проката горнолыжного инвентаря ГЛК «ЯН»
© Архитектурная мастерская Тотана Кузембаева
Павильон проката горнолыжного инвентаря ГЛК «ЯН»
© Архитектурная мастерская Тотана Кузембаева
Павильон проката горнолыжного инвентаря ГЛК «ЯН»
© Архитектурная мастерская Тотана Кузембаева
Павильон проката горнолыжного инвентаря ГЛК «ЯН»
© Архитектурная мастерская Тотана Кузембаева
Павильон проката горнолыжного инвентаря ГЛК «ЯН». Схема планировочной организации земельного участка
© Архитектурная мастерская Тотана Кузембаева
Павильон проката горнолыжного инвентаря ГЛК «ЯН». Аксонометрия
© Архитектурная мастерская Тотана Кузембаева
Павильон проката горнолыжного инвентаря ГЛК «ЯН»
© Архитектурная мастерская Тотана Кузембаева
Павильон проката горнолыжного инвентаря ГЛК «ЯН»
© Архитектурная мастерская Тотана Кузембаева
Павильон проката горнолыжного инвентаря ГЛК «ЯН»
© Архитектурная мастерская Тотана Кузембаева
Павильон проката горнолыжного инвентаря ГЛК «ЯН»
© Архитектурная мастерская Тотана Кузембаева
Павильон проката горнолыжного инвентаря ГЛК «ЯН»
© Архитектурная мастерская Тотана Кузембаева
Павильон проката горнолыжного инвентаря ГЛК «ЯН». Разрез 1-1
© Архитектурная мастерская Тотана Кузембаева
Павильон проката горнолыжного инвентаря ГЛК «ЯН». Разрез 2-2
© Архитектурная мастерская Тотана Кузембаева
Павильон проката горнолыжного инвентаря ГЛК «ЯН»
© Архитектурная мастерская Тотана Кузембаева
Павильон проката горнолыжного инвентаря ГЛК «ЯН». Разрез 4-4
© Архитектурная мастерская Тотана Кузембаева

Архитекторы – партнеры Архи.ру:

  • Станислав Белых
  • Игорь Шварцман
  • Раис Баишев
  • Григорий Мустафин
  • Александр Котенков
  • Валерий Каняшин
  • Владислав Андреев
  • Дмитрий Остроумов
  • Константин Ходнев
  • Олег Мединский
  • Антон Яр-Скрябин
  • Юлий Борисов
  • Наталия Шилова
  • Игорь Членов
  • Михаил Давыдов
  • Александр Самарин
  • Евгений Подгорнов
  • Сергей Труханов
  • Николай Кикава
  • Сергей Кузнецов
  • Василий Крапивин
  • Андрей Романов
  • Андрей Гнездилов
  • Александра Кузьмина
  • Анастасия Абашева
  • Александр Скокан
  • Даниил Лоренц
  • Иван Кожин
  • Георгий Трофимов
  • Дмитрий Ликин
  • Сергей Скуратов
  • Степан Липгарт
  • Олег Шапиро
  • Наталья Сидорова
  • Никита Явейн
  • Энди Сноу
  • Юлия Тряскина
  • Александр Асадов
  • Антон Надточий
  • Евгений Новосадюк
  • Зураб Басария
  • Сергей Переслегин
  • Илья Машков
  • Ростислав Цайзер
  • Юлия Солдатенкова
  • Дмитрий Буш
  • Юлиана Княжевская
  • Елена Пучкова
  • Алексей Орлов
  • Всеволод Медведев
  • Сергей Чобан
  • Григориос Гавалидис
  • Владимир Плоткин
  • Андрей Асадов
  • Павел Андреев
  • Екатерина Кузнецова
  • Виталий Лутц
  • Михаил Канунников
  • Дмитрий Сухов
  • Сергей Никешкин
  • Ерлан Бекмухамедов
  • Татьяна Зульхарнеева
  • Марина Егорова
  • Евгений Зеленов
  • Вера Бутко
  • Полина Воеводина
  • Андрей Михайлов
  • Николай Переслегин
  • Тимур Абдуллаев
  • Екатерина Абдуллаева
  • Маргарита Авдышева
  • Левон Айрапетов
  • Александр Аношкин
  • Алексей Афоничкин
  • Владислав Бек-Булатов
  • Антон Белов
  • Татьяна Бузулукова
  • Петр Васильев
  • Данило Вукосавлевич
  • Алина Георгиевская
  • Павел Гордеев
  • Илья Гринберг
  • Никита Демидов
  • Никита Дергунов
  • Наталья Жилкина
  • Алексей Зародов
  • Екатерина Зырина
  • Алексей Ильин
  • Дарья Ильина
  • Олег Карлсон
  • Алексей Кибкало
  • Денис Кувшинников
  • Анна Куликова
  • Алексей Курков
  • Данил Куров
  • Мария Кутай
  • Евгений Кутай
  • Иван Кычкин
  • Антон Ладыгин
  • Дмитрий Лапин
  • Борис Левянт
  • Илья Левянт
  • Катерина Левянт
  • Валерий Лукомский
  • Антон Лукомский
  • Екатерина Ляпунова
  • Сергей Марков
  • Елена Мерцалова
  • Николай Миловидов
  • Станислав Михаловский
  • Сергей Мичурин
  • Олеся Могилевская
  • Мария Николаева
  • Дмитрий Овчаров
  • Сергей Пергаев
  • Виктор Перов
  • Алексей Полищук
  • Роман Пономарёв
  • Валерия Преображенская
  • Виктория Раубо
  • Василий Рыбаков
  • Николай Рыбаков
  • Мария Салех
  • Александр Стариков
  • Илья Уткин
  • Елисей Чакан
  • Бориша Чорович
  • Олег Шурыгин
  • Дмитрий Шурыгин

Проект из каталога (случайный выбор)

2-й Кадашевский пер
Сергей Скуратов, – 2024
2-й Кадашевский пер

Постройки и проекты (новые записи):

  • ЖК Ленинский проспект 59
  • MIDITI
  • Дом Спорта
  • Ежон Алтай
  • Freeform Home Design Challenge
  • Навесы Ленинградского вокзала
  • МФК Лотус
  • Общежития Новосибирского государственного университета (НГУ)
  • Детский сад в квартале «СЕТ»

Новости российской архитектуры:

Теплый берег
15.04.2026

Теплый берег

Надежда Снигирёва
Жизнерадостный декаданс
14.04.2026

Жизнерадостный декаданс

Валерий Лизунов, Екатерина Агеева, Елизавета Трушина
Я в домике
14.04.2026

Я в домике

Юлий Борисов
Под знаком красного
14.04.2026

Под знаком красного

Дмитрий Овчаров, Елена Мерцалова
Приближение таинства
14.04.2026

Приближение таинства

Иван Земляков