RSS
Yumms | Десертный бар и шоурум
Фотография © Варвара Топленникова / предоставлена Студия KIDZ

Yumms | Десертный бар и шоурум

информация:

  • статус
    проект
  • даты
    07.2021 / 09.2021 — 07.2022
  • region= area= address=пер. Кривоколенный 10, стр.6 country_t=Россия city_t=Москва
    место
    Москва пер. Кривоколенный 10, стр.6
  • координаты
    55.761490, 37.636406
  • функция
    Торгово-коммерческий / кафе
  • теги
    send.project
  • общая площадь
    65 м2
Егор Богомолов
Россия

авторский коллектив

Руководитель авторского коллектива: Анастасия Сафьяненко
Архитекторы: Анастасия Сафьяненко, Никита Воронцов, Юлия Аникина, Арианна Микая
Проектная документация: Леонид Соболев
Визуализатор: Татьяна Курочкина

партнеры, заказчики, смежники

​Разработка визуальной идентичности и стратегического позиционирования бренда: студия Choice

Заказчик: Марк Родовский, основатель бренда Marcelo Miracles

 
Yumms | Десертный бар и шоурум
Фотография © Варвара Топленникова / предоставлена Студия KIDZ
Yumms | Десертный бар и шоурум
Фотография © Варвара Топленникова / предоставлена Студия KIDZ

описание:

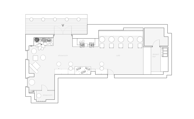
Дизайн интерьера черпал вдохновение непосредственно из бренда и его социального позиционирования, стремясь воплотить смелость, стиль и минимализм. Основная цветовая гамма была создана на основе очаровательных оттенков фиолетового и сиреневого, создавая освежающую атмосферу, напоминающую сладкий десерт.
 
Зайдя внутрь, вы сразу же попадаете в фокус пространства – примерочная, полностью укутанная в натуральный сиреневый мех, приковывает внимание каждого посетителя. Светлые стены и мебель дополнены металлическими акцентами и стратегически расположенными зеркалами, которые визуально расширяют пространство уютной обстановки и уводят от привычных ассоциаций с типичной кофейней.
 
Важнейшей задачей дизайна было вызвать интерес посетителей к предложениям бренда. Хромированные металлические направляющие элегантно демонстрируют предметы одежды, а ниши, заполненные фиолетовым гравием, сферическими подвесными светильниками и натуральными камнями большого размера, интегрированными с пышной зеленью, создают привлекательную презентацию.
Yumms | Десертный бар и шоурум
Фотография © Варвара Топленникова / предоставлена Студия KIDZ
Yumms | Десертный бар и шоурум
Фотография © Варвара Топленникова / предоставлена Студия KIDZ
Yumms | Десертный бар и шоурум
Фотография © Варвара Топленникова / предоставлена Студия KIDZ
Yumms | Десертный бар и шоурум
Фотография © Варвара Топленникова / предоставлена Студия KIDZ
Yumms | Десертный бар и шоурум
Фотография © Варвара Топленникова / предоставлена Студия KIDZ
Yumms | Десертный бар и шоурум
Фотография © Варвара Топленникова / предоставлена Студия KIDZ
Yumms | Десертный бар и шоурум
Фотография © Варвара Топленникова / предоставлена Студия KIDZ
Yumms | Десертный бар и шоурум
Фотография © Варвара Топленникова / предоставлена Студия KIDZ
Yumms | Десертный бар и шоурум
Фотография © Варвара Топленникова / предоставлена Студия KIDZ
Yumms | Десертный бар и шоурум
Фотография © Варвара Топленникова / предоставлена Студия KIDZ
Yumms | Десертный бар и шоурум
Фотография © Варвара Топленникова / предоставлена Студия KIDZ
Yumms | Десертный бар и шоурум
Фотография © Варвара Топленникова / предоставлена Студия KIDZ
Yumms | Десертный бар и шоурум
Фотография © Варвара Топленникова / предоставлена Студия KIDZ
Yumms | Десертный бар и шоурум
Фотография © Варвара Топленникова / предоставлена Студия KIDZ
Yumms | Десертный бар и шоурум
Фотография © Варвара Топленникова / предоставлена Студия KIDZ
Yumms | Десертный бар и шоурум
Фотография © Варвара Топленникова / предоставлена Студия KIDZ
Yumms | Десертный бар и шоурум
Фотография © Варвара Топленникова / предоставлена Студия KIDZ
Yumms | Десертный бар и шоурум
© Студия KIDZ
Yumms | Десертный бар и шоурум
© Студия KIDZ

Архитекторы – партнеры Архи.ру:

  • Антон Надточий
  • Татьяна Зульхарнеева
  • Михаил Давыдов
  • Екатерина Кузнецова
  • Евгений Подгорнов
  • Юлиана Княжевская
  • Андрей Гнездилов
  • Георгий Трофимов
  • Раис Баишев
  • Дмитрий Сухов
  • Николай Кикава
  • Владимир Плоткин
  • Юлия Тряскина
  • Александр Асадов
  • Алексей Орлов
  • Станислав Белых
  • Валерий Каняшин
  • Антон Яр-Скрябин
  • Андрей Романов
  • Александр Скокан
  • Виталий Лутц
  • Дмитрий Остроумов
  • Вера Бутко
  • Дмитрий Буш
  • Сергей Чобан
  • Александр Самарин
  • Анастасия Абашева
  • Сергей Переслегин
  • Николай Переслегин
  • Григориос Гавалидис
  • Юлия Солдатенкова
  • Сергей Скуратов
  • Марина Егорова
  • Никита Явейн
  • Андрей Михайлов
  • Энди Сноу
  • Олег Шапиро
  • Ерлан Бекмухамедов
  • Павел Андреев
  • Юлий Борисов
  • Василий Крапивин
  • Полина Воеводина
  • Евгений Зеленов
  • Евгений Новосадюк
  • Степан Липгарт
  • Сергей Кузнецов
  • Олег Мединский
  • Игорь Членов
  • Сергей Труханов
  • Дмитрий Ликин
  • Александра Кузьмина
  • Андрей Асадов
  • Всеволод Медведев
  • Ростислав Цайзер
  • Илья Машков
  • Наталия Шилова
  • Владислав Андреев
  • Наталья Сидорова
  • Игорь Шварцман
  • Григорий Мустафин
  • Константин Ходнев
  • Даниил Лоренц
  • Александр Котенков
  • Елена Пучкова
  • Зураб Басария
  • Иван Кожин
  • Михаил Канунников
  • Сергей Никешкин
  • Тимур Абдуллаев
  • Екатерина Абдуллаева
  • Маргарита Авдышева
  • Левон Айрапетов
  • Александр Аношкин
  • Алексей Афоничкин
  • Владислав Бек-Булатов
  • Антон Белов
  • Татьяна Бузулукова
  • Петр Васильев
  • Данило Вукосавлевич
  • Алина Георгиевская
  • Павел Гордеев
  • Илья Гринберг
  • Никита Демидов
  • Никита Дергунов
  • Наталья Жилкина
  • Алексей Зародов
  • Екатерина Зырина
  • Алексей Ильин
  • Дарья Ильина
  • Олег Карлсон
  • Алексей Кибкало
  • Денис Кувшинников
  • Анна Куликова
  • Алексей Курков
  • Данил Куров
  • Мария Кутай
  • Евгений Кутай
  • Иван Кычкин
  • Антон Ладыгин
  • Дмитрий Лапин
  • Илья Левянт
  • Катерина Левянт
  • Борис Левянт
  • Валерий Лукомский
  • Антон Лукомский
  • Екатерина Ляпунова
  • Сергей Марков
  • Елена Мерцалова
  • Николай Миловидов
  • Станислав Михаловский
  • Сергей Мичурин
  • Олеся Могилевская
  • Мария Николаева
  • Дмитрий Овчаров
  • Сергей Пергаев
  • Виктор Перов
  • Алексей Полищук
  • Роман Пономарёв
  • Валерия Преображенская
  • Виктория Раубо
  • Василий Рыбаков
  • Николай Рыбаков
  • Мария Салех
  • Александр Стариков
  • Илья Уткин
  • Елисей Чакан
  • Бориша Чорович
  • Олег Шурыгин
  • Дмитрий Шурыгин

Проект из каталога (случайный выбор)

Отель Radisson Blu.  Конкурс 2015
Иван Рубежанский, 2015 – 2015
Отель Radisson Blu. Конкурс 2015

Постройки и проекты (новые записи):

  • ЖК Ленинский проспект 59
  • Офис компании АльфаСтрахование
  • MIDITI
  • Офис компании Kept
  • Дом Спорта
  • Ежон Алтай
  • Freeform Home Design Challenge
  • Навесы Ленинградского вокзала
  • МФК Лотус

Новости российской архитектуры:

Теплый берег
15.04.2026

Теплый берег

Надежда Снигирёва
Жизнерадостный декаданс
14.04.2026

Жизнерадостный декаданс

Валерий Лизунов, Екатерина Агеева, Елизавета Трушина
Я в домике
14.04.2026

Я в домике

Юлий Борисов
Под знаком красного
14.04.2026

Под знаком красного

Дмитрий Овчаров, Елена Мерцалова
Приближение таинства
14.04.2026

Приближение таинства

Иван Земляков