RSS
Ежон Алтай
© Padhod Architects

Ежон Алтай

информация:

  • статус
    проект
  • даты
    09.2025
  • region=Республика Алтай area=Турочакский район address=Урочище Кордон Ежон country_t=Россия city_t=None
    место
    Республика Алтай Турочакский район Урочище Кордон Ежон
  • координаты
    51.616002, 87.645299
  • функция
    Туризм/здравоохранение / Гостиничный комплекс
  • площадь участка
    8,3 га
  • общая площадь
    562,6 м2
  • площадь жилая
    93,09 м2
  • высота
    11,17
  • этажность
    1
  • строительный объем
    6 580,2 м3
Елисей Чакан
Padhod Architects

авторский коллектив

Чакан Елисей, Чорович Бориша, Мария Чегар, Рыльцова Маргарита, Сотникова Александра

Ежон Алтай
© Padhod Architects
Ежон Алтай
© Padhod Architects

описание:

Бюро Padhod Architects разработало концепцию проекта «Ежон Алтай» – бутикового гостиничного комплекса в акватории Телецкого озера на Алтае. Проект построен на культурной идентичности и традициях алтайского зодчества: пространство задумано как проводник между человеком, первозданным ландшафтом и шаманским наследием.

Требование заказчика заключалось в бережной интеграции комплекса в ландшафт (озеро – сакральное место для алтайцев), приватности размещения гостей и архитектурной выразительности без агрессии к природе.

Авторы проекта переосмыслили алтайский аил (традиционное жилище коренных народов): конические силуэты с устремленными скатами крыш символизируют связь с небом и обеспечивают компактность. Это пример деликатной интеграции в ландшафт с минимальным вмешательством в природную среду.

Контраст материалов усиливает эмоциональный опыт гостя: снаружи представлена брутальная обожженная древесина, внутри – теплое дерево и тактильные текстуры. Зонирование задает баланс приватности и коллективного опыта: уединение в гостевых домах, очищение в бане, созерцание с пирса, совместное творчество и чувство сообщества.

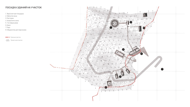
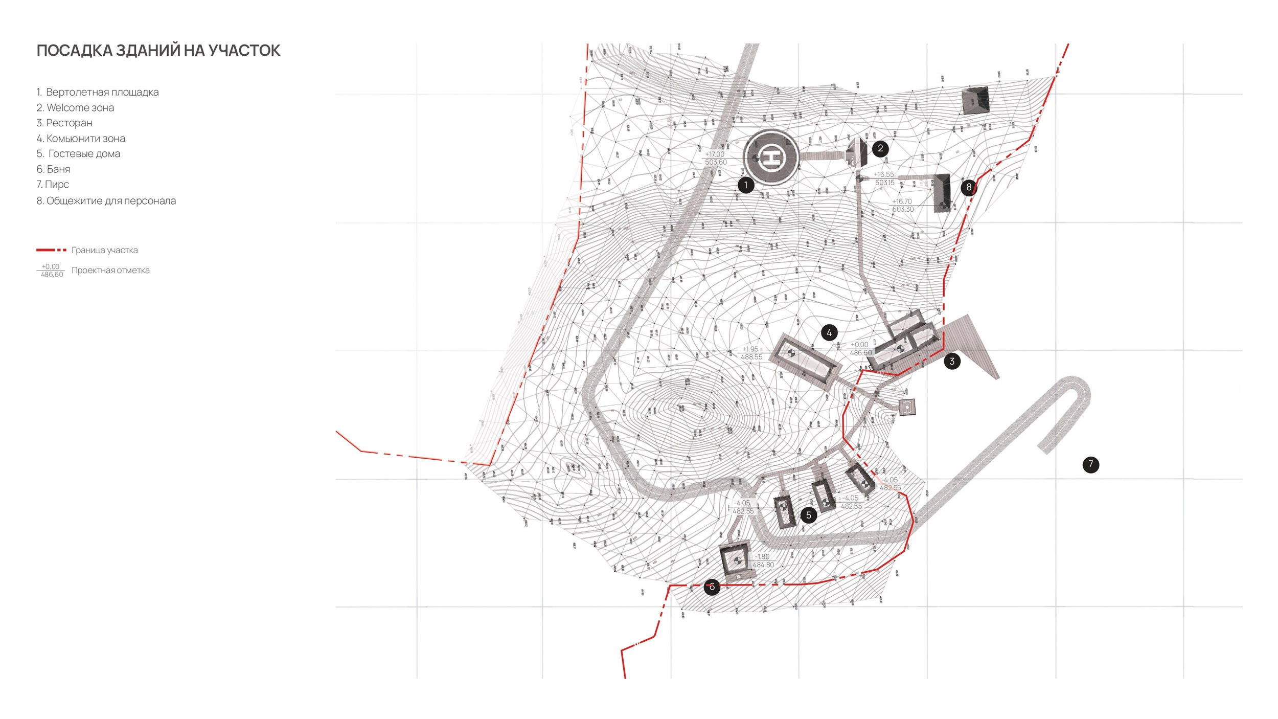
Комплекс включает вертолетную площадку, гостевую зону, ресторан, комьюнити-пространство, гостевые дома, баню, пирс и сервисный блок. Участок находится в удаленной природной зоне (ближайшие малые населенные пункты находятся в 20 километрах), поэтому комплекс становится местом для тотального замедления и подлинного переживания природы и себя.

Ежон Алтай
© Padhod Architects
Ежон Алтай
© Padhod Architects
Ежон Алтай
© Padhod Architects
Ежон Алтай
© Padhod Architects
Ежон Алтай
© Padhod Architects
Ежон Алтай
© Padhod Architects
Ежон Алтай
© Padhod Architects
Ежон Алтай
© Padhod Architects
Ежон Алтай
© Padhod Architects
Ежон Алтай
© Padhod Architects
Ежон Алтай
© Padhod Architects
Ежон Алтай
© Padhod Architects
Генплан
© Padhod Architects
Комьюнити зона, разрез
© Padhod Architects
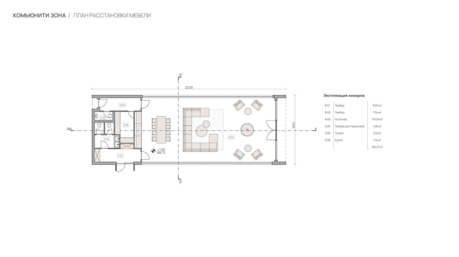
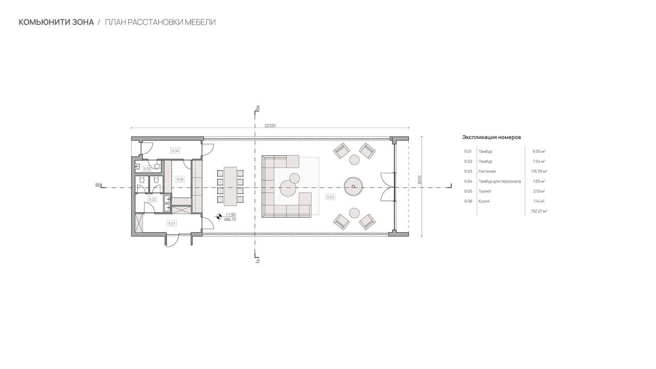
Комьюнити зона, план расстановки мебели
© Padhod Architects
Баня, разрез
© Padhod Architects
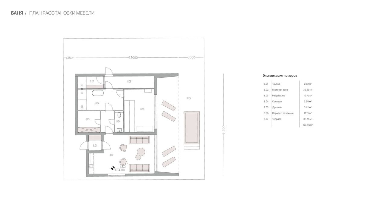
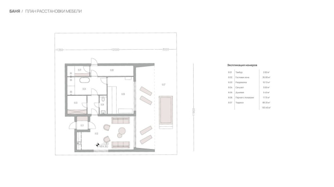
Баня, план расстановки мебели
© Padhod Architects
Ресторан, разрез
© Padhod Architects
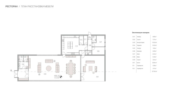
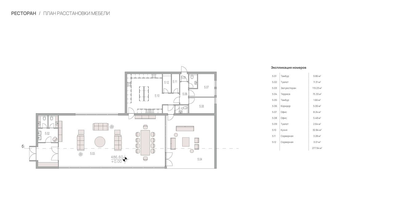
Ресторан, план расстановки мебели
© Padhod Architects
Гостевой дом, разрез
© Padhod Architects
Гостевой дом, план расстановки мебели
© Padhod Architects

Архитекторы – партнеры Архи.ру:

  • Андрей Асадов
  • Николай Кикава
  • Евгений Зеленов
  • Георгий Трофимов
  • Иван Кожин
  • Игорь Членов
  • Александр Котенков
  • Елена Пучкова
  • Вера Бутко
  • Владимир Плоткин
  • Наталия Шилова
  • Сергей Переслегин
  • Андрей Михайлов
  • Юлия Солдатенкова
  • Сергей Кузнецов
  • Михаил Давыдов
  • Екатерина Кузнецова
  • Илья Машков
  • Сергей Чобан
  • Евгений Подгорнов
  • Григорий Мустафин
  • Юлия Тряскина
  • Юлий Борисов
  • Татьяна Зульхарнеева
  • Станислав Белых
  • Полина Воеводина
  • Игорь Шварцман
  • Павел Андреев
  • Дмитрий Остроумов
  • Валерий Каняшин
  • Дмитрий Сухов
  • Анастасия Абашева
  • Даниил Лоренц
  • Всеволод Медведев
  • Раис Баишев
  • Дмитрий Буш
  • Алексей Орлов
  • Константин Ходнев
  • Дмитрий Ликин
  • Виталий Лутц
  • Николай Переслегин
  • Александр Самарин
  • Антон Яр-Скрябин
  • Энди Сноу
  • Сергей Скуратов
  • Михаил Канунников
  • Александр Асадов
  • Марина Егорова
  • Александра Кузьмина
  • Никита Явейн
  • Зураб Басария
  • Олег Шапиро
  • Борис Воскобойников
  • Наталья Сидорова
  • Антон Надточий
  • Ерлан Бекмухамедов
  • Александр Скокан
  • Мария Ахременкова
  • Сергей Труханов
  • Григориос Гавалидис
  • Олег Мединский
  • Юлиана Княжевская
  • Владислав Андреев
  • Степан Липгарт
  • Евгений Новосадюк
  • Андрей Романов
  • Василий Крапивин
  • Сергей Никешкин
  • Ростислав Цайзер
  • Андрей Гнездилов
  • Тимур Абдуллаев
  • Екатерина Абдуллаева
  • Маргарита Авдышева
  • Левон Айрапетов
  • Александр Аношкин
  • Алексей Афоничкин
  • Владислав Бек-Булатов
  • Антон Белов
  • Татьяна Бузулукова
  • Петр Васильев
  • Данило Вукосавлевич
  • Андрей Вырва
  • Алина Георгиевская
  • Павел Гордеев
  • Илья Гринберг
  • Никита Демидов
  • Никита Дергунов
  • Наталья Жилкина
  • Алексей Зародов
  • Екатерина Зырина
  • Алексей Ильин
  • Дарья Ильина
  • Олег Карлсон
  • Алексей Кибкало
  • Денис Кувшинников
  • Анна Куликова
  • Алексей Курков
  • Данил Куров
  • Мария Кутай
  • Евгений Кутай
  • Иван Кычкин
  • Антон Ладыгин
  • Дмитрий Лапин
  • Илья Левянт
  • Катерина Левянт
  • Борис Левянт
  • Валерий Лукомский
  • Антон Лукомский
  • Екатерина Ляпунова
  • Иса Магомедов
  • Сергей Марков
  • Елена Мерцалова
  • Николай Миловидов
  • Станислав Михаловский
  • Сергей Мичурин
  • Олеся Могилевская
  • Филипп Никандров
  • Мария Николаева
  • Дмитрий Овчаров
  • Сергей Пергаев
  • Виктор Перов
  • Алексей Полищук
  • Роман Пономарёв
  • Валерия Преображенская
  • Виктория Раубо
  • Василий Рыбаков
  • Николай Рыбаков
  • Мария Салех
  • Александр Стариков
  • Илья Уткин
  • Елисей Чакан
  • Евгения Чернышева
  • Бориша Чорович
  • Олег Шурыгин
  • Дмитрий Шурыгин

Проект из каталога (случайный выбор)

Жилой комплекс на Песчаной улице
Всеволод Медведев, Зураб Басария, Михаил Канунников, Олег Мединский, 2012
Жилой комплекс на Песчаной улице

Постройки и проекты (новые записи):

  • Павильон  Идеал
  • Флагманская кофейня Дринкит
  • Гостиница в Чите
  • ЖК Квартал 64
  • Деловое пространство «ПЛЭЙН»
  • Конкурсный проект ФИЦ / ТПО «Резерв»
  • Porta
  • Детский сад на 200 мест в Жилино-1
  • Архитектурная концепция кластера Ломоносов-2

Новости российской архитектуры:

Красная карточка за авторское право
25.05.2026

Красная карточка за авторское право

Алексей Орлов, Дмитрий Буш, Ерлан Бекмухамедов
Новая коллекция МАФов
25.05.2026

Новая коллекция МАФов

Сергей Пергаев
Хвост кометы
22.05.2026

Хвост кометы

Андрей Волынцев, Анна Волынцева
На глубине 101
22.05.2026

На глубине 101

Дарья Белякова