RSS
Городская детская библиотека Енисейска
Фотография © Анна Рыжкова / предоставлена Дизайн Сервис

Городская детская библиотека Енисейска

информация:

  • статус
    проект
  • даты
    2024 / — 2025
  • region= area= address=ул. Петровского, 7 country_t=Россия city_t=Енисейск
    место
    Енисейск ул. Петровского, 7
  • координаты
    58.455750, 92.182041
  • функция
    Образование и наука / Библиотека
  • теги
    send.project
  • общая площадь
    400 м2
Юлия Макеева
Россия

авторский коллектив

Макеева Юлия, Яцкевич Анастасия – ведущие дизайнеры общественного интерьера; Демарчук Анастасия – подбор и комплектация; Бакшетская Даная – визуализация интерьера

Городская детская библиотека Енисейска
Фотография © Анна Рыжкова / предоставлена Дизайн Сервис
Городская детская библиотека Енисейска
Фотография © Анна Рыжкова / предоставлена Дизайн Сервис

описание:

Детская библиотека расположена в здании памятника архитектуры – бывшей типографии. Этот проект стал пространством, где встречаются история и современность. Особняк XIX века, являющийся архитектурным наследием города Енисейска, сохранил дух своего времени: сводчатые потолки, формы окон и перекрытий создают неповторимый образ интерьеров детской библиотеки.

Продолжая историческое наследие, в проекте предусмотрен медиа-зал – пространство, где дети регулярно выпускают собственную газету.

Работа над визуальным наполнением библиотеки началась с разработки фирменного стиля и логотипа учреждения.

Дизайн-сервис взял за основу идею, предложенную главным художником и руководством библиотеки: символом стал соболь, читающий книгу – главный символ города Енисейска, изображённый на его гербе. Соболь был размещён в «окошке» библиотеки, что перекликается с архитектурой здания, одного из самых узнаваемых и красивых в городе.

Детская библиотека – это живое, адаптивное пространство. Здесь есть место для сказки: стилизация под русскую печь, сцена, два книжных зала с трансформируемой мебелью. Это место для творчества и общения.

Дизайн-проект и реализация выполнялись с учётом бюджета, с акцентом на многофункциональность решений. Так появились трансформируемые столы и складные штабелируемые стулья в каждом помещении – функциональные и удобные элементы современного общественного пространства.

Городская детская библиотека Енисейска
Фотография © Анна Рыжкова / предоставлена Дизайн Сервис
Городская детская библиотека Енисейска
Фотография © Анна Рыжкова / предоставлена Дизайн Сервис
Городская детская библиотека Енисейска
Фотография © Анна Рыжкова / предоставлена Дизайн Сервис
Городская детская библиотека Енисейска
Фотография © Анна Рыжкова / предоставлена Дизайн Сервис
Городская детская библиотека Енисейска
Фотография © Анна Рыжкова / предоставлена Дизайн Сервис
Городская детская библиотека Енисейска
Фотография © Анна Рыжкова / предоставлена Дизайн Сервис
Городская детская библиотека Енисейска
Фотография © Анна Рыжкова / предоставлена Дизайн Сервис
Городская детская библиотека Енисейска
Фотография © Анна Рыжкова / предоставлена Дизайн Сервис
Городская детская библиотека Енисейска
Фотография © Анна Рыжкова / предоставлена Дизайн Сервис
Городская детская библиотека Енисейска
Фотография © Анна Рыжкова / предоставлена Дизайн Сервис
Городская детская библиотека Енисейска
Фотография © Анна Рыжкова / предоставлена Дизайн Сервис
Городская детская библиотека Енисейска
Фотография © Анна Рыжкова / предоставлена Дизайн Сервис
Городская детская библиотека Енисейска
Фотография © Анна Рыжкова / предоставлена Дизайн Сервис
Городская детская библиотека Енисейска
Фотография © Анна Рыжкова / предоставлена Дизайн Сервис
Городская детская библиотека Енисейска
Фотография © Анна Рыжкова / предоставлена Дизайн Сервис
Городская детская библиотека Енисейска
Фотография © Анна Рыжкова / предоставлена Дизайн Сервис
Городская детская библиотека Енисейска
Фотография © Анна Рыжкова / предоставлена Дизайн Сервис
Городская детская библиотека Енисейска
Фотография © Анна Рыжкова / предоставлена Дизайн Сервис
Городская детская библиотека Енисейска
Фотография © Анна Рыжкова / предоставлена Дизайн Сервис
Городская детская библиотека Енисейска
Фотография © Анна Рыжкова / предоставлена Дизайн Сервис
Городская детская библиотека Енисейска
Фотография © Анна Рыжкова / предоставлена Дизайн Сервис
Городская детская библиотека Енисейска
Фотография © Анна Рыжкова / предоставлена Дизайн Сервис
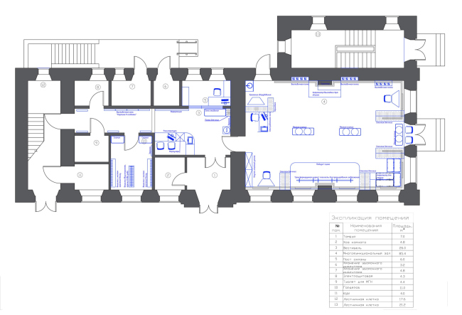
Городская детская библиотека Енисейска. План 1 этажа. Вариант 3. Проведение масетр-классов
© Дизайн Сервис
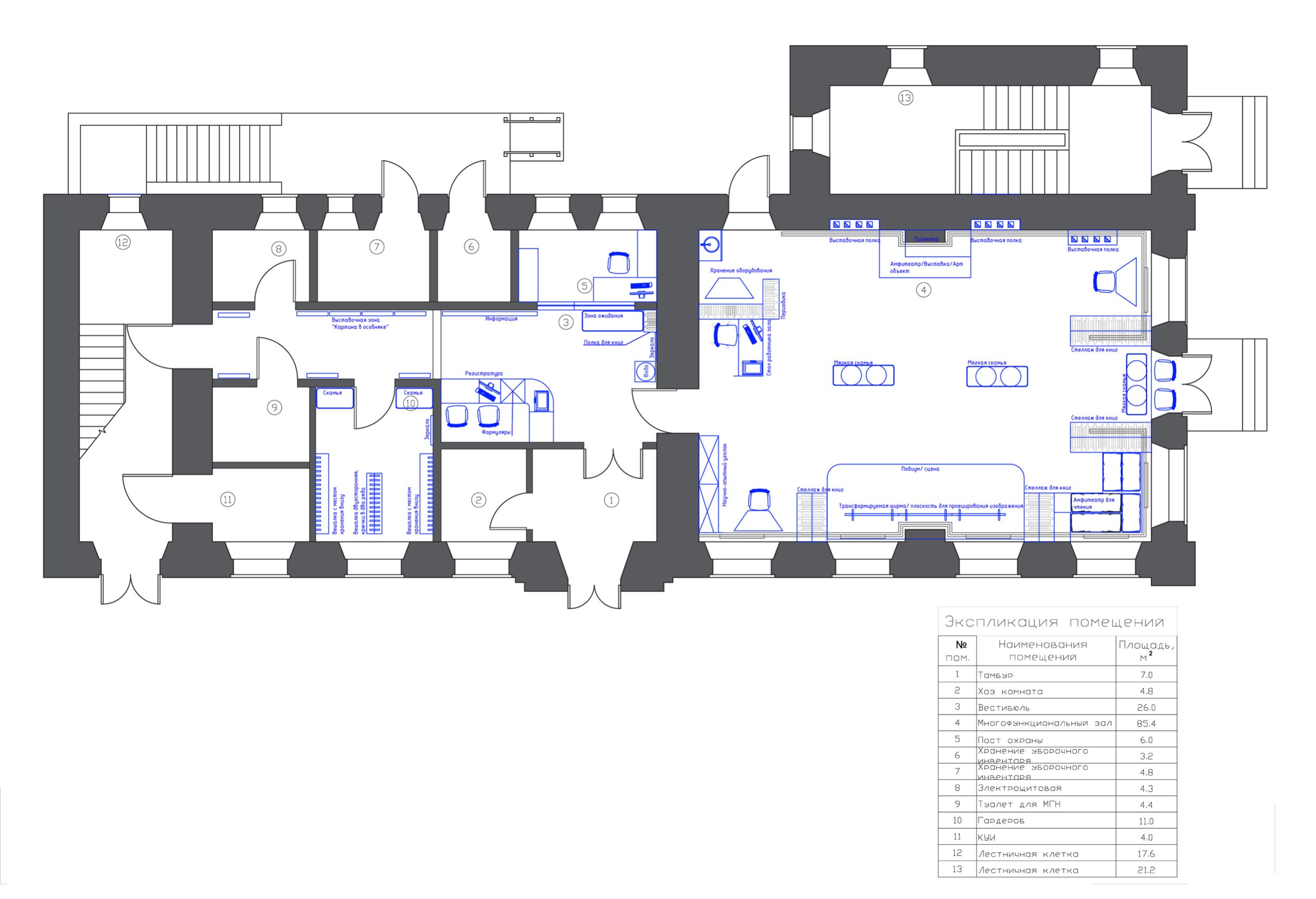
Городская детская библиотека Енисейска. План 1 этажа. Вариант 2. Проведение мероприятий
© Дизайн Сервис
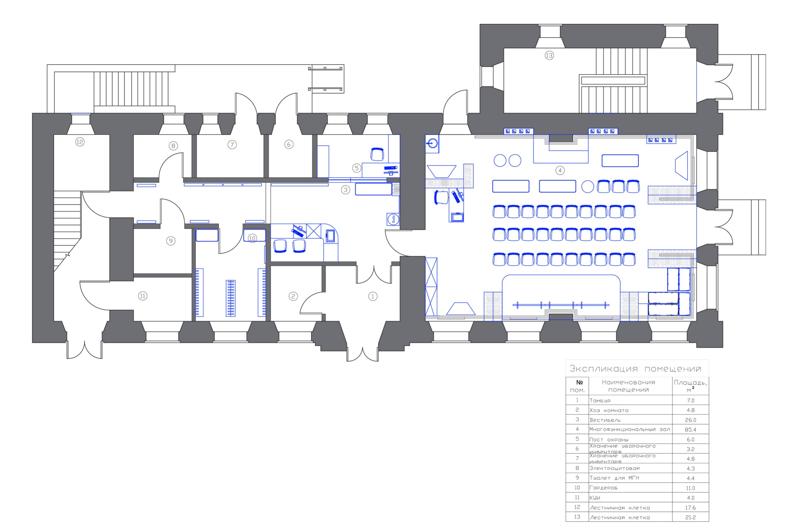
Городская детская библиотека Енисейска. План 1 этажа. Вариант 1. Ежедневное рабочее пространство
© Дизайн Сервис
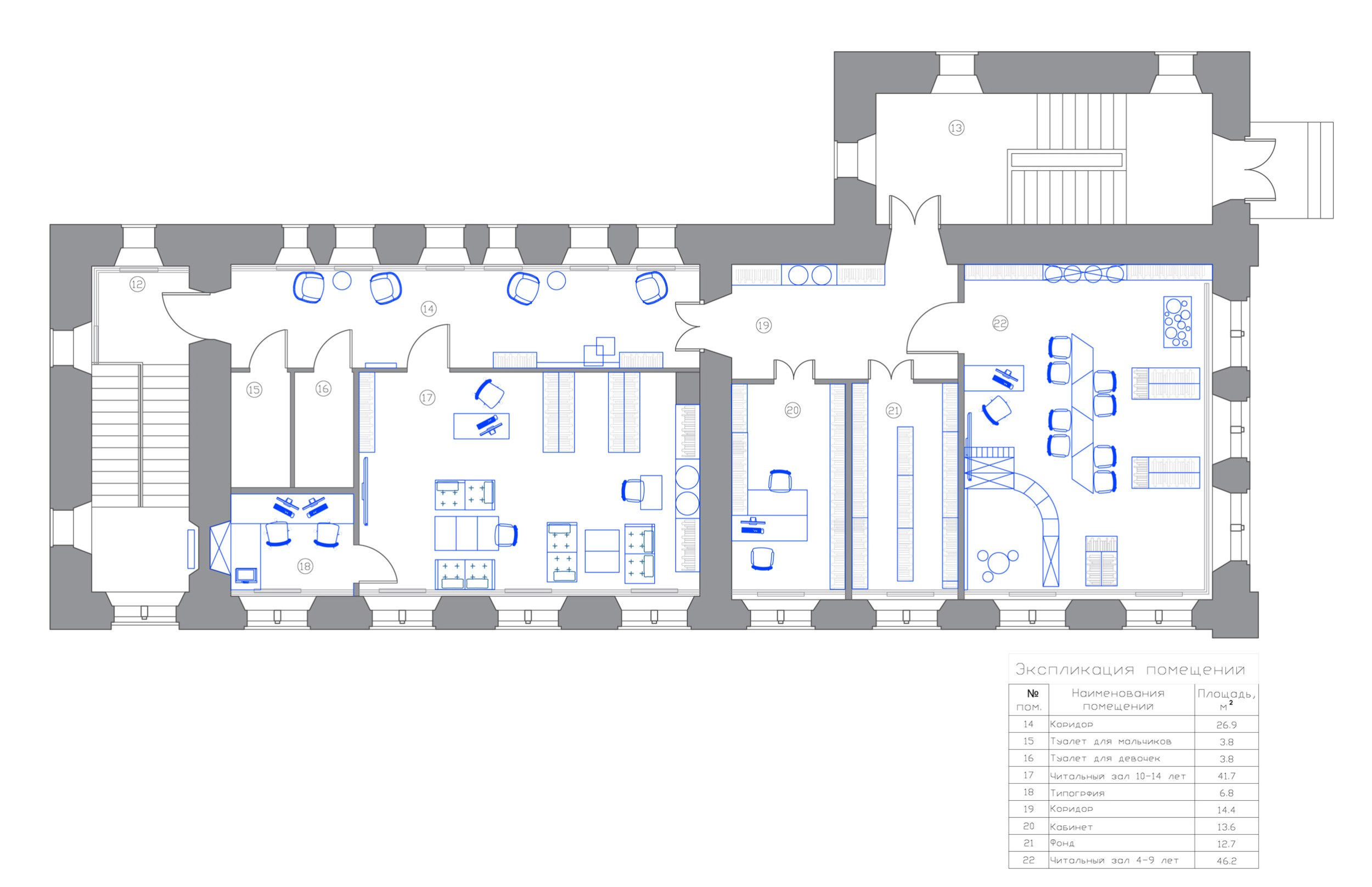
Городская детская библиотека Енисейска. План 2 этажа. Вариант 1. Ежедневное рабочее пространство
© Дизайн Сервис
Городская детская библиотека Енисейска. План 2 этажа. Вариант 2. Проведение мероприятий
© Дизайн Сервис

Архитекторы – партнеры Архи.ру:

  • Анастасия Абашева
  • Михаил Канунников
  • Юлиана Княжевская
  • Дмитрий Буш
  • Алексей Орлов
  • Андрей Гнездилов
  • Андрей Романов
  • Сергей Скуратов
  • Евгений Новосадюк
  • Никита Явейн
  • Андрей Чуйков
  • Алексей Гинзбург
  • Станислав Белых
  • Наталья Сидорова
  • Ростислав Цайзер
  • Олег Мединский
  • Сергей Чобан
  • Александр Асадов
  • Даниил Лоренц
  • Виталий Лутц
  • Григорий Мустафин
  • Олег Шапиро
  • Сергей Переслегин
  • Всеволод Медведев
  • Юлий Борисов
  • Игорь Шварцман
  • Иван Кожин
  • Раис Баишев
  • Ерлан Бекмухамедов
  • Степан Липгарт
  • Юлия Солдатенкова
  • Вера Бутко
  • Дмитрий Ликин
  • Дмитрий Остроумов
  • Антон Надточий
  • Полина Воеводина
  • Сергей Никешкин
  • Владислав Андреев
  • Павел Андреев
  • Елена Пучкова
  • Евгений Подгорнов
  • Анна Иванова
  • Зураб Басария
  • Игорь Членов
  • Николай Переслегин
  • Наталия Шилова
  • Энди Сноу
  • Александр Котенков
  • Татьяна Зульхарнеева
  • Андрей Асадов
  • Марина Егорова
  • Михаил Давыдов
  • Андрей Михайлов
  • Сергей Кузнецов
  • Дмитрий Сухов
  • Евгений Зеленов
  • Александр Скокан
  • Александр Самарин
  • Екатерина Кузнецова
  • Роман Леонидов
  • Валерий Каняшин
  • Александра Кузьмина
  • Юлия Тряскина
  • Сергей Труханов
  • Константин Ходнев
  • Владимир Плоткин
  • Григориос Гавалидис
  • Георгий Трофимов
  • Илья Машков
  • Антон Яр-Скрябин
  • Василий Крапивин
  • Николай Кикава
  • Тимур Абдуллаев
  • Екатерина Абдуллаева
  • Маргарита Авдышева
  • Левон Айрапетов
  • Александр Аношкин
  • Алексей Афоничкин
  • Владислав Бек-Булатов
  • Антон Белов
  • Татьяна Бузулукова
  • Петр Васильев
  • Алина Георгиевская
  • Павел Гордеев
  • Илья Гринберг
  • Никита Демидов
  • Никита Дергунов
  • Наталья Жилкина
  • Алексей Зародов
  • Екатерина Зырина
  • Алексей Ильин
  • Дарья Ильина
  • Олег Карлсон
  • Алексей Кибкало
  • Денис Кувшинников
  • Анна Куликова
  • Алексей Курков
  • Алексей Курков
  • Данил Куров
  • Мария Кутай
  • Евгений Кутай
  • Антон Ладыгин
  • Антон Ладыгин
  • Дмитрий Лапин
  • Катерина Левянт
  • Илья Левянт
  • Борис Левянт
  • Антон Лукомский
  • Валерий Лукомский
  • Екатерина Ляпунова
  • Сергей Марков
  • Николай Миловидов
  • Станислав Михаловский
  • Олеся Могилевская
  • Мария Николаева
  • Виктор Перов
  • Алексей Полищук
  • Роман Пономарёв
  • Валерия Преображенская
  • Виктория Раубо
  • Василий Рыбаков
  • Николай Рыбаков
  • Мария Салех
  • Александр Стариков
  • Илья Уткин
  • Дмитрий Шурыгин
  • Олег Шурыгин

Проект из каталога (случайный выбор)

Штаб-квартира компании E-Plus
Сергей Чобан, 2007 – 2009
Штаб-квартира компании E-Plus

Постройки и проекты (новые записи):

  • ЖК Лесное ожерелье
  • Клубный дом «Хамовники 12»
  • Проект общественно-делового комплекса у станции метро «Ботанический Сад» / Genpro
  • Проект общественно-делового комплекса у станции метро «Ботанический Сад» / UNK
  • Бизнес-центр «Триград»
  • БЦ в Раменках
  • Бизнес-центр (на месте ТЦ «Старт»)
  • DELO HOUSE 3.2 с флигелем
  • Благотворительный фонд им. Алены Петровой

Новости российской архитектуры:

Стены помогают
04.03.2026

Стены помогают

Андрей Михайлов, Сергей Никешкин
Лодка, раскрой паруса
03.03.2026

Лодка, раскрой паруса

Юлий Борисов
Карельский разлом
02.03.2026

Карельский разлом

Евгений Задорожний
Обзор проектов 23-28 февраля
01.03.2026

Обзор проектов 23-28 февраля

Евгений Герасимов, Марко Казамонти