ЖК Stone Grain
© Kleinewelt Architekten / девелопер Stone
БЦ Stone Grain
информация:
-
статус
в процессе реализации -
даты
2024 — 03.2025 / 03.2025 -
место
Москва Старокалужское шоссе, 64 -
координаты
55.659514, 37.535308 -
функция
Жилой / жилой комплекс -
площадь участка
1,3 га -
общая площадь
69000 м2 -
Высота 20 и 45 этажей
Класс жилья: Бизнес+
Паркинг: подземный двухуровневый -
ссылки:

Георгий Трофимов
Georgy Trofimov / Россия
Николай Переслегин
Nikolay Pereslegin / Россия
Сергей Переслегин
Sergey Pereslegin / РоссияKleinewelt Architekten
Kleinewelt Architekten / РоссияЖК Stone Grain
© Kleinewelt Architekten / девелопер Stone
ЖК Stone Grain
© Kleinewelt Architekten / девелопер Stone
описание:
https://grain-stone.com/, 2025:
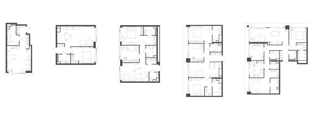
Архитектурная концепция комплекса основывается на контрасте и противопоставлении. Жилые здания варьируются по высоте и форме. Центральным элементом станет 45-этажная башня высотой 165 метров, в то время как рядом расположится более компактная 20-этажная башня, которая будет уравновешивать ансамбль и придаст комплексу гармоничный вид, объединяющий монументальность высотной архитектуры с уютом и приватностью. В высотной башне завершающие модули имеют ступенчатую форму, что позволяет создавать видовые террасы в квартирах. Фасад будет украшен выразительными архитектурными элементами – выделенными поясами с галерейными балконами.
Жилые башни комплекса STONE Grain обладают уникальными архитектурными решениями, сохраняя при этом общий дизайн-код. Гармония их внешнего вида достигается благодаря единой цветовой палитре и увеличенной площади остекления. Использование градиента от темно-серого до белого оттенка придаст жилым корпусам легкость и усилит ощущение воздушной перспективы.
Для удобства жителей предусмотрены коммерческие помещения на первых этажах зданий, где разместятся магазины, кафе и службы быта. Это позволит жителям иметь всё необходимое под рукой и сократит время на повседневные дела.
Также в жилом комплексе будет создана зона для парковки автомобилей с достаточным количеством мест, включая зарядные станции для электромобилей. Это сделает жизнь ещё более комфортной и удобной.
https://stonegrain.com/, 2025:
STONE Grain – это новый жилой комплекс бизнес+ класса, созданный по принципам европейской архитектуры, где комфорт, стиль и функциональность соединяются в гармоничное пространство для жизни. Комплекс расположен в одном из самых развитых районов Москвы – на Юго-Западе, рядом с метро Калужская. Здесь сочетаются статус, инфраструктура и природное окружение, создавая уникальную атмосферу для жизни в ритме города.
В основе архитектурной концепции – монументальность и лаконичность, подчеркивающие статус будущих жителей. STONE Grain – это не просто жильё, а продуманный до мелочей проект: от панорамных видов на МГУ и Воронцовский парк до изысканных общественных пространств и функциональных планировок. Комплекс разработан с учётом требований нового подтипа бизнес-класса – бизнес+, что означает высокий уровень сервиса, улучшенные планировочные решения и инновационные технологии.
STONE Grain предлагает качественно новый уровень жизни, где каждая деталь – от ландшафта до отделки – подчинена принципам комфорта и эстетики. Здесь нет случайных решений – всё создано для тех, кто ценит индивидуальность, пространство и современные стандарты городской жизни.
ЖК Stone Grain
© Kleinewelt Architekten / девелопер Stone
ЖК Stone Grain
© Kleinewelt Architekten / девелопер Stone
ЖК Stone Grain
© Kleinewelt Architekten / девелопер Stone
ЖК Stone Grain
© Kleinewelt Architekten / девелопер Stone
ЖК Stone Grain
© Kleinewelt Architekten / девелопер Stone
ЖК Stone Grain
© Kleinewelt Architekten / девелопер Stone
ЖК Stone Grain
© Kleinewelt Architekten / девелопер Stone
ЖК Stone Grain
© Kleinewelt Architekten / девелопер Stone
ЖК Stone Grain
© Kleinewelt Architekten / девелопер Stone
ЖК Stone Grain
© Kleinewelt Architekten / девелопер Stone
Архитекторы – партнеры Архи.ру:
Проект из каталога (случайный выбор)
Постройки и проекты (новые записи):
Новости российской архитектуры:
17.10.2025
Песнь совриска и пламени
Никита Явейн, Сергей Падалко, Андрей Гнездилов, Максимилиан Мосешвили17.10.2025
Под небом голубым
Никита Явейн16.10.2025
Русский Север и Арктика: четыре проекта
Григорий Соломин16.10.2025