ЖК Зилант Премьер
© ТИМЗ
ЖК Зилант Премьер
информация:
-
статус
проект -
даты
07.2024 -
место
Казань пр-т. Победы -
координаты
55.774620, 49.209067 -
функция
Жилой / жилой комплекс -
площадь участка
2,5929 га -
площадь подземная
22 278 м2 -
общая площадь
106 483 м2 -
площадь жилая
46 420 м2 -
высота
78,65 -
этажность
8-25 -
строительный объем
368 48,914 м3 - Количество квартир - 1021
-
кол-во машиномест
637

Петр Васильев
Petr Vasilev / Россия
Ирина Сивухина
РоссияTIMZ.MOSCOW
Россияавторский коллектив
партнеры, заказчики, смежники
награды:
- Лауреат премии форума Казаныш-2024. Проект на уровне идеи и концепции. Гран-при. Номинация «Лучший жилой комплекс»
ЖК Зилант Премьер
© ТИМЗ
ЖК Зилант Премьер
© ТИМЗ
описание:
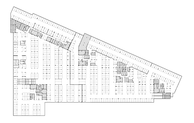
Участок строительства, на котором располагается проектируемый многоквартирный жилой дом с помещениями общественного назначения и подземной автостоянкой, ограничен улицами Назиба Жиганова с запада и Вознесенским трактом с северной стороны в Советском районе города Казань, Республики Татарстан. Территория расположена в зоне жилищной застройки и имеет форму треугольника.
В основу планировочного решения застройки положен принцип разделения общественных и частных зон.
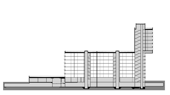
Застройка участка представляет собой группу из девяти жилых секций переменной этажности (от 8 до 25 этажей), объединённых одноэтажными надземными пристройками коммерческого назначения. С южной стороны застройки, в секции №1, предусмотрен встроенно-пристроенный детский сад в два этажа.
Застройка визуально разделена на две сопоставимые по масштабу части: блок из шести разновысотных секций в западной части участка и группу из трёх высотных секций в восточной части. Секции располагаются с понижением этажности в сторону ул. Назиба Жиганова.
На первом этаже с внешней стороны застройки расположены центральные входные группы жилых секций и входы/выходы в помещения общественного назначения.
На эксплуатируемой кровле подземной автостоянки размещается благоустройство: площадки для отдыха взрослых, игры детей дошкольного и школьного возраста, спортивные зоны и озеленение. Вход на уровень благоустройства осуществляется непосредственно из подъездов жилых секций. Практически весь периметр участка сформирован встроенно-пристроенными помещениями, что обеспечивает естественное разделение общественной и частной зон, отвечая современным тенденциям формирования устойчивой и комфортной городской среды.
Благодаря выделению в застройке двух разномасштабных групп секций, которые контрастируют между собой как по высотности, так и по цветовым решениям отделки, формируется неповторимый образ всего комплекса. Оптимальное расположение секций и их разная этажность открывают большей части квартир различные виды на город и панорамные перспективы.