RSS
Кванториум в Выксе
Фотография © Юлия Тарабарина, Архи.ру

Кванториум в Выксе

информация:

  • статус
    реализовано
  • даты
    2020 / — 10.2025
  • region= area= address=Территория индустриально-туристского парка «Баташев» country_t=Россия city_t=Выкса
    место
    Выкса Территория индустриально-туристского парка «Баташев»
  • координаты
    55.313144, 42.181880
  • функция
    Образование и наука / Технопарк
  • площадь участка
    0,336 га
  • общая площадь
    1 692 м2
Андрей Гнездилов
Максимилиан Мосешвили
Павел Журавлев
Даниил Кодичев
АБ «Остоженка»

авторский коллектив

А. Гнездилов, М. Мосешвили, П. Журавлев, А. Таирова, Д. Кодичев, А. Талаева, Е. Королев, А. Московченко, О. Каменская

партнеры, заказчики, смежники

Заказчик: АО «Выксунский металлургический завод»
Кванториум в Выксе, 11.2025
Фотография © Даниил Анненков / предоставлена АБ «Остоженка»

Архи.ру об этом объекте:

25.11.2025

Юлия Тарабарина. Луч солнца золотого

Компактное кирпично-металлическое здание на территории растущего в Выксе «Шухов-парка», кажется, впитывает в себя солнечный свет, преобразует в желтые акценты внутри и вечером «отдает» теплотой золотистого света из окон. Серьезно, очень симпатичное получилось здание: и материальное, и легкое, причем легкость внутри, материальность снаружи. Форма в нем выстроена от функции – лаконично, но не просто. Изучаем.

Квант ОМК в Выксе это первый в стране детский технопарк с металлургическим уклоном. Его открыли недавно, в октябре, одновременно с перенесенной шуховской водонапорной башней. Набор детей в группы начали с сентября. Детские технопарки кванториумы ...   читать дальше

другие тексты Архи.ру:

Кванториум в Выксе
Фотография © Юлия Тарабарина, Архи.ру

описание:

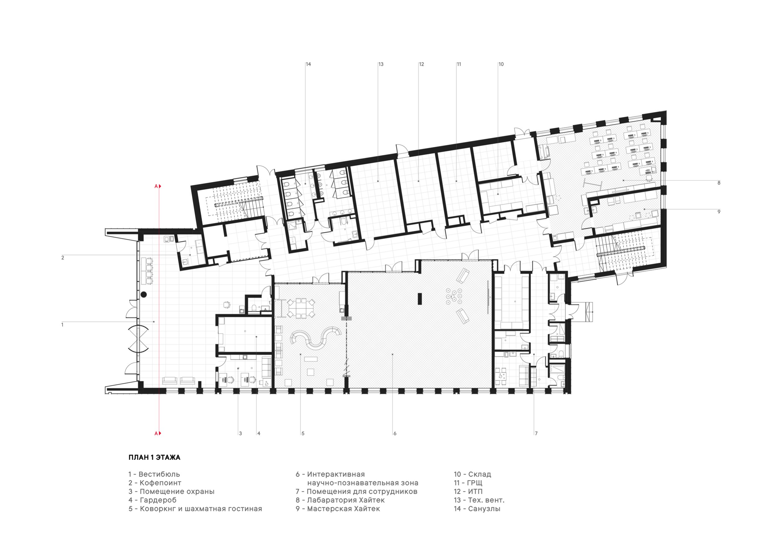
Здание детского технопарка «Кванториум» предполагается построить на сложном участке в самой середине индустриально-туристского парка «Баташев» в городе Выкса – на границе более урбанизированной среды вокруг музейного комплекса и природной территории, в условиях сложного рукотворного рельефа.
 
Здание кванториума состоит из двух непараллельных и разновысоких объемов.
В градостроительном плане такое решение также оправдано – оба объема существуют в двух разных сетках координат, одна из которых совпадает с координатной сеткой руин Южных мастерских, а другая – с координатной сеткой Листопрокатного цеха. Помимо этого, динамическое противопоставление «врезанных» друг в друга объемов подчеркивает идею кванториума как образовательного проекта на стыке разных областей знания, науки и техники, теории и практики.
 
Соседство руин Южных мастерских, имеющих достаточную высоту, чтобы загородить северный фасад кванториума и «перерезать» визуальные и, сдедовательно, пешеходные связи из северной активной части парка, приводит к решению организации входной зоны с западного торца одного из объемов.
 
Входная группа состоит из развитого комплекса двусветного вестибюля, включающего в себя гардероб, рецепцию, пункт охраны, кофе-пойнт и гостевой санузел. Это общедоступная зона, здесь родители могут подождать, пока дети занимаются в квантумах. Остальные помещения кванториума свободно доступны для учащихся, преподавателей, персонала, а также для посетителей научно-познавательной зоны на 1 этаже.
Объемно планировочное решение кванториума, основанное на взаимодействии двух объемов, диктует и выбор материалов – каждый из объемов имеет свою
материальность, свой цвет, свою фактуру. Контраст материалов и фасадных конструкций подчеркивается также разным подходом к организации проемов. В
кирпичном объеме, подчеркнуто статичном, разновеликие окна образуют свободный паттерн в плоскости стены; более динамичный «металлический» объем, наоборот,
имеет строгий ряд вертикальных фасадных элементов, совпадающий с шагом оконных проемов. Используется клинкерный облицовочный кирпич на подсистеме, темные металлические или фиброцементные панели.
Кванториум в Выксе
Фотография © Юлия Тарабарина, Архи.ру
Кванториум в Выксе
Фотография © Юлия Тарабарина, Архи.ру
Кванториум в Выксе
Фотография © Юлия Тарабарина, Архи.ру
Кванториум в Выксе
Фотография © Юлия Тарабарина, Архи.ру
Кванториум в Выксе
Фотография © Юлия Тарабарина, Архи.ру
Кванториум в Выксе
Фотография © Юлия Тарабарина, Архи.ру
Кванториум в Выксе
Фотография © Юлия Тарабарина, Архи.ру
Кванториум в Выксе
Фотография © Юлия Тарабарина, Архи.ру
Кванториум в Выксе
Фотография © Юлия Тарабарина, Архи.ру
Кванториум в Выксе
Фотография © Юлия Тарабарина, Архи.ру
Кванториум в Выксе
Фотография © Юлия Тарабарина, Архи.ру
Кванториум в Выксе, 11.2025
Фотография © Даниил Анненков / предоставлена АБ «Остоженка»
Кванториум в Выксе, 11.2025
Фотография © Даниил Анненков / предоставлена АБ «Остоженка»
Кванториум в Выксе, 11.2025
Фотография © Даниил Анненков / предоставлена АБ «Остоженка»
Кванториум в Выксе, 11.2025
Фотография © Даниил Анненков / предоставлена АБ «Остоженка»
Кванториум в Выксе, 11.2025
Фотография © Даниил Анненков / предоставлена АБ «Остоженка»
Кванториум в Выксе, 11.2025
Фотография © Даниил Анненков / предоставлена АБ «Остоженка»
Кванториум в Выксе, 11.2025
Фотография © Даниил Анненков / предоставлена АБ «Остоженка»
Кванториум в Выксе, 11.2025
Фотография © Даниил Анненков / предоставлена АБ «Остоженка»
Кванториум в Выксе, 11.2025
Фотография © Даниил Анненков / предоставлена АБ «Остоженка»
Кванториум в Выксе, 11.2025
Фотография © Даниил Анненков / предоставлена АБ «Остоженка»
Кванториум в Выксе, 11.2025
Фотография © Даниил Анненков / предоставлена АБ «Остоженка»
Кванториум в Выксе, 11.2025
Фотография © Даниил Анненков / предоставлена АБ «Остоженка»
Кванториум в Выксе, 11.2025
Фотография © Даниил Анненков / предоставлена АБ «Остоженка»
Кванториум в Выксе, 11.2025
Фотография © Даниил Анненков / предоставлена АБ «Остоженка»
Кванториум в Выксе, 11.2025
Фотография © Даниил Анненков / предоставлена АБ «Остоженка»
Кванториум в Выксе, 11.2025
Фотография © Даниил Анненков / предоставлена АБ «Остоженка»
Кванториум в Выксе, 11.2025
Фотография © Даниил Анненков / предоставлена АБ «Остоженка»
Кванториум в Выксе, 11.2025
Фотография © Даниил Анненков / предоставлена АБ «Остоженка»
Кванториум в Выксе
Фотография © Юлия Тарабарина, Архи.ру
Кванториум в Выксе, 11.2025
Фотография © Даниил Анненков / предоставлена АБ «Остоженка»
Кванториум в Выксе, 11.2025
Фотография © Даниил Анненков / предоставлена АБ «Остоженка»
Кванториум в Выксе, 11.2025
Фотография © Даниил Анненков / предоставлена АБ «Остоженка»
Кванториум в Выксе, 11.2025
Фотография © Даниил Анненков / предоставлена АБ «Остоженка»
Кванториум в Выксе, 11.2025
Фотография © Даниил Анненков / предоставлена АБ «Остоженка»
Кванториум в Выксе, 11.2025
Фотография © Даниил Анненков / предоставлена АБ «Остоженка»
Кванториум в Выксе, 11.2025
Фотография © Даниил Анненков / предоставлена АБ «Остоженка»
Кванториум в Выксе, 11.2025
Фотография © Даниил Анненков / предоставлена АБ «Остоженка»
Кванториум в Выксе, 11.2025
Фотография © Даниил Анненков / предоставлена АБ «Остоженка»
Кванториум в Выксе, 11.2025
Фотография © Даниил Анненков / предоставлена АБ «Остоженка»
Кванториум в Выксе, 11.2025
Фотография © Даниил Анненков / предоставлена АБ «Остоженка»
Кванториум в Выксе, 11.2025
Фотография © Даниил Анненков / предоставлена АБ «Остоженка»
Кванториум в Выксе, 11.2025
Фотография © Даниил Анненков / предоставлена АБ «Остоженка»
Кванториум в Выксе, 11.2025
Фотография © Даниил Анненков / предоставлена АБ «Остоженка»
Кванториум в Выксе, 11.2025
Фотография © Даниил Анненков / предоставлена АБ «Остоженка»
Кванториум в Выксе, 11.2025
Фотография © Даниил Анненков / предоставлена АБ «Остоженка»
Кванториум в Выксе, 11.2025
Фотография © Даниил Анненков / предоставлена АБ «Остоженка»
Кванториум в Выксе, 11.2025
Фотография © Даниил Анненков / предоставлена АБ «Остоженка»
Кванториум в Выксе
Фотография © Юлия Тарабарина, Архи.ру
Коридор. Вид с востока. Кванториум в Выксе
Фотография © Юлия Тарабарина, Архи.ру
Кванториум в Выксе
Фотография © Юлия Тарабарина, Архи.ру
Кванториум в Выксе
Фотография © Юлия Тарабарина, Архи.ру
Кванториум в Выксе
Фотография © Юлия Тарабарина, Архи.ру
Кванториум в Выксе
Фотография © Юлия Тарабарина, Архи.ру
Кванториум в Выксе
Фотография © Юлия Тарабарина, Архи.ру
Кванториум в Выксе
Фотография © Юлия Тарабарина, Архи.ру
Кванториум в Выксе
Фотография © Юлия Тарабарина, Архи.ру
Кванториум в Выксе
Фотография © Юлия Тарабарина, Архи.ру
Кванториум в Выксе
Фотография © Юлия Тарабарина, Архи.ру
Кванториум в Выксе
Фотография © Юлия Тарабарина, Архи.ру
Коридор. Вид с запада. Кванториум в Выксе
Фотография © Юлия Тарабарина, Архи.ру
Кванториум в Выксе
Фотография © Юлия Тарабарина, Архи.ру
Кванториум в Выксе
Фотография © Юлия Тарабарина, Архи.ру
Кванториум в Выксе
Фотография © Юлия Тарабарина, Архи.ру
Кванториум в Выксе
Фотография © Юлия Тарабарина, Архи.ру
Кванториум в Выксе
Фотография © Юлия Тарабарина, Архи.ру
Кванториум в Выксе
Фотография © Юлия Тарабарина, Архи.ру
Кванториум в Выксе
Фотография © Юлия Тарабарина, Архи.ру
Кванториум в Выксе
Фотография © Юлия Тарабарина, Архи.ру
Кванториум в Выксе
Фотография © Юлия Тарабарина, Архи.ру
Кванториум в Выксе
Фотография © Юлия Тарабарина, Архи.ру
Кванториум в Выксе
Фотография © Юлия Тарабарина, Архи.ру
Кванториум в Выксе
Фотография © Юлия Тарабарина, Архи.ру
Кванториум в Выксе
Фотография © Юлия Тарабарина, Архи.ру
Кванториум в Выксе
Фотография © Юлия Тарабарина, Архи.ру
Кванториум в Выксе
Фотография © Юлия Тарабарина, Архи.ру
Кванториум в Выксе
Фотография © Юлия Тарабарина, Архи.ру
Кванториум в Выксе
Фотография © Юлия Тарабарина, Архи.ру
Кванториум в Выксе
© АБ «Остоженка»
Кванториум в Выксе
© АБ «Остоженка»
Кванториум в Выксе
© АБ «Остоженка»
Кванториум в Выксе
© АБ «Остоженка»
Кванториум в Выксе
© АБ «Остоженка»
Кванториум в Выксе
© АБ «Остоженка»
Кванториум в Выксе
© АБ «Остоженка»
Кванториум в Выксе
© АБ «Остоженка»
Кванториум в Выксе
© АБ «Остоженка»
Кванториум в Выксе
© АБ «Остоженка»
Кванториум в Выксе
© АБ «Остоженка»
Кванториум в Выксе
© АБ «Остоженка»
Кванториум в Выксе
© АБ «Остоженка»
План 1 этажа. Кванториум в Выксе
© АБ «Остоженка»
План 2 этажа. Кванториум в Выксе
© АБ «Остоженка»
Кванториум в Выксе
© АБ «Остоженка»
Кванториум в Выксе
Фотография © Юлия Тарабарина, Архи.ру

Архитекторы – партнеры Архи.ру:

  • Борис Воскобойников
  • Евгений Новосадюк
  • Антон Надточий
  • Михаил Давыдов
  • Андрей Гнездилов
  • Андрей Михайлов
  • Ерлан Бекмухамедов
  • Марина Егорова
  • Алексей Орлов
  • Дмитрий Сухов
  • Татьяна Зульхарнеева
  • Станислав Белых
  • Владислав Андреев
  • Наталья Сидорова
  • Александр Асадов
  • Григориос Гавалидис
  • Дмитрий Остроумов
  • Игорь Шварцман
  • Сергей Кузнецов
  • Владимир Плоткин
  • Степан Липгарт
  • Сергей Скуратов
  • Сергей Труханов
  • Наталия Шилова
  • Георгий Трофимов
  • Николай Кикава
  • Никита Явейн
  • Дмитрий Ликин
  • Ростислав Цайзер
  • Александр Самарин
  • Константин Ходнев
  • Андрей Асадов
  • Игорь Членов
  • Даниил Лоренц
  • Олег Мединский
  • Александр Котенков
  • Юлия Солдатенкова
  • Энди Сноу
  • Анастасия Абашева
  • Зураб Басария
  • Евгений Подгорнов
  • Александра Кузьмина
  • Елена Пучкова
  • Валерий Каняшин
  • Евгений Зеленов
  • Андрей Романов
  • Юлий Борисов
  • Николай Переслегин
  • Григорий Мустафин
  • Антон Яр-Скрябин
  • Александр Скокан
  • Павел Андреев
  • Юлия Тряскина
  • Олег Шапиро
  • Виталий Лутц
  • Екатерина Кузнецова
  • Иван Кожин
  • Сергей Никешкин
  • Дмитрий Буш
  • Михаил Канунников
  • Вера Бутко
  • Полина Воеводина
  • Юлиана Княжевская
  • Сергей Чобан
  • Василий Крапивин
  • Всеволод Медведев
  • Илья Машков
  • Сергей Переслегин
  • Мария Ахременкова
  • Раис Баишев
  • Тимур Абдуллаев
  • Екатерина Абдуллаева
  • Маргарита Авдышева
  • Левон Айрапетов
  • Александр Аношкин
  • Алексей Афоничкин
  • Владислав Бек-Булатов
  • Антон Белов
  • Татьяна Бузулукова
  • Петр Васильев
  • Данило Вукосавлевич
  • Алина Георгиевская
  • Павел Гордеев
  • Илья Гринберг
  • Никита Демидов
  • Никита Дергунов
  • Наталья Жилкина
  • Алексей Зародов
  • Екатерина Зырина
  • Алексей Ильин
  • Дарья Ильина
  • Олег Карлсон
  • Алексей Кибкало
  • Денис Кувшинников
  • Анна Куликова
  • Алексей Курков
  • Данил Куров
  • Мария Кутай
  • Евгений Кутай
  • Иван Кычкин
  • Антон Ладыгин
  • Дмитрий Лапин
  • Борис Левянт
  • Илья Левянт
  • Катерина Левянт
  • Валерий Лукомский
  • Антон Лукомский
  • Екатерина Ляпунова
  • Иса Магомедов
  • Сергей Марков
  • Елена Мерцалова
  • Николай Миловидов
  • Станислав Михаловский
  • Сергей Мичурин
  • Олеся Могилевская
  • Филипп Никандров
  • Мария Николаева
  • Дмитрий Овчаров
  • Сергей Пергаев
  • Виктор Перов
  • Алексей Полищук
  • Роман Пономарёв
  • Валерия Преображенская
  • Виктория Раубо
  • Василий Рыбаков
  • Николай Рыбаков
  • Мария Салех
  • Александр Стариков
  • Илья Уткин
  • Елисей Чакан
  • Бориша Чорович
  • Олег Шурыгин
  • Дмитрий Шурыгин

Проект из каталога (случайный выбор)

Постройки и проекты (новые записи):

  • Деловое пространство «ПЛЭЙН»
  • Porta
  • Детский сад на 200 мест в Жилино-1
  • Архитектурная концепция кластера Ломоносов-2
  • Клубный дом в 1-м Казачьем переулке
  • Частный дом в Ленинградской области
  • IT-кластер TravelLine в Йошкар-Оле
  • Гостиничный комплекс Cosmos Selection Derbent 5
  • Офис компании АльфаСтрахование

Новости российской архитектуры:

Курган памяти
08.05.2026

Курган памяти

Никита Явейн
Баня по-царски
07.05.2026

Баня по-царски

Ольга Смоленская
«Заря» над волнами
07.05.2026

«Заря» над волнами

Дарья Виноградова
Белый конгломерат
07.05.2026

Белый конгломерат

Александр Томашенко, Андрей Горелов, Василий Сошников, Иван Колманок, Николай Фугаров, Владимир Плоткин