Депозитарий Небесное Кенозерье
© Студия 44
Депозитарий Небесное Кенозерье
информация:
-
статус
проект -
даты
2022 -
место
Шишкина Архангельская обл. Плесецкий -
координаты
62.081901, 38.215128 -
функция
Культурный / Фондохранилище -
общая площадь
1 853,2 м2

Никита Явейн
Nikita Yavein / РоссияСтудия 44
Company: / Россияавторский коллектив
партнеры, заказчики, смежники
Депозитарий Небесное Кенозерье
© Студия 44
Депозитарий Небесное Кенозерье
© Студия 44
описание:
Депозитарий «Небесное Кенозерье» предназначен для обеспечения надлежащих условий хранения, реставрации и постоянного экспонирования части музейного фонда ФГБУ «Национальный парк «Кенозерский». В Депозитарии будет храниться около 8 000 предметов живописи, прикладного искусства и этнографии, в числе которых особое место займут расписные «небеса» XVIII-XIX веков.
Коллекция монументальной живописи Кенозерья, состоящая из 17 полных и 5 фрагментарных комплексов «небес», имеет общемировую известность и считается самой значительной и уникальной по своей иконографии в России. Часть «небес» по сей день располагается в храмах, а двенадцать из них (8 полных комплексов и 4 – во фрагментах), ранее демонтированные, предстанут в экспозиции Депозитария.
«Небо» – особое потолочное перекрытие в деревянных храмах и часовнях, расписанное на библейские сюжеты. Расписное «небо» аллегорически олицетворяет небесную сферу со звездами, Солнцем, Луной и царствием Бога. Каркас «неба» напоминает солнце с расходящимися лучами.
Сборная конструкция «неба» имеет форму пологой усеченной пирамиды. Деревянный каркас состоит из балок-тябел, которые радиально расходятся от центрального кольца, как лучи от солнца. Сегменты каркаса (радиальные грани, центральный медальон и угловые паруса) заполнены накладными расписными досками. Кенозерские «небеса» различны по профилю (более и менее пологие), по количеству граней (8, 12, 14, 15, 16) и по стилю живописи (академическая живопись, старообрядческая живопись, крестьянский примитивизм).
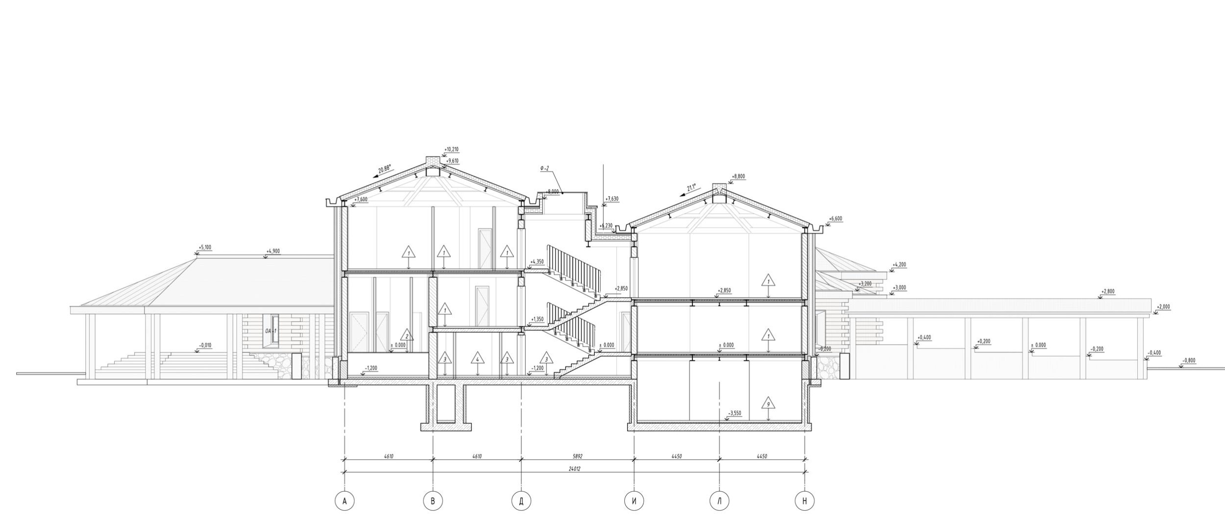
Кроме того, «небеса» различаются размерами: некоторые из них располагались в маленьких часовнях, другие – в больших храмовых комплексах. Проект Депозитария нацелен на воспроизведение прежнего ракурса зрительского восприятия «небес». Так, каждое «небо» помещено на его историческую высоту в свой объем – собственный «мир», по масштабу и габаритам максимально приближенный к пространствам храмов, где изначально находились «небеса».
Совокупность разновеликих восьмиугольных форм в архитектуре «Депозитария» напрямую отсылает к «восьмерику» – строительному модулю деревянного зодчества Русского Севера, чья геометрия символизирует сакральную архитектонику мироздания. В западной части Депозитария запроектированы экспозиционные залы с системой открытого хранения «небес», где каждое «небо» будет установлено на его исконной высоте. В храмах «небеса» примыкали к стенам четырехугольных залов, являясь частью конструкции. В здании Депозитария «небо» – экспонат. Это подчеркнуто тем, что каждое «небо» заключено в свое пространство «восьмерика» и при этом «оторвано» от стен.
В восточной части здания запроектированы помещения для хранения живописи, икон и других предметов из музейных коллекций «Кенозерья», а также реставрационные мастерские. Вход в здание Депозитария задуман как нарядное «красное» крыльцо – это ещё одно обращение к самобытным чертам северного зодчества. По этому крытому крыльцу посетители Депозитария поднимаются прямо под «небеса». Подобную входную конструкцию, связывающую внешний мир с внутренним пространством, можно увидеть, например, в ансамбле Лядинского погоста Богоявленской церкви – жемчужины Каргополья.
Проектом Депозитария предусмотрены технологичные конструктивные решения с использованием современных материалов. Тем не менее в формах и внешней отделке воздается дань аскетичной местной архитектуре: восьмиугольные планы, шатровые крыши, небольшие окна, а также деревянные наружные стены, отсылающие к традиционному срубу. Чтобы контрастно подчеркнуть аутентичность деревянных «небес», одно из экспозиционных пространств будет накрыто стеклянным кровельным фонарем. Сквозь подлинный тябловый каркас зрителю откроется вид на звездное северное небо.