Крытый плавательный бассейн в Чеща-Вас
Фото © Miran Kambič
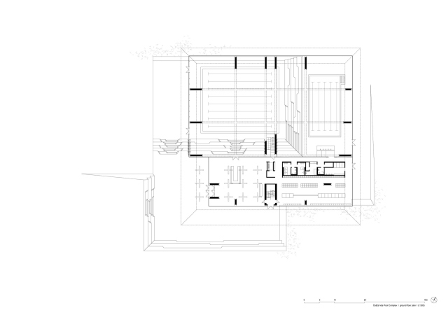
Зато эта кровля – ярко-желтая изнутри, так как в интерьере она играет роль основного «укрывающего» компонента: вместо монолитных стен по периметру использовано остекление. Оно визуально размывает границы постройки: тренировки и соревнования проходят практически в лесу.
Крытый плавательный бассейн в Чеща-Вас
Фото © Miran Kambič
Глубже всего расположен больший бассейн, отделенный от меньшего бетонными трибунами. Такие же трибуны окружают заглубленный двор постройки. Расположение большинства пространств ниже уровня земли позволило повысить тепловую инерцию сооружения и снизить затраты на отопление и охлаждение.
Бюджет проекта (площадь 4770 м2) – 7 млн евро.
Крытый плавательный бассейн в Чеща-Вас
Фото © Miran Kambič
Крытый плавательный бассейн в Чеща-Вас
Фото © Miran Kambič
Крытый плавательный бассейн в Чеща-Вас
Фото © Miran Kambič

