Музей глины UCCA
Фотография © Eiichi Kano / предоставлена Kengo Kuma & Associates
Музей глины UCCA
Фотография © Eiichi Kano / предоставлена Kengo Kuma & Associates
Музей глины UCCA
Фотография © Eiichi Kano / предоставлена Kengo Kuma & Associates
Специалист по нестандартным арт-пространствам и любитель экспериментов с фактурами Кэнго Кума впервые в качестве основного материала использовал керамику – все же функция обязывает. Несмотря на предсказуемость исторических отсылок, визуальный образ получился смелым и вполне актуальным.
Музей глины UCCA
Фотография © Fangfang Tian / предоставлена Kengo Kuma & Associates
Музей глины UCCA
Фотография © Fangfang Tian / предоставлена Kengo Kuma & Associates
Музей глины UCCA
Фотография © Fangfang Tian / предоставлена Kengo Kuma & Associates
Музей глины UCCA
Фотография © Fangfang Tian / предоставлена Kengo Kuma & Associates
Сложный скульптурный объем, выстроенный как последовательность полусфер, втиснулся между старыми фабричными корпусами и вытянулся по оси, соединяющей канал и малопримечательную индустриальную застройку. Разного рода проемы задают внутриквартальные связи, а сам объем напрямую отсылает к так называемым драконьим, или восходящим печам, издревле использовавшимся в этих местах для обжига фарфоровой посуды, терракотовых чайников и других керамических изделий, а также к расположенной рядом горе Шушань, воспетой поэтами.
Музей глины UCCA
Фотография © Eiichi Kano / предоставлена Kengo Kuma & Associates
Музей глины UCCA
Фотография © Fangfang Tian / предоставлена Kengo Kuma & Associates
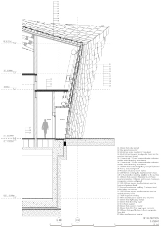
Конструкции здания, легкие и надежные, представляют собой четырехслойную решетку из деревянных балок. Они добавляют пространствам динамики и направляют взгляды и движение посетителей. Сверху все объемы покрыты керамической черепицей, своим цветом напоминающей лиловатую местную глину. Градации тонов глазурованных пластин, выполненных, конечно же, местными мастерами, демонстрируют разные степени обжига. Немного глянцевая поверхность чутко реагирует на свет, меняясь в зависимости от природных условий. Ну а сама фактура – теплая, живая, даже немного шершавая – точно повторяет ощущения от традиционного китайского глиняного чайника или чашки в руке.
Музей глины UCCA
Фотография © Fangfang Tian / предоставлена Kengo Kuma & Associates
Музей глины UCCA
Фотография © Eiichi Kano / предоставлена Kengo Kuma & Associates
Музей глины UCCA
© Kengo Kuma & Associates
