Музей глины UCCA
Фотография © Eiichi Kano / предоставлена Kengo Kuma & Associates
Музей глины UCCA
/ UCCA Clay Museum
информация:
-
статус
реализовано -
даты
— 10.2024 -
место
Китай, Исин -
координаты
31.266416, 119.853339 -
функция
Культурный / Музей -
теги
Кровля, Фасад, Дерево, Керамика, Водоем, Архитектура у воды -
общая площадь
3437 м2

Кэнго Кума /
Kengo Kuma / ЯпонияМузей глины UCCA
Фотография © Eiichi Kano / предоставлена Kengo Kuma & Associates
Архи.ру об этом объекте:
29.10.2024
Анна Старостина. Настоящая «Большая глина №4»
В китайском Исине открылся Музей глины UCCA по проекту Кэнго Кумы. Покрытый глиняной черепицей объем отсылает к форме традиционных печей для обжига керамики.
читать дальшеМузей глины UCCA
Фотография © Eiichi Kano / предоставлена Kengo Kuma & Associates
Музей глины UCCA
Фотография © Fangfang Tian / предоставлена Kengo Kuma & Associates
Музей глины UCCA
Фотография © Fangfang Tian / предоставлена Kengo Kuma & Associates
Музей глины UCCA
Фотография © Fangfang Tian / предоставлена Kengo Kuma & Associates
Музей глины UCCA
Фотография © Fangfang Tian / предоставлена Kengo Kuma & Associates
Музей глины UCCA
Фотография © Fangfang Tian / предоставлена Kengo Kuma & Associates
Музей глины UCCA
Фотография © Fangfang Tian / предоставлена Kengo Kuma & Associates
Музей глины UCCA
Фотография © Fangfang Tian / предоставлена Kengo Kuma & Associates
Музей глины UCCA
Фотография © Eiichi Kano / предоставлена Kengo Kuma & Associates
Музей глины UCCA
Фотография © Fangfang Tian / предоставлена Kengo Kuma & Associates
Музей глины UCCA
Фотография © Fangfang Tian / предоставлена Kengo Kuma & Associates
Музей глины UCCA
Фотография © Fangfang Tian / предоставлена Kengo Kuma & Associates
Музей глины UCCA
Фотография © Fangfang Tian / предоставлена Kengo Kuma & Associates
Музей глины UCCA
Фотография © Fangfang Tian / предоставлена Kengo Kuma & Associates
Музей глины UCCA
Фотография © Fangfang Tian / предоставлена Kengo Kuma & Associates
Музей глины UCCA
Фотография © Fangfang Tian / предоставлена Kengo Kuma & Associates
Музей глины UCCA
Фотография © Fangfang Tian / предоставлена Kengo Kuma & Associates
Музей глины UCCA
Фотография © Fangfang Tian / предоставлена Kengo Kuma & Associates
Музей глины UCCA
Фотография © Fangfang Tian / предоставлена Kengo Kuma & Associates
Музей глины UCCA
Фотография © Fangfang Tian / предоставлена Kengo Kuma & Associates
Музей глины UCCA
Фотография © Fangfang Tian / предоставлена Kengo Kuma & Associates
Музей глины UCCA
Фотография © Fangfang Tian / предоставлена Kengo Kuma & Associates
Музей глины UCCA
Фотография © Fangfang Tian / предоставлена Kengo Kuma & Associates
Музей глины UCCA
Фотография © Fangfang Tian / предоставлена Kengo Kuma & Associates
Музей глины UCCA
Фотография © Eiichi Kano / предоставлена Kengo Kuma & Associates
Музей глины UCCA
Фотография © Fangfang Tian / предоставлена Kengo Kuma & Associates
Музей глины UCCA
Фотография © Fangfang Tian / предоставлена Kengo Kuma & Associates
Музей глины UCCA
Фотография © Fangfang Tian / предоставлена Kengo Kuma & Associates
Музей глины UCCA
Фотография © Fangfang Tian / предоставлена Kengo Kuma & Associates
Музей глины UCCA
Фотография © Fangfang Tian / предоставлена Kengo Kuma & Associates
Музей глины UCCA
Фотография © Fangfang Tian / предоставлена Kengo Kuma & Associates
Музей глины UCCA
Фотография © Fangfang Tian / предоставлена Kengo Kuma & Associates
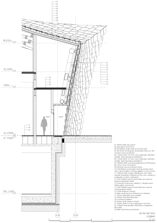
Музей глины UCCA
© Kengo Kuma & Associates
Музей глины UCCA
© Kengo Kuma & Associates
Музей глины UCCA
© Kengo Kuma & Associates
Музей глины UCCA
© Kengo Kuma & Associates
Музей глины UCCA
© Kengo Kuma & Associates
Музей глины UCCA
© Kengo Kuma & Associates
Музей глины UCCA
© Kengo Kuma & Associates
Музей глины UCCA
© Kengo Kuma & Associates
Музей глины UCCA
© Kengo Kuma & Associates
Музей глины UCCA
© Kengo Kuma & Associates
Музей глины UCCA
© Kengo Kuma & Associates
Музей глины UCCA
© Kengo Kuma & Associates
Музей глины UCCA
© Kengo Kuma & Associates
Музей глины UCCA
© Kengo Kuma & Associates
Музей глины UCCA
© Kengo Kuma & Associates
Музей глины UCCA
© Kengo Kuma & Associates
Музей глины UCCA
© Kengo Kuma & Associates
Музей глины UCCA
© Kengo Kuma & Associates
Избранные архитекторы:
Проект из каталога (случайный выбор)
Избранные постройки:
Зарубежные новости
09.10.2025
Абстракция в пейзаже
08.10.2025
Седло для стадиона
08.10.2025
Руины. Второе дыхание
03.10.2025
С открытым сердцем
01.10.2025