Описание предоставлено архитекторами
Пожелание заказчика было четким: отказаться от кричащих цветов и экспрессивных форм. Для команды бюро это стало не ограничением, а возможностью кропотливой работы над характером места. Название жилого комплекса навело на мысль о сдержанной, интеллектуальной и слегка загадочной планировке.
Благоустройство территории ЖК Holms Residence. Объемная общая схема
© ВЕЩЬ!
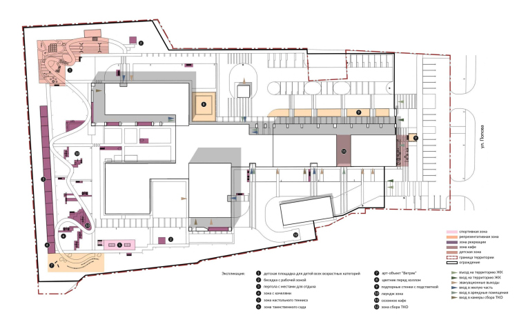
Благоустройство территории ЖК Holms Residence. Схема функционального зонирования
© ВЕЩЬ!
Геометричный генеральный план с ортогональной сеткой – это не просто строгий минимализм. Это отсылка к исторической планировке европейских городов, обещающая порядок и ясность. Но в этой правильности архитекторы спрятали сюрпризы, получив редкую возможность разработать с нуля почти каждый элемент МАФ: от скамейки до светильника.
Работа в премиум-сегменте – это вызов. Слишком часто он ассоциируется с безликой, стерильной роскошью, где все идеально, но бездушно. Опыт с жилым комплексом «Холмс» стал для нас манифестом: высокий класс – не синоним обезличенности. Это шанс создать индивидуализированную среду с неожиданными открытиями на нюансных решениях и «пасхалках».
Чтобы пространство заговорило, архитекторы придумали особенные акценты.
Например, плавные линии подпорных стен, утопающих в зелени, днем – просто элемент ландшафта. Но с наступлением сумерек включается волшебство: мягкая подсветка в форме бумажных корабликов напоминает о духе открытий и создает свою атмосферу. «Ветряки» – это кинетические скульптуры, живущие в ритме природы. Их движение – дань экологической повестке и гипнотизирующее зрелище. А в зоне «Таинственного сада», где светильники-камыши деликатно подсвечивают тропинки, создана интригующая, камерная атмосфера, контрастирующая с минимализмом фасадов.
Особым решением стала длинная пергола. Это архитектурный буфер между приватным двором и внешним миром (гаражами, соседними территориями). Но это не просто стена – это активная зона жизни с качелями, гамаками и тихими уголками, которая сохраняет и приватность, и ощущение простора.
Благоустройство территории ЖК Holms Residence
Фотография © Людмила Мордовина / предоставлена ВЕЩЬ!
Детская площадка стала нейтральным арт-объектом. Ее лаконичный дизайн – это холст для детского воображения, стимулирующий не потребление готовых игр, а изобретение собственных сценариев. Лаунж-зоны задуманы как камерные «комнаты» под открытым небом – для уединенного чтения, тихой беседы или отдыха в гамаке. Это ответ на запрос жителей о действенной релаксации и побеге от городского шума.







